highlight_off
Riferimento annuncio 293558 info

Villino VIA VALLE DI SCALVE SNC PIANO T-1, 04011 Aprilia (LT)

8,50
328,21
0
€ 174.825
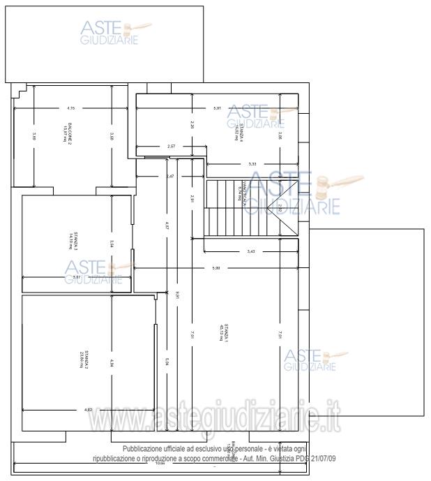
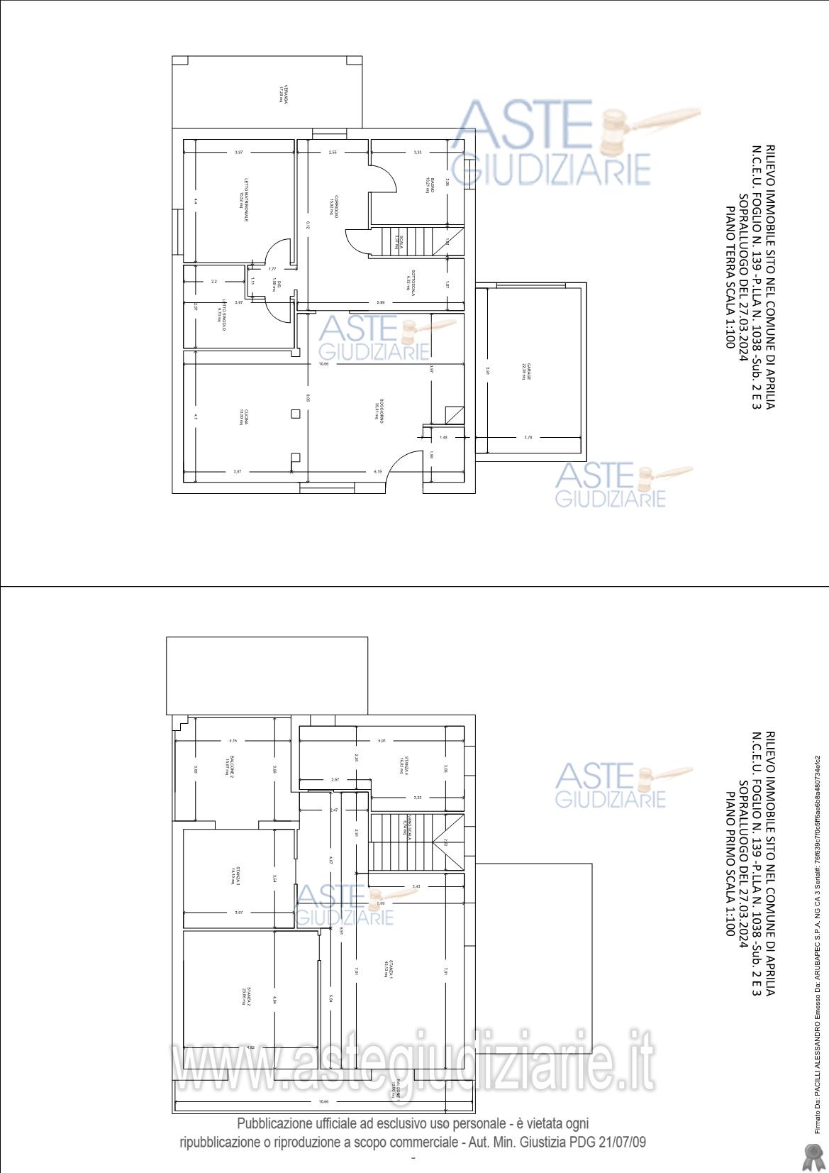
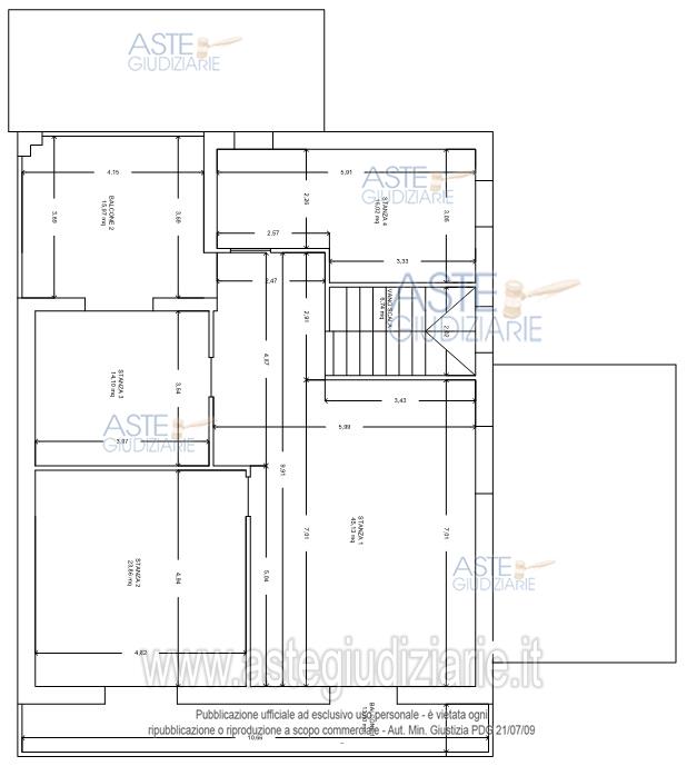
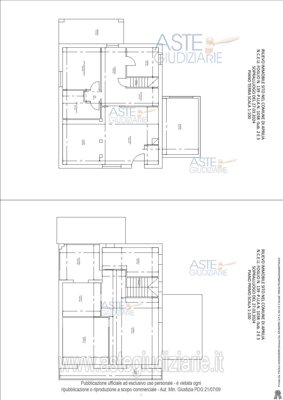
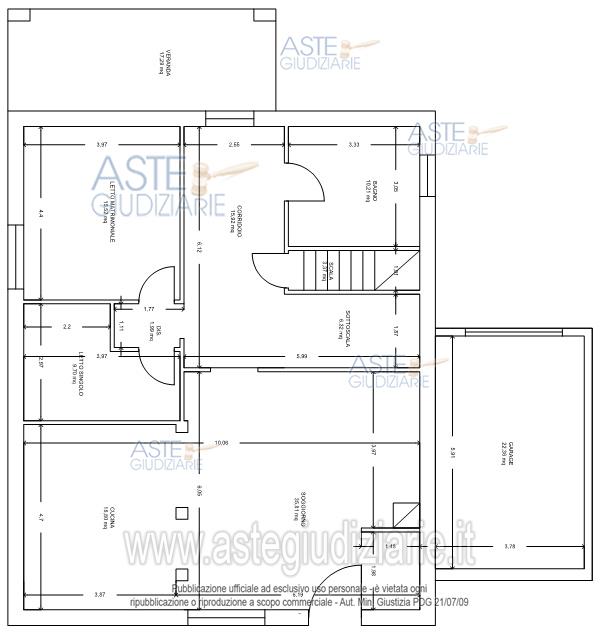
Vendita all'asta Senza incanto, con gara telematica asincrona - LOTTO UNICO: Fabbricato per civile abitazione con struttura portante in muratura di blocchetti di calcestruzzo, di due piani fuori terra e con copertura composta da tetto a falde. Il piano primo e' ad oggi realizzato a rustico. Il piano terra e' composto da ingresso/soggiorno con cucina a vista, accesso alla zona notte composta da camera da letto singola e camera matrimoniale e bagno. Prezzo base € 174.825,00 (offerta minima € 131.120,00). Data inizio operazioni di vendita: 25/11/2025 ore 12:00. Professionista delegato alla vendita Dott. Elisabetta Massone - Email "studiomassone@libero.it"; Cell. 3486082513; Tel. 0773663350. Custode Giudiziario Dott. Elisabetta Massone - Email "studiomassone@libero.it"; Cell. 3486082513; Tel. 0773663350. Rif. Tribunale di Latina - Esecuzione immobiliare post legge 80 n. 187/2022

Superficie 328,21 mq
Vani 8,50
Bagni
Piano 0

Tipologia di vendita Giudiziaria
Modalità di vendita Asincrona telematica
Termine presentazione offerte 01/01/1900 ore 00:00
Data e ora inizio gara 25/11/2025 ore 12:00
Codice ID astegiudiziarie.it 4318850
8,50
328,21
0
€ 174.825

Ti interessa questa vendita?

north_east

Clicca qui per essere indirizzato alla scheda sul sito di provenienza

Bene di astegiudiziarie.it