highlight_off
Riferimento annuncio 282169 info

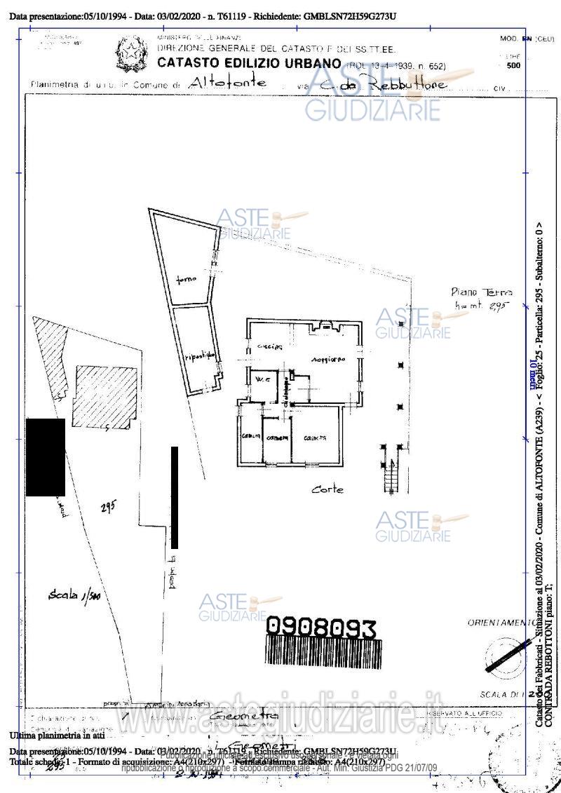
Villino Via della Quercia, 19, 90030 Altofonte PA, Italia, 90030 Altofonte (PA)

7,00
104,00
0
€ 21.322
Vendita all'asta Senza incanto, con gara telematica sincrona mista - LOTTO UNICO: piena ed intera della quota di 1000/1000 dell’immobile ad una elevazione f.t. sito nel Comune di Altofonte (PA) alla Via della Quercia n. 19 (Contrada Rebuttone). Prezzo base € 21.321,56 (offerta minima € 15.991,17). Data vendita 22/04/2026 ore 15:30. Professionista delegato alla vendita Avv. Gioacchino D'angelo - Email "avvgioacchinodangelo@libero.it"; Tel. 091303823. Custode Giudiziario Avv. Gioacchino D'angelo - Email "avvgioacchinodangelo@libero.it"; Tel. 091303823. Rif. Tribunale di Palermo - Esecuzione immobiliare post legge 80 n. 149/2019

Superficie 104,00 mq
Vani 7,00
Bagni
Piano 0

Tipologia di vendita Giudiziaria
Modalità di vendita Sincrona mista
Termine presentazione offerte 21/04/2026 ore 13:00
Data e ora inizio gara 22/04/2026 ore 15:30
Codice ID astegiudiziarie.it 4310110
7,00
104,00
0
€ 21.322

Ti interessa questa vendita?

north_east

Clicca qui per essere indirizzato alla scheda sul sito di provenienza

Bene di astegiudiziarie.it