highlight_off
Riferimento annuncio 318942 info

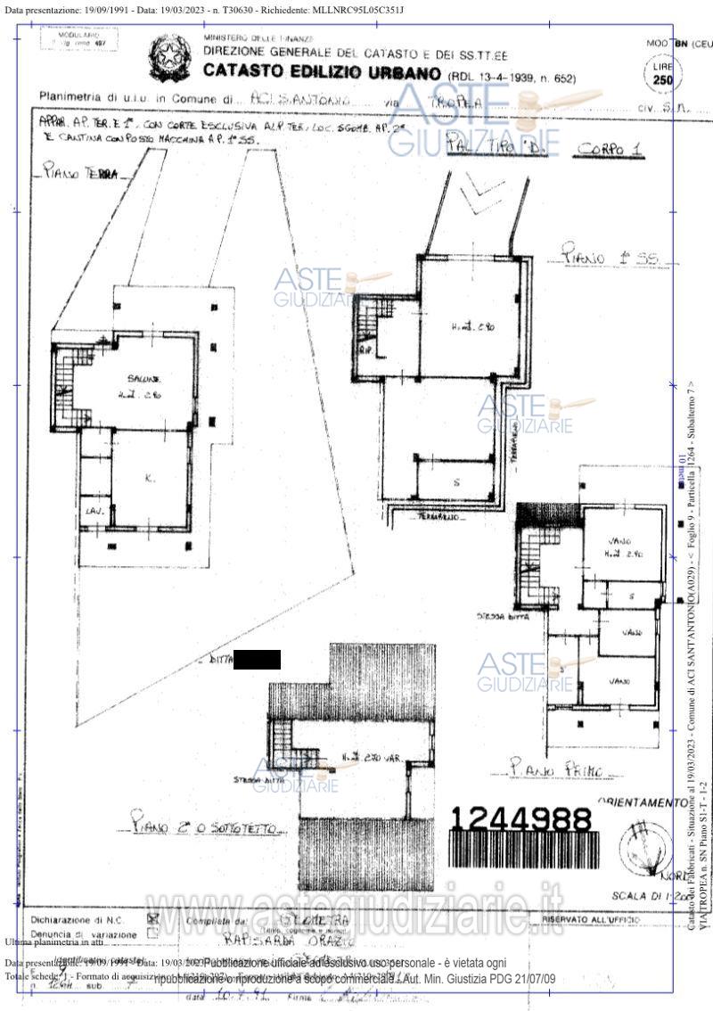
Villino Via Tropea, 28, 95025 Santa Maria La Stella CT, Italia, 95025 Aci Sant'Antonio (CT)

9,00
245,00
2
0
€ 160.700
Vendita all'asta Senza incanto, con gara telematica sincrona - LOTTO UNICO: Diritto di piena proprietà di villetta monofamiliare ubicata complesso condominiale sito nel Comune di Aci Sant’Antonio, in via Tropea nr. civico 28/C, composta da: piano sottostrada composto dal locale per il ricovero automobile, ripostiglio, accessori ed una scivola esclusiva che ne consente l’accesso; piano terra composto da salone ed accessori ed annesso giardino pertinenziale; primo piano composto da tre vani ed accessori; piano sottotetto; i piani sono tutti collegati mediante una scala interna. Prezzo base € 160.700,00 (offerta minima € 120.525,00). Data vendita 17/02/2026 ore 16:30. Professionista delegato alla vendita Avv. Marco Maria Leocata - Email "studioavvleocata@email.it"; Cell. 3333058799; Tel. 095436094. Custode Giudiziario Avv. Marco Maria Leocata - Email "studioavvleocata@email.it"; Cell. 3333058799; Tel. 095436094. Rif. Tribunale di Catania - Esecuzione immobiliare post legge 80 n. 153/2023

Superficie 245,00 mq
Vani 9,00
Bagni 2
Piano 0

Tipologia di vendita Giudiziaria
Modalità di vendita Sincrona telematica
Termine presentazione offerte 16/02/2026 ore 13:00
Data e ora inizio gara 17/02/2026 ore 16:30
Codice ID astegiudiziarie.it 4339080
9,00
245,00
2
0
€ 160.700

Ti interessa questa vendita?

north_east

Clicca qui per essere indirizzato alla scheda sul sito di provenienza

Bene di astegiudiziarie.it