highlight_off
Riferimento annuncio 102370 info

Villa C.DA MONTAGNA, 95048 Scordia (CT)

6,00
132,73
1
0
€ 29.061
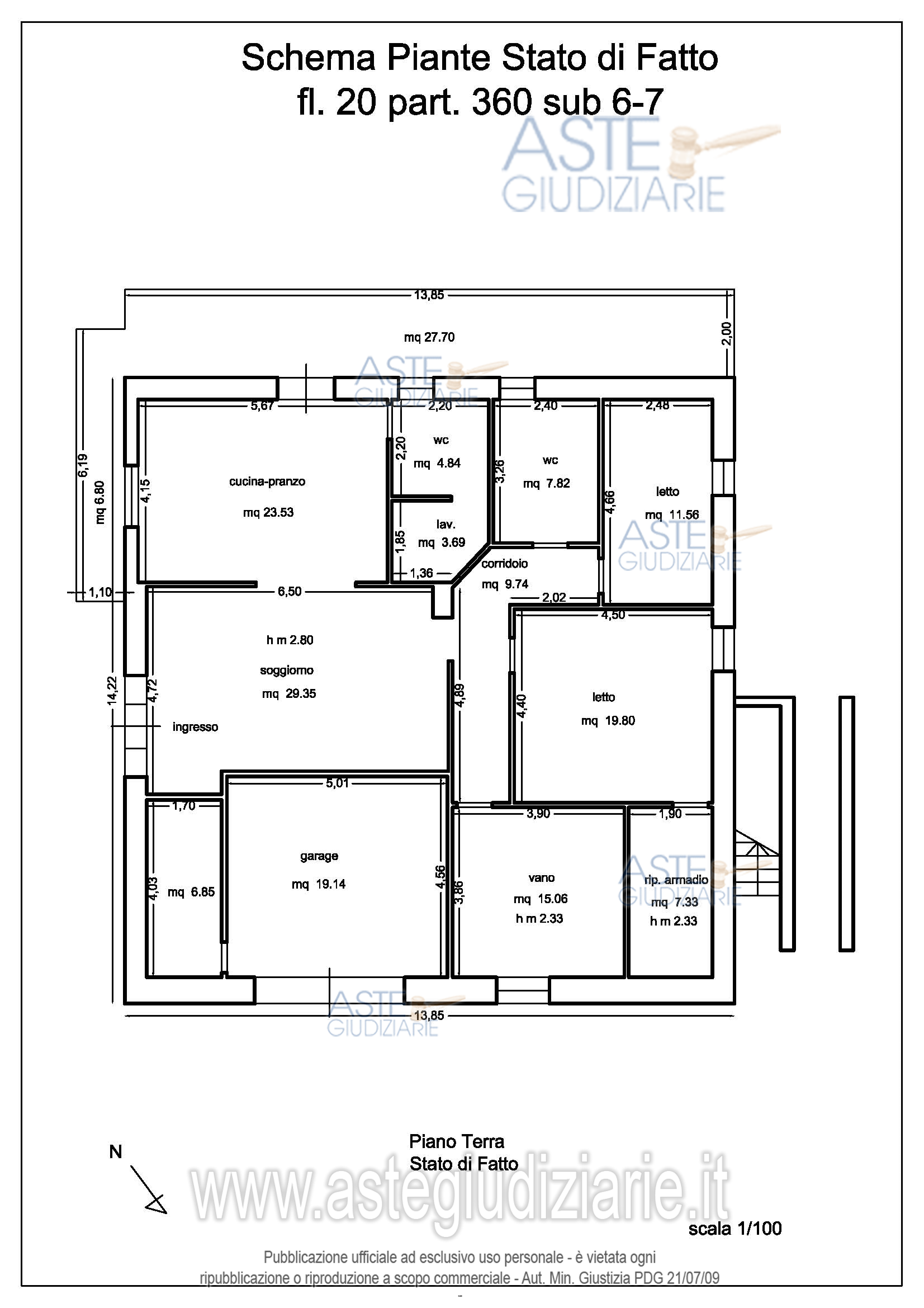
Vendita in attesa dell'emissione del nuovo bando d'asta. LOTTO 4: Piena proprietà dell’immobile sito in Scordia (CT), c.da Montagna, piano terra, composto da unità adibita a civile abitazione estesa mq. 132,73 circa, e da altra unità adibita a locale garage estesa mq. 25,99 circa. L’appartamento è composto da soggiorno, cucina-pranzo, n. 2 wc, lavanderia, corridoio e n. 3 vani di cui uno con annesso ripostiglio. Il garage è composto da due vani. Ultimo prezzo base € 29.060,77 (offerta minima € 21.795,57). Professionista delegato alla vendita Avv. Salvatore Palazzo - Email "salvatorepalazzo.ct@gmail.com"; Tel. 095388875. Custode Giudiziario Avv. Salvatore Palazzo - Email "salvatorepalazzo.ct@gmail.com"; Tel. 095388875. Rif. Tribunale di Caltagirone - Esecuzione immobiliare post legge 80 n. 20/2018

Superficie 132,73 mq
Vani 6,00
Bagni 1
Piano 0

Tipologia di vendita Giudiziaria
Modalità di vendita Sincrona mista
Termine presentazione offerte 29/10/2025 ore 12:00
Data e ora inizio gara 30/10/2025 ore 17:00
Codice ID astegiudiziarie.it 4221035
6,00
132,73
1
0
€ 29.061

Ti interessa questa vendita?

north_east

Clicca qui per essere indirizzato alla scheda sul sito di provenienza

Bene di astegiudiziarie.it