highlight_off
Riferimento annuncio 283749 info

Villa Via Gaspare Balbi, 10, 00122 Lido di Ostia RM, Italia, 00100 Roma (RM)

16,00
570,00
5
0
€ 512.000
Vendita all'asta Senza incanto, con gara telematica asincrona - LOTTO UNICO: Quota pari al 100% del Diritto di PROPRIETA’ su Villa e Negozio (già box auto) L’immobile è sito a poche centinaia di metri dalla linea di battigia della costa laziale. Prezzo base € 512.000,00 (offerta minima € 384.000,00). Data inizio operazioni di vendita: 22/10/2025 ore 11:00. Giudice Dott. Fernando Scolaro. Professionista delegato alla vendita Dott. Elisabetta Polentini. Custode Giudiziario Ivg Di Roma Srl - Email "pvp@visiteivgroma.it"; Tel. 0689569801. Rif. Tribunale di Roma - Esecuzione immobiliare post legge 80 n. 790/2021

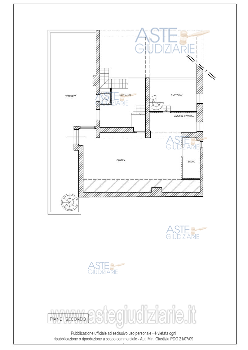
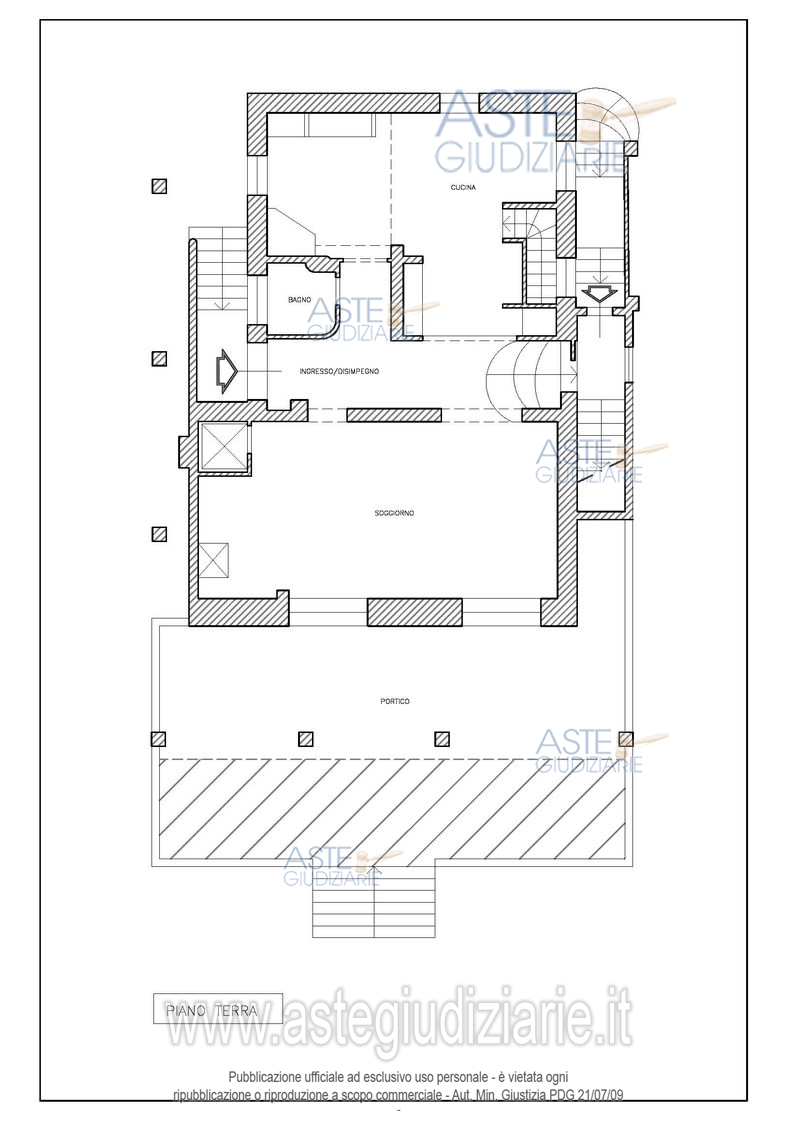
Superficie 570,00 mq
Vani 16,00
Bagni 5
Piano 0

Tipologia di vendita Giudiziaria
Modalità di vendita Asincrona telematica
Termine presentazione offerte 21/10/2025 ore 23:59
Data e ora inizio gara 22/10/2025 ore 11:00
Codice ID astegiudiziarie.it 4310032
16,00
570,00
5
0
€ 512.000

Ti interessa questa vendita?

north_east

Clicca qui per essere indirizzato alla scheda sul sito di provenienza

Bene di astegiudiziarie.it