highlight_off
Riferimento annuncio 308422 info

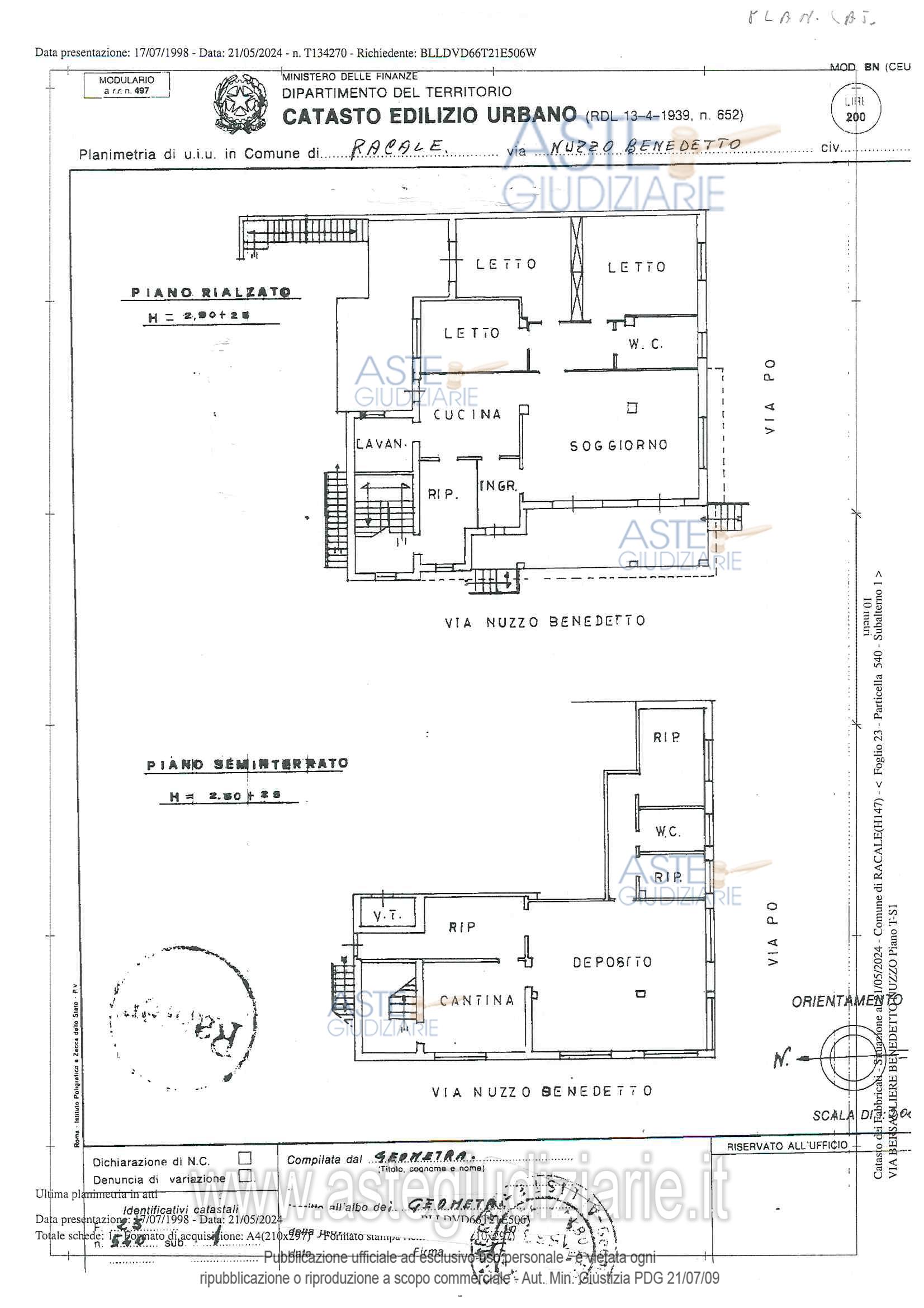
Villa Via Bersagliere Benedetto Nuzzo n.13, 73055 Racale LE, Italia, 73055 Racale (LE)

10,00
502,00
0
€ 139.433
Vendita all'asta Senza incanto, con gara telematica asincrona - LOTTO 1: Piena proprietà per la quota di 1/1 di villa singola sito in Racale (Lecce) Via Bersagliere B. Nuzzo n.13. Si sviluppa su tre livelli, piano seminterrato, piano rialzato e piano primo ( terrazza). Al piano seminterrato (oltre al vano garage) si trova un vano cantina, due vani deposito, ripostiglio, disimpegno, wc, lavanderia e vano tecnico esterno. Al piano rialzato si accede da due cancelletti siti sulle due vie ed è circondato dal villino antistante da due lati mentre sul lato sinistro vi è lo scivolo e l'area di manovra. Prezzo base € 139.433,00 (offerta minima € 104.574,75). Data inizio operazioni di vendita: 20/03/2026 ore 12:00. Professionista delegato alla vendita Dott. Anna Maria De Lorenzis - Email "DOTT.ANNADELORENZIS@LIBERO.IT"; Cell. 3405247026; Tel. 0832315320. Custode Giudiziario Dott. Anna Maria De Lorenzis - Email "DOTT.ANNADELORENZIS@LIBERO.IT"; Cell. 3405247026; Tel. 0832315320. Rif. Tribunale di Lecce - Espropriazione immobiliare (cartabia) n. 91/2024

Superficie 502,00 mq
Vani 10,00
Bagni
Piano 0

Tipologia di vendita Giudiziaria
Modalità di vendita Asincrona telematica
Termine presentazione offerte 01/01/1900 ore 00:00
Data e ora inizio gara 20/03/2026 ore 12:00
Codice ID astegiudiziarie.it 4330371
10,00
502,00
0
€ 139.433

Ti interessa questa vendita?

north_east

Clicca qui per essere indirizzato alla scheda sul sito di provenienza

Bene di astegiudiziarie.it