highlight_off
Riferimento annuncio 307281 info

Villa Via Brasca, 6, 90124 Palermo PA, Italia, 90100 Palermo (PA)

0
€ 145.969
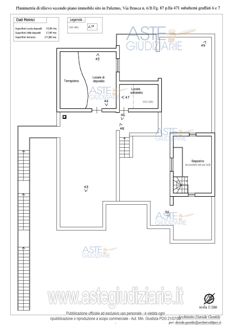
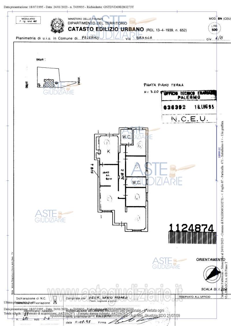
Vendita all'asta Senza incanto, con gara telematica sincrona mista - LOTTO UNICO: piena proprietà di un complesso immobiliare sito in Palermo, via Brasca n. 6/B, costituito da una villetta che si sviluppa su tre livelli (piano terra, primo e secondo), oltre piccolo locale di deposito a piano ammezzato (catastalmente primo piano) e da un magazzino a piano terra, oltre le seguenti pertinenze: corte comune lato ingresso (subalterno 1), corte comune nel prospetto posteriore (subalterno 9), locale autoclave-cisterna (subalterni 10-11), scala (subalterni 12-13). Prezzo base € 145.968,75 (offerta minima € 109.476,56). Data vendita 14/01/2026 ore 12:00. Professionista delegato alla vendita Avv. Calogero Pisciotta - Email "pisciotta.avvocato@gmail.com". Custode Giudiziario Avv. Calogero Pisciotta - Email "pisciotta.avvocato@gmail.com". Rif. Tribunale di Palermo - Esecuzione immobiliare post legge 80 n. 407/2019

Superficie mq
Vani
Bagni
Piano 0

Tipologia di vendita Giudiziaria
Modalità di vendita Sincrona mista
Termine presentazione offerte 01/01/1900 ore 00:00
Data e ora inizio gara 14/01/2026 ore 12:00
Codice ID astegiudiziarie.it 4329506
0
€ 145.969

Ti interessa questa vendita?

north_east

Clicca qui per essere indirizzato alla scheda sul sito di provenienza

Bene di astegiudiziarie.it