highlight_off
Riferimento annuncio 318540 info

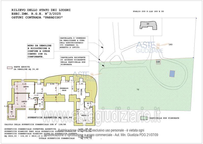
Villa CONTRADA PARADISO S.N., 72017 Ostuni (BR)

175,72
0
€ 177.920
Vendita all'asta Senza incanto, con gara telematica asincrona - LOTTO 01: Villa singola a OSTUNI CONTRADA PARADISO SN, della superficie commerciale di 175,72 mq per la quota di 100/100 di piena proprietà (*** DATO OSCURATO ***) l'immobile e' ubicato in zona agricola, dista circa 6 km dal centro abitato di Ostuni. insiste sulla particella 183 del foglio 205 del comune di Ostuni di superficie mq 3924, destinata a giardino di pertinenza. Prezzo base € 177.919,62 (offerta minima € 133.439,71). Data inizio operazioni di vendita: 25/05/2026 ore 10:30. Professionista delegato alla vendita: Avv. Anna De Nitto - Email "annadenitto@libero.it"; Cell. 349/7415144. Custode Giudiziario: Avv. Anna De Nitto - Email "annadenitto@libero.it"; Cell. 349/7415144. Rif. Tribunale di Brindisi - Espropriazione immobiliare (cartabia) n. 3/2025

Superficie 175,72 mq
Vani
Bagni
Piano 0

Tipologia di vendita Giudiziaria
Modalità di vendita Asincrona telematica
Termine presentazione offerte 18/05/2026 ore 12:00
Data e ora inizio gara 25/05/2026 ore 10:30
Codice ID astegiudiziarie.it 4337714
175,72
0
€ 177.920

Ti interessa questa vendita?

north_east

Clicca qui per essere indirizzato alla scheda sul sito di provenienza

Bene di astegiudiziarie.it