highlight_off
Riferimento annuncio 317200 info

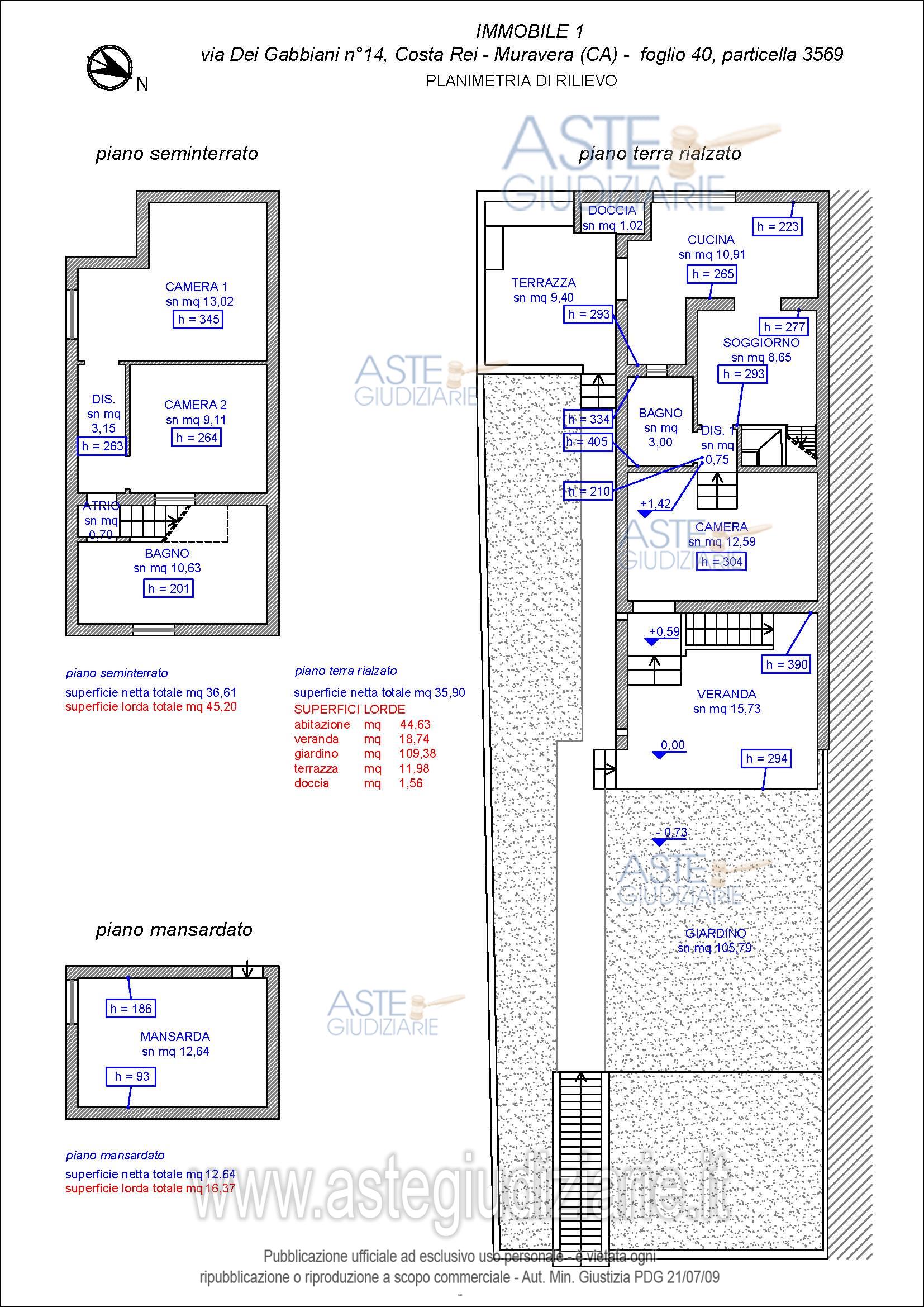
Villa Via dei Gabbiani, 14, 09043 Costa Rei SU, Italia, 09043 Muravera (SU)

35,00
69,00
0
€ 66.000
Vendita all'asta Senza incanto, con gara telematica asincrona - LOTTO 200: LOTTO 200 (2 A)-Diritti di piena proprietà per la quota di 1/2 su villetta capo schiera, categoria A/3 - posto al piano terra ubicato in località Costa Rei, comune di Muravera (CA), con accesso via Dei Gabbiani nº14, nº 3,5 vani. Villetta capo schiera attualmente distribuita su tre livelli di piano (terra/rialzato, mansarda e seminterrato), oltre giardino su due lati. Prezzo base € 66.000,00 (offerta minima € 49.500,00). Data inizio operazioni di vendita: 04/12/2025 ore 12:00. Giudice Dott. Gaetano Savona. Curatore Dott. Alessia Guerzoni. Rif. Tribunale di Cagliari - Fallimentare (nuovo rito) n. 99/2017

Superficie 69,00 mq
Vani 35,00
Bagni
Piano 0

Tipologia di vendita Giudiziaria
Modalità di vendita Asincrona telematica
Termine presentazione offerte 03/12/2025 ore 12:00
Data e ora inizio gara 04/12/2025 ore 12:00
Codice ID astegiudiziarie.it 4337742
35,00
69,00
0
€ 66.000

Ti interessa questa vendita?

north_east

Clicca qui per essere indirizzato alla scheda sul sito di provenienza

Bene di astegiudiziarie.it