highlight_off
Riferimento annuncio 328038 info

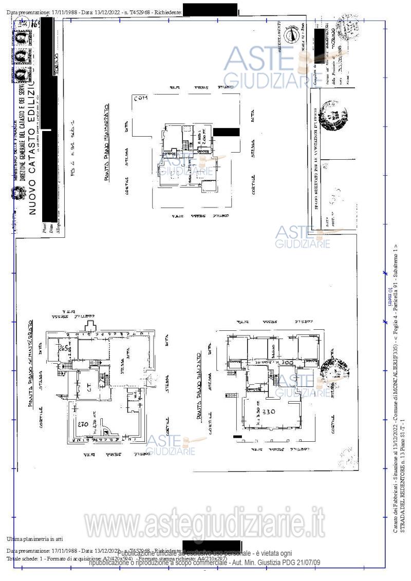
Villa Str. del Redentore, 13, 10024 Moncalieri TO, Italia, 10024 Moncalieri (TO)

609,00
0
€ 805.536
Vendita all'asta Senza incanto, con gara telematica asincrona - LOTTO UNICO: Grande villa indipendente sita nella collina di Moncalieri, libera a quattro lati con giardino di pertinenza esclusivo, autorimessa esclusiva di grandi dimensioni e piscina. La villa è elevata a due piani fuori terra ed un piano interrato; si distribuisce su sei livelli (interpiani) collegati da scala interna. Superficie commerciale complessiva 609,00 mq. Prezzo base € 805.536,00 (offerta minima € 604.152,00). Data inizio operazioni di vendita: 05/05/2026 ore 10:00. Giudice: Dott. Silvia Semini. Professionista delegato alla vendita: Avv. Valeria Pagano - Email "valeriapagano@studiolegaleruggeri.it"; Tel. 011/4330187. Custode Giudiziario: Avv. Valeria Pagano - Email "valeriapagano@studiolegaleruggeri.it"; Tel. 011/4330187. Rif. Tribunale di Torino - Esecuzione immobiliare post legge 80 n. 1933/2016

Superficie 609,00 mq
Vani
Bagni
Piano 0

Tipologia di vendita Giudiziaria
Modalità di vendita Asincrona telematica
Termine presentazione offerte 01/01/1900 ore 00:00
Data e ora inizio gara 05/05/2026 ore 10:00
Codice ID astegiudiziarie.it 4345934
609,00
0
€ 805.536

Ti interessa questa vendita?

north_east

Clicca qui per essere indirizzato alla scheda sul sito di provenienza

Bene di astegiudiziarie.it