highlight_off
Riferimento annuncio 89637 info

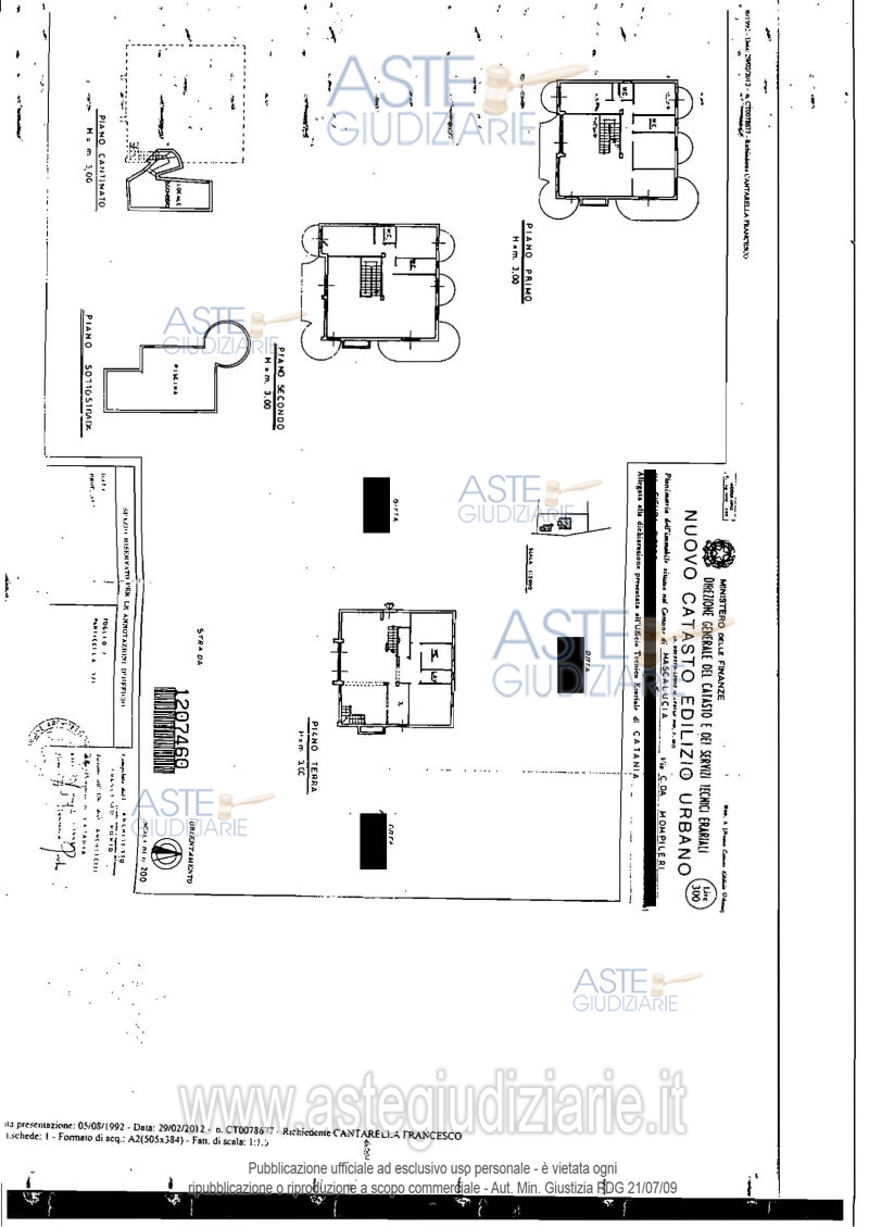
Villa Via Vittorio Alfieri n. 28, 95030 Mascalucia (CT)

19,50
300,00
0
€ 140.333
Vendita all'asta Senza incanto, con gara telematica sincrona mista - LOTTO 06: Immobile abusivo non sanabile. Villa per civile abitazione posta su tre piani, sita in Mascalucia, con accesso da via Vittorio Alfieri n. 28, composta da tre grandi saloni, otto vani ed accessori disposti sul piano cantinato, terra, primo e secondo, piscina e due corpi di fabbrica adibiti a locali di sgombero e docce, con circostante terreno di pertinenza nonché con adiacente tratto di terreno edificabile. Prezzo base € 140.333,00 (offerta minima € 105.250,00). Data vendita 09/07/2026 ore 09:30. Giudice: Maria Acagnino. Professionista delegato alla vendita: Avv. Claudia Cassella - Email "avv.claudiacassella@gmail.com"; Tel. 095/439770. Custode Giudiziario: Avv. Claudia Cassella - Email "avv.claudiacassella@gmail.com"; Tel. 095/439770. Rif. Tribunale di Catania - Esecuzione immobiliare post legge 80 n. 969/2010

Superficie 300,00 mq
Vani 19,50
Bagni
Piano 0

Tipologia di vendita Giudiziaria
Modalità di vendita Sincrona mista
Termine presentazione offerte 08/07/2026 ore 13:00
Data e ora inizio gara 09/07/2026 ore 09:30
Codice ID astegiudiziarie.it 359994
19,50
300,00
0
€ 140.333

Ti interessa questa vendita?

north_east

Clicca qui per essere indirizzato alla scheda sul sito di provenienza

Bene di astegiudiziarie.it