highlight_off
Riferimento annuncio 326388 info

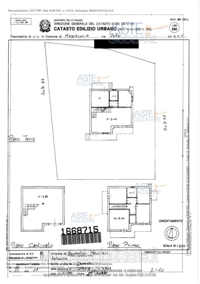
Villa Via Annunziata, 4, 95030 Mascalucia CT, Italia, 95030 Mascalucia (CT)

11,50
0
€ 395.600
Vendita all'asta Senza incanto, con gara telematica asincrona - LOTTO 2: Villa destinata a civile abitazione, sita in Mascalucia (CT) via Annunziata n. 4 (Quota Proprietà: 100%). Prezzo base € 395.600,00 (offerta minima € 296.700,00). Data inizio operazioni di vendita: 10/04/2026 ore 10:30. Professionista delegato alla vendita Dott. Orazio Lorenzo Barbagallo - Email "o.barbagallo@studiobarbagallo.it". Rif. Tribunale di Catania - Liquidazione controllata(cci) n. 24/2024

Superficie mq
Vani 11,50
Bagni
Piano 0

Tipologia di vendita Giudiziaria
Modalità di vendita Asincrona telematica
Termine presentazione offerte 09/04/2026 ore 12:00
Data e ora inizio gara 10/04/2026 ore 10:30
Codice ID astegiudiziarie.it 4343579
11,50
0
€ 395.600

Ti interessa questa vendita?

north_east

Clicca qui per essere indirizzato alla scheda sul sito di provenienza

Bene di astegiudiziarie.it