highlight_off
Riferimento annuncio 325075 info

Villa Contrada Berbaro n. 411/A, 91025 Marsala (TP)

8,50
935,58
0
€ 791.600
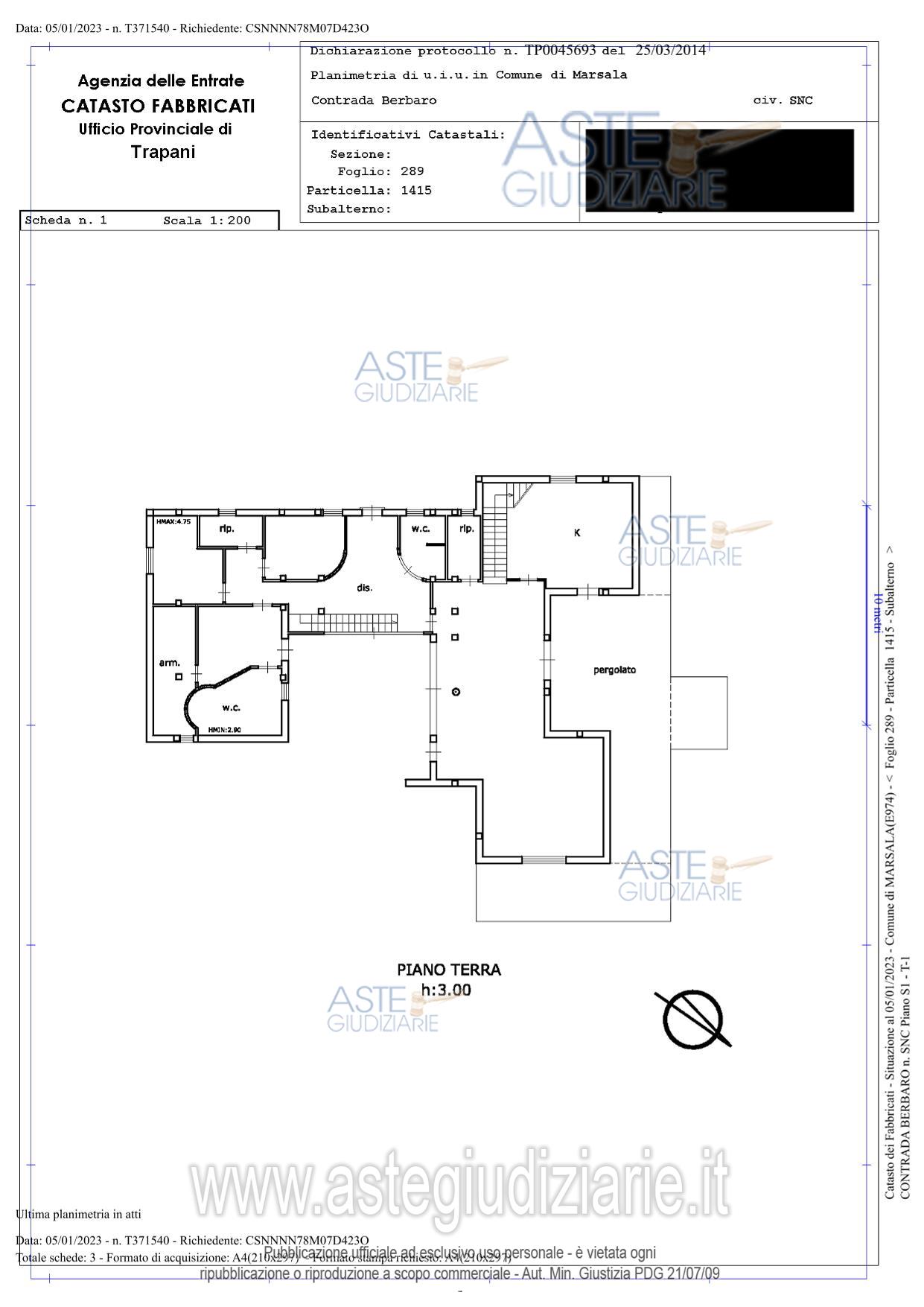
Vendita all'asta Senza incanto, con gara telematica asincrona - LOTTO 1: Villetta destinata a civile abitazione, costituita da un salotto con angolo cottura, una camera daletto, un bagno lavanderia due ripostigli ed un locale tecnico al piano seminterrato; da unacucina, salotto, due bagni, tre camere da letto ed un ripostiglio al piano terra; da una stanza alprimo piano, con giardino pertinenziale avente superficie di circa 2.560 mq. ad uso esclusivonel quale sono presenti una piscina e delle piccole costruzioni dedicate alla cura del giardino eal ricovero di an. Prezzo base € 791.600,00 (offerta minima € 593.700,00). Data inizio operazioni di vendita: 14/04/2026 ore 16:30. Giudice Filippetta Signorello. Professionista delegato alla vendita Avv. Vito Darienzo. Custode Giudiziario Avv. Vito Darienzo - Email "vito.darienzo70@gmail.com"; Cell. 3471935106. Rif. Tribunale di Marsala - Volontaria giurisdizione n. 602/2025

Superficie 935,58 mq
Vani 8,50
Bagni
Piano 0

Tipologia di vendita Giudiziaria
Modalità di vendita Asincrona telematica
Termine presentazione offerte 13/04/2026 ore 23:59
Data e ora inizio gara 14/04/2026 ore 16:30
Codice ID astegiudiziarie.it 4343532
8,50
935,58
0
€ 791.600

Ti interessa questa vendita?

north_east

Clicca qui per essere indirizzato alla scheda sul sito di provenienza

Bene di astegiudiziarie.it