highlight_off
Riferimento annuncio 323065 info

Villa Via S. Eustachio, 203, 81024 Maddaloni CE, Italia, 81024 Maddaloni (CE)

12,50
298,00
0
€ 372.572
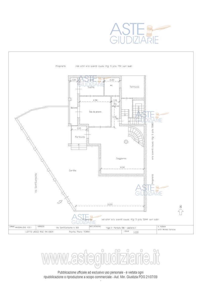
Vendita all'asta Senza incanto, con gara telematica asincrona - LOTTO 01: Villa con annesso garage ubicata in Maddaloni (CE) alla Via Sant'Eustachio 203. La villa è composta da quattro piani oltre terrazzo. Il piano seminterrato presenta cucina, bagno e deposito. Il piano terra (rialzato) presenta un cortile, un soggiorno, due disimpegni, un bagno, una sala da pranzo, un balcone. Il piano primo presenta quattro camere da letto, un bagno e un balcone. Il secondo piano presenta una scala, un bagno. Il Garage, identificato con il sub 2, posto al piano seminterrato. Prezzo base € 372.572,00 (offerta minima € 279.429,00). Data inizio operazioni di vendita: 04/03/2026 ore 10:30. Custode Giudiziario Dott. Domenico D'acquisto - Email "m.dacquisto@gmail.com"; Cell. 3402752786; Tel. 08119751643. Rif. Tribunale di Santa Maria Capua Vetere - Esecuzione immobiliare post legge 80 n. 94/2024

Superficie 298,00 mq
Vani 12,50
Bagni
Piano 0

Tipologia di vendita Giudiziaria
Modalità di vendita Asincrona telematica
Termine presentazione offerte 01/01/1900 ore 00:00
Data e ora inizio gara 04/03/2026 ore 10:30
Codice ID astegiudiziarie.it 4342309
12,50
298,00
0
€ 372.572

Ti interessa questa vendita?

north_east

Clicca qui per essere indirizzato alla scheda sul sito di provenienza

Bene di astegiudiziarie.it