highlight_off
Riferimento annuncio 253853 info

Villa Via San Benedetto 18, 81024 Maddaloni (CE)

100,00
12138,00
0
€ 1.095.000
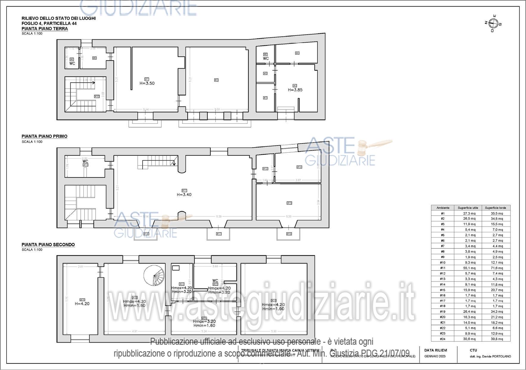
Vendita all'asta Senza incanto, con gara telematica asincrona - LOTTO 7: Diritto di piena proprietà della villa signorile su due livelli oltre al sottotetto con doppio accesso, di cui quello principale dalla Via San Benedetto 18, oltre terreno pertinenziale circostante il fabbricato per tre lati di Mq.12.138. Prezzo base € 1.095.000,00 (offerta minima € 821.250,00). Data inizio operazioni di vendita: 25/06/2026 ore 12:00. Giudice: Marta Sodan. Soggetto specializzato alla vendita: Aste Giudiziarie Inlinea Spa - Email "vendite@astegiudiziarie.it". Rif. Tribunale di Santa Maria Capua Vetere - Nuovo concordato preventivo n. 10/2017
Vendita all'asta Senza incanto, con gara telematica asincrona - LOTTO 7: Vollständiges Eigentumsrecht an der zweistöckigen Villa mit Dachgeschoss und doppeltem Zugang, wovon der Hauptzugang von der Via San Benedetto 18 erfolgt, sowie das dazugehörige Grundstück rund um das Gebäude auf drei Seiten mit einer Größe von 12.138 Quadratmetern. . Prezzo base € 1.095.000,00 (offerta minima € 821.250,00). Data inizio operazioni di vendita: 25/06/2026 ore 12:00. Giudice: Marta Sodan. Soggetto specializzato alla vendita: Aste Giudiziarie Inlinea Spa - Email "vendite@astegiudiziarie.it". Rif. Tribunale di Santa Maria Capua Vetere - Nuovo concordato preventivo n. 10/2017
Vendita all'asta Senza incanto, con gara telematica asincrona - LOTTO 7: Full ownership rights of the stately villa on two levels with an attic and double access, the main one being from Via San Benedetto 18, as well as the surrounding land adjacent to the building on three sides measuring 12,138 square meters. . Prezzo base € 1.095.000,00 (offerta minima € 821.250,00). Data inizio operazioni di vendita: 25/06/2026 ore 12:00. Giudice: Marta Sodan. Soggetto specializzato alla vendita: Aste Giudiziarie Inlinea Spa - Email "vendite@astegiudiziarie.it". Rif. Tribunale di Santa Maria Capua Vetere - Nuovo concordato preventivo n. 10/2017
Vendita all'asta Senza incanto, con gara telematica asincrona - LOTTO 7: Villa bourgeoise avec parcelle de terrain contigue de presque 1238 mètres carrés . Prezzo base € 1.095.000,00 (offerta minima € 821.250,00). Data inizio operazioni di vendita: 25/06/2026 ore 12:00. Giudice: Marta Sodan. Soggetto specializzato alla vendita: Aste Giudiziarie Inlinea Spa - Email "vendite@astegiudiziarie.it". Rif. Tribunale di Santa Maria Capua Vetere - Nuovo concordato preventivo n. 10/2017
Vendita all'asta Senza incanto, con gara telematica asincrona - LOTTO 7: Полное собственное право на двухэтажную роскошную виллу плюс чердак с двойным доступом, основной из которых с улицы Сан-Бенедетто 18, также с земельным участком площадью 12 138 квадратных метров, прилегающим к зданию с трёх сторон. . Prezzo base € 1.095.000,00 (offerta minima € 821.250,00). Data inizio operazioni di vendita: 25/06/2026 ore 12:00. Giudice: Marta Sodan. Soggetto specializzato alla vendita: Aste Giudiziarie Inlinea Spa - Email "vendite@astegiudiziarie.it". Rif. Tribunale di Santa Maria Capua Vetere - Nuovo concordato preventivo n. 10/2017

Superficie 12138,00 mq
Vani 100,00
Bagni
Piano 0

Tipologia di vendita Giudiziaria
Modalità di vendita Asincrona telematica
Termine presentazione offerte 24/06/2026 ore 12:00
Data e ora inizio gara 25/06/2026 ore 12:00
Codice ID astegiudiziarie.it 4287616
100,00
12138,00
0
€ 1.095.000

Ti interessa questa vendita?

north_east

Clicca qui per essere indirizzato alla scheda sul sito di provenienza

Bene di astegiudiziarie.it