highlight_off
Riferimento annuncio 76752 info

Villa Str. Colle Montanari, 04100 Latina LT, Italia, 04100 Latina (LT)

21,00
23564,00
1
0
€ 1.164.000
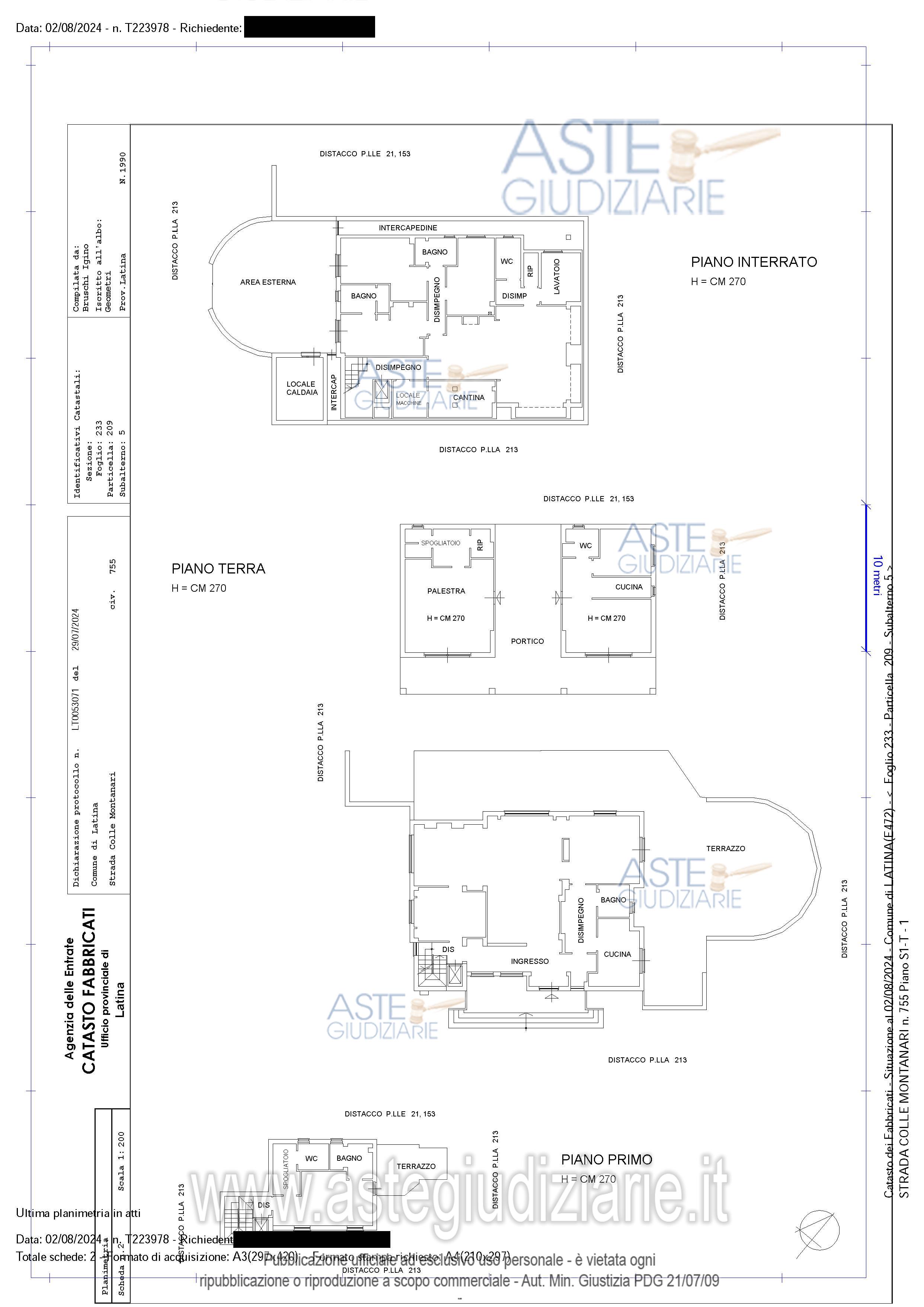
Vendita all'asta Senza incanto, con gara telematica asincrona - LOTTO 3: Diritto di piena proprietà dell'immobile sito in Comune di Latina, in una traversa di Via Isonzo sita al Km. 5+200, n. 755 in località denominata "Colle Montanari" (nelle vicinanze del Parco di Fogliano) e precisamente: - complesso immobiliare ricadente su un vasto appezzamento di terreno dell'estensione di mq. 23.564 circa tra coperto e scoperto. Prezzo base € 1.164.000,00 (offerta minima € 931.200,00). Data inizio operazioni di vendita: 02/12/2025 ore 11:00. Giudice Dott. Alessandra Lulli. Professionista delegato alla vendita Not. Nicola Riccardelli - Email "nriccardelli.3@notariato.it"; Cell. 0773695902; Tel. 0773695902. Custode Giudiziario Not. Nicola Riccardelli - Email "nriccardelli.3@notariato.it"; Cell. 0773695902; Tel. 0773695902. Rif. Tribunale di Latina - Esecuzione immobiliare post legge 80 n. 62/2006

Superficie 23564,00 mq
Vani 21,00
Bagni 1
Piano 0

Tipologia di vendita Giudiziaria
Modalità di vendita Asincrona telematica
Termine presentazione offerte 01/12/2025 ore 13:00
Data e ora inizio gara 02/12/2025 ore 11:00
Codice ID astegiudiziarie.it 186418
21,00
23564,00
1
0
€ 1.164.000

Ti interessa questa vendita?

north_east

Clicca qui per essere indirizzato alla scheda sul sito di provenienza

Bene di astegiudiziarie.it