Riferimento annuncio 287087
        
    
    Villa Str. Umberto Nobile, 14, 04100 Latina LT, Italia, 04100 Latina (LT)
                
                18,00
            
            
                
                403,00
            
            
                
                3
            
            
                
                0
            
        
€ 309.375    
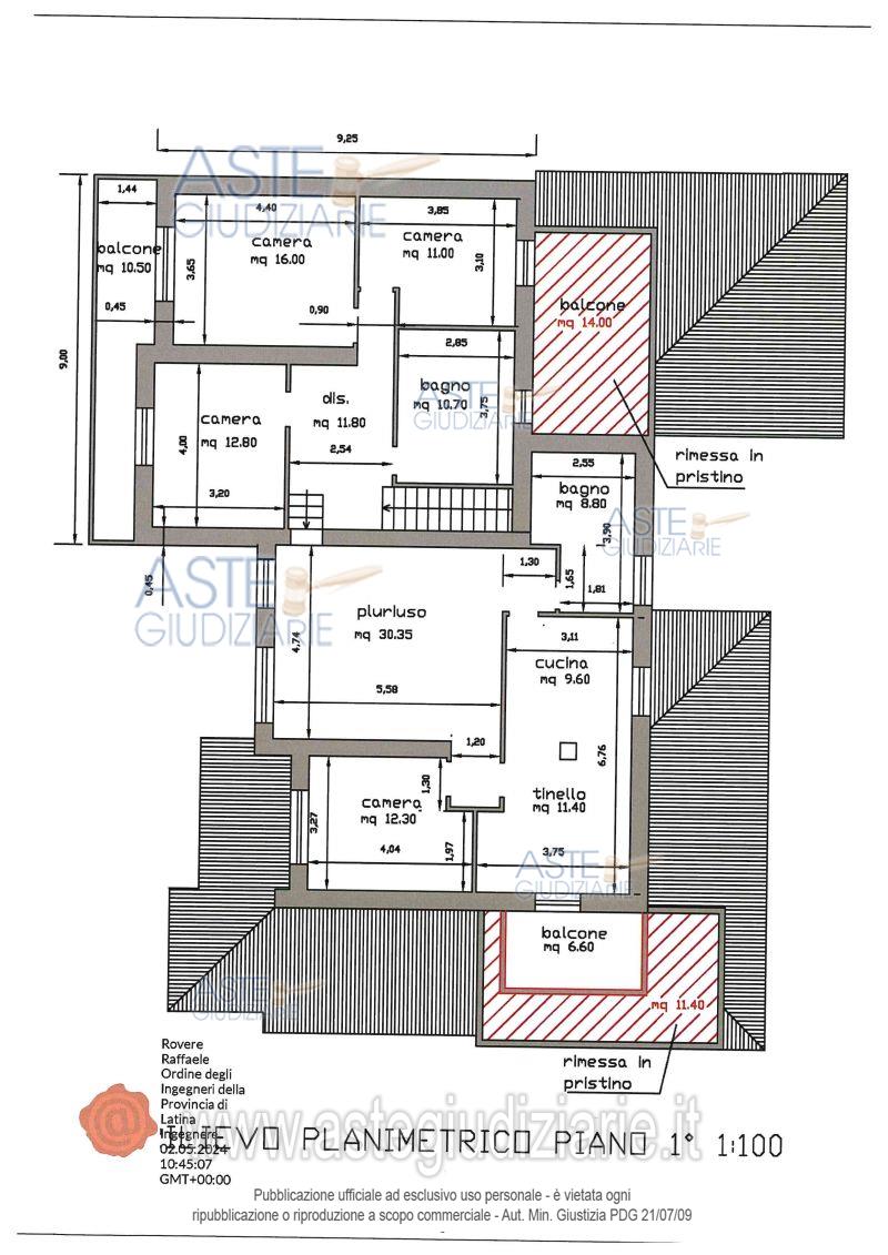
                Vendita all'asta Senza incanto, con gara telematica asincrona - LOTTO UNICO:  Lotto unico (costituito dai beni n.1 e n. 2) piena proprietà: Bene n. 1: abitazione in villa di due piani fuori terra con annessa corte a giardino sita in Latina Strada Umberto Nobile n. 14, al NCEU Comune di Latina Foglio 176, part. 111 sub 1 e 2, Piano T-1,Cat. A/7,Classe 4, vani 18,Sup. cat. mq 403, Sup. totale escluse aree scoperte mq. 391, RC. €. 1.812,76; Bene n.2:Terreno mq 1.350, al NCT Comune di Latina foglio 176 part. 160 RD.€. 10,39,RA. 10,46 ( giardino annesso alla villa). Prezzo base € 309.375,00 (offerta minima € 232.031,25). Data inizio operazioni di vendita: 18/11/2025 ore 10:00. Professionista delegato alla vendita Avv. Costanza Taranto - Email "info@studiolegaletaranto.it"; Tel. 0773691230. Custode Giudiziario Avv. Costanza Taranto - Email "info@studiolegaletaranto.it"; Tel. 0773691230.  Rif. Tribunale di Latina - Esecuzione immobiliare post legge 80 n. 65/2023
            
   
| Superficie | 403,00 mq | 
|---|---|
| Vani | 18,00 | 
| Bagni | 3 | 
| Piano | 0 | 
| Tipologia di vendita | Giudiziaria | 
|---|---|
| Modalità di vendita | Asincrona telematica | 
| Termine presentazione offerte | 01/01/1900 ore 00:00 | 
| Data e ora inizio gara | 18/11/2025 ore 10:00 | 
 
                         
                         
                         
                         
                         
                         
                         
                         
                         
                         
                         
                         
                         
                         
                         
                         
                        