highlight_off
Riferimento annuncio 315700 info

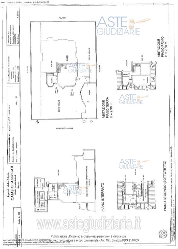
Villa Via A. Cassani, 33, 00046 Grottaferrata RM, Italia, 00046 Grottaferrata (RM)

11,50
212,00
4
0
€ 353.400
Vendita all'asta Senza incanto, con gara telematica asincrona - LOTTO 1: Appartamento posto ai piani Seminterrato S1- Terra-Primo e Secondo, in villa, con annessa corte ed area di parcheggio coperta di uso comune alle altre unità immobiliari, in Comune di Grottaferrata (RM) identificato al C.F. al foglio 10 part.1121 sub.502. Prezzo base € 353.400,00 (offerta minima € 265.050,00). Data inizio operazioni di vendita: 04/03/2026 ore 10:00. Giudice Dott. Anna Luisa Di Serafino. Professionista delegato alla vendita Avv. Monica Pitzalis. Custode Giudiziario Avv. Monica Pitzalis - Email "pitzalis.avvmonica@alice.it"; Cell. 3459980973. Rif. Tribunale di Velletri - Esecuzione immobiliare post legge 80 n. 274/2022

Superficie 212,00 mq
Vani 11,50
Bagni 4
Piano 0

Tipologia di vendita Giudiziaria
Modalità di vendita Asincrona telematica
Termine presentazione offerte 03/03/2026 ore 23:59
Data e ora inizio gara 04/03/2026 ore 10:00
Codice ID astegiudiziarie.it 4336654
11,50
212,00
4
0
€ 353.400

Ti interessa questa vendita?

north_east

Clicca qui per essere indirizzato alla scheda sul sito di provenienza

Bene di astegiudiziarie.it