highlight_off
Riferimento annuncio 287778 info

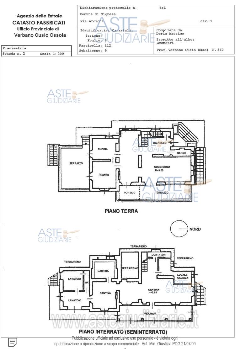
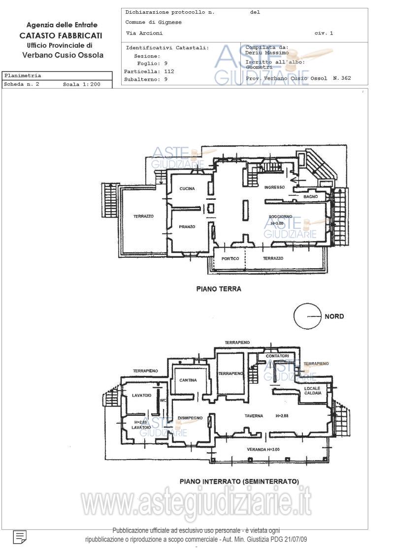
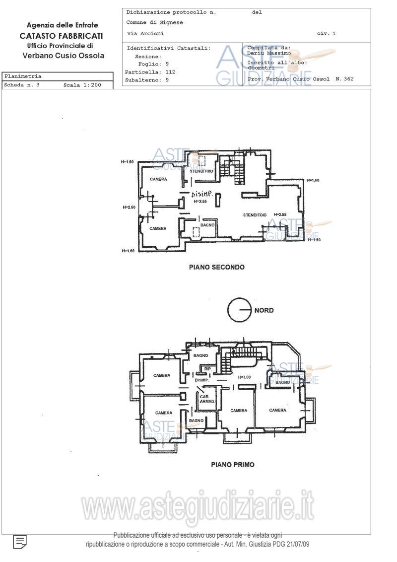
Villa Via Arcioni, 1, 28836 Gignese VB, Italia, 28836 Gignese (VB)

200,00
813,00
6
0
€ 802.000
Vendita all'asta Senza incanto, con gara telematica asincrona - LOTTO UNICO: Diritto di piena proprietà su villa, garage, lastrico solare e deposito. Prezzo base € 802.000,00 (offerta minima € 601.500,00). Data inizio operazioni di vendita: 23/06/2026 ore 10:00. Giudice: Dott. Antonietta Sacco. Custode Giudiziario: Aste Giudiziarie Inlinea Spa - Email "ufficiocustodie@astegiudiziarie.it". Rif. Tribunale di Verbania - Espropriazione immobiliare (cartabia) n. 52/2023

Superficie 813,00 mq
Vani 200,00
Bagni 6
Piano 0

Tipologia di vendita Giudiziaria
Modalità di vendita Asincrona telematica
Termine presentazione offerte 22/06/2026 ore 12:00
Data e ora inizio gara 23/06/2026 ore 10:00
Codice ID astegiudiziarie.it 4314340
200,00
813,00
6
0
€ 802.000

Ti interessa questa vendita?

north_east

Clicca qui per essere indirizzato alla scheda sul sito di provenienza

Bene di astegiudiziarie.it