highlight_off
Riferimento annuncio 306109 info

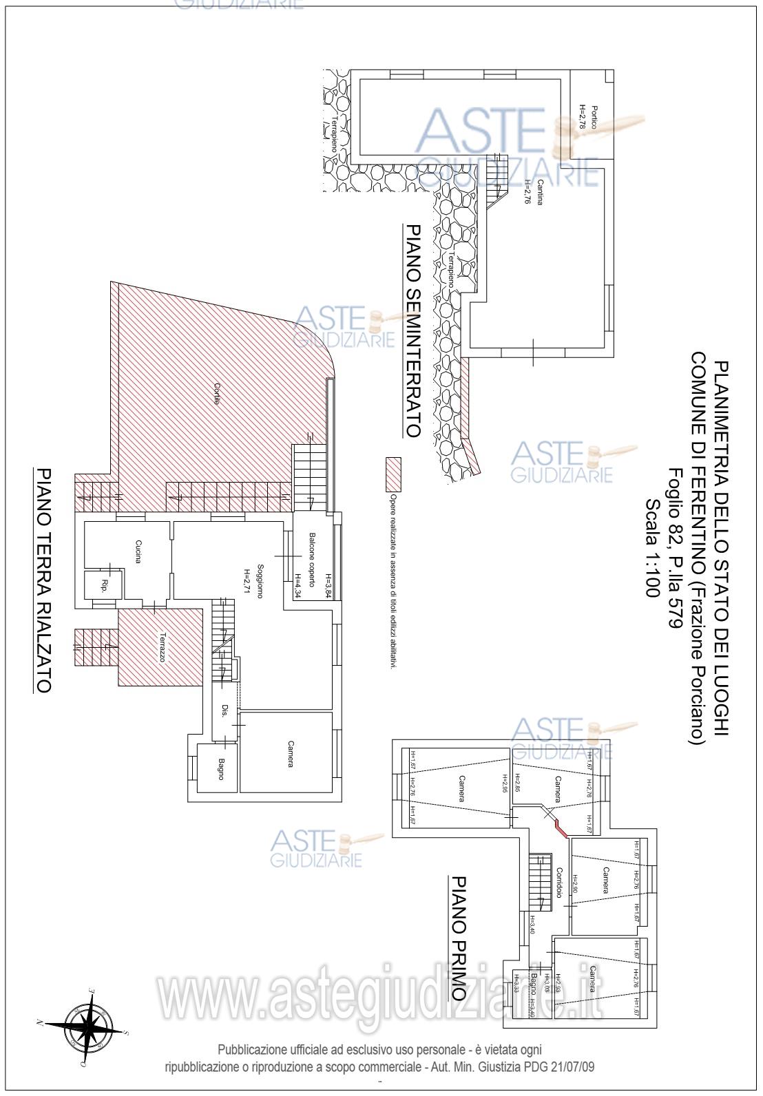
Villa 03013 Porciano FR, Italia, 03013 Ferentino (FR)

38,16
0
€ 91.500
Vendita all'asta Senza incanto, con gara telematica asincrona - LOTTO 1: Immobile distinto in catasto al fg. 82, particella 579, ad uso abitativo a triplice elevazione con un piano seminterrato, piano terra rialzato e piano primo, con corte circostante di circa mq. 870,00, tenuta a giardino per circa mq. 722, e restante parte tenuta a cortile, scale esterne, terrazzo e camminamenti. Prezzo base € 91.500,00 (offerta minima € 68.625,00). Data inizio operazioni di vendita: 18/11/2025 ore 11:30. Professionista delegato alla vendita Dott. Anna Maria Grimaldi - Email "annamaria@studioassociatogrimaldi.it"; Cell. 3475329730; Tel. 0775870283. Custode Giudiziario Dott. Anna Maria Grimaldi - Email "annamaria@studioassociatogrimaldi.it"; Cell. 3475329730; Tel. 0775870283. Rif. Tribunale di Frosinone - Espropriazione immobiliare (cartabia) n. 41/2024

Superficie 38,16 mq
Vani
Bagni
Piano 0

Tipologia di vendita Giudiziaria
Modalità di vendita Asincrona telematica
Termine presentazione offerte 17/11/2025 ore 12:00
Data e ora inizio gara 18/11/2025 ore 11:30
Codice ID astegiudiziarie.it 4328598
38,16
0
€ 91.500

Ti interessa questa vendita?

north_east

Clicca qui per essere indirizzato alla scheda sul sito di provenienza

Bene di astegiudiziarie.it