Riferimento annuncio 291342
        
    
    Villa Via Pantane, 56043 Fauglia PI, Italia, 56043 Fauglia (PI)
                
                14,50
            
            
                
                435,00
            
            
                
                0
            
        
€ 561.375    
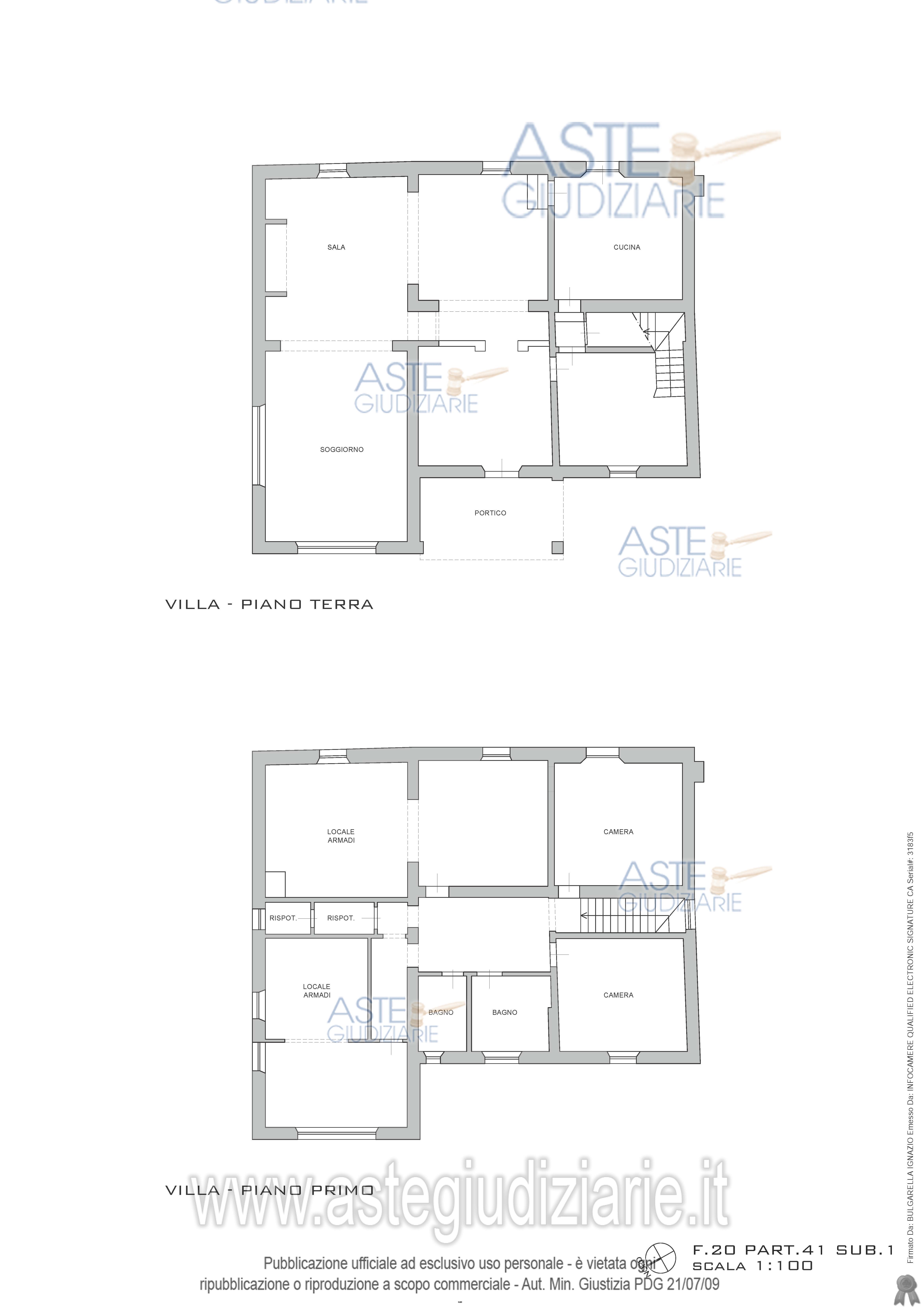
                Vendita in attesa dell'emissione del nuovo bando d'asta. LOTTO UNICO: Compendio immobiliare in Fauglia composto da villa posta all'interno di ampia area a parco, su due piani fuori terra, con piscina interrata e campo da tennis, oltre a fabbricato residenziale composto da due unità immobiliari magazzini e vasti appezzamenti di terreni agricoli ad uso pertinenziale dei fabbricati. Ultimo prezzo base € 561.375,00 (offerta minima € 421.031,25). Professionista delegato alla vendita Dott. Laura Agudio - Email "LAURA.AGUDIO@STUDIOSARTINI.COM"; Tel. 0587735484. Custode Giudiziario Dott. Cosimo Erriquez - Email "PRENOTAZIONIPISA@ASTAGIUDIZIARIA.COM"; Tel. 050554790.  Rif. Tribunale di Pisa - Esecuzione immobiliare post legge 80 n. 215/2022
            
   
| Superficie | 435,00 mq | 
|---|---|
| Vani | 14,50 | 
| Bagni | |
| Piano | 0 | 
| Tipologia di vendita | Giudiziaria | 
|---|---|
| Modalità di vendita | Asincrona telematica | 
| Termine presentazione offerte | 23/10/2025 ore 13:00 | 
| Data e ora inizio gara | 24/10/2025 ore 15:00 | 
 
                         
                         
                         
                         
                         
                         
                         
                         
                         
                         
                         
                         
                         
                         
                         
                         
                         
                         
                         
                         
                         
                         
                         
                         
                         
                         
                         
                         
                         
                        