Riferimento annuncio 314934
        
    
    Villa Via della Grangia, 46, 12100 Cascina Grangia CN, Italia, 12100 Cuneo (CN)
                
                6,50
            
            
                
                268,50
            
            
                
                2
            
            
                
                0
            
        
€ 325.000    
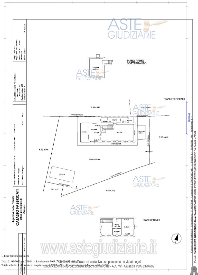
                Vendita in attesa dell'emissione del nuovo bando d'asta. LOTTO UNICO: Villa su due piani composta da cucina, soggiorno, un bagno e una lavanderia, oltre a una centrale termica, ripostiglio e porticati esterni, due camere da letto e un secondo bagno. Giardino con piscina di esclusiva proprietà. Impianto fotovoltaico da 6,15 kW sul tetto. Consistenza lorda: 215,50 mq di abitazione e porticati, 683 mq di giardino recintato, 26 mq di piscina; 56 mq di aree esterne dalla recinzione. Tettoia aperta per ricovero auto di 11 mq. Locale deposito libero su 4 lati di mq 42. Ultimo prezzo base € 325.000,00 (offerta minima € 270.000,00). Curatore Dott. Giovanni Imberti - Email "giovanni@studioimberti.net"; Cell. 3492815254; Tel. 0173759301.  Rif. Tribunale di Cuneo - Liquidazione giudiziale(cci) n. 12/2025
            
   
| Superficie | 268,50 mq | 
|---|---|
| Vani | 6,50 | 
| Bagni | 2 | 
| Piano | 0 | 
| Tipologia di vendita | Giudiziaria | 
|---|---|
| Modalità di vendita | Asincrona telematica | 
| Termine presentazione offerte | 03/11/2025 ore 12:30 | 
| Data e ora inizio gara | 04/11/2025 ore 12:30 |