highlight_off
Riferimento annuncio 276524 info

Villa Contrada Vatalara, 90015 Cefalù (PA)

4,00
5200,90
0
€ 77.576
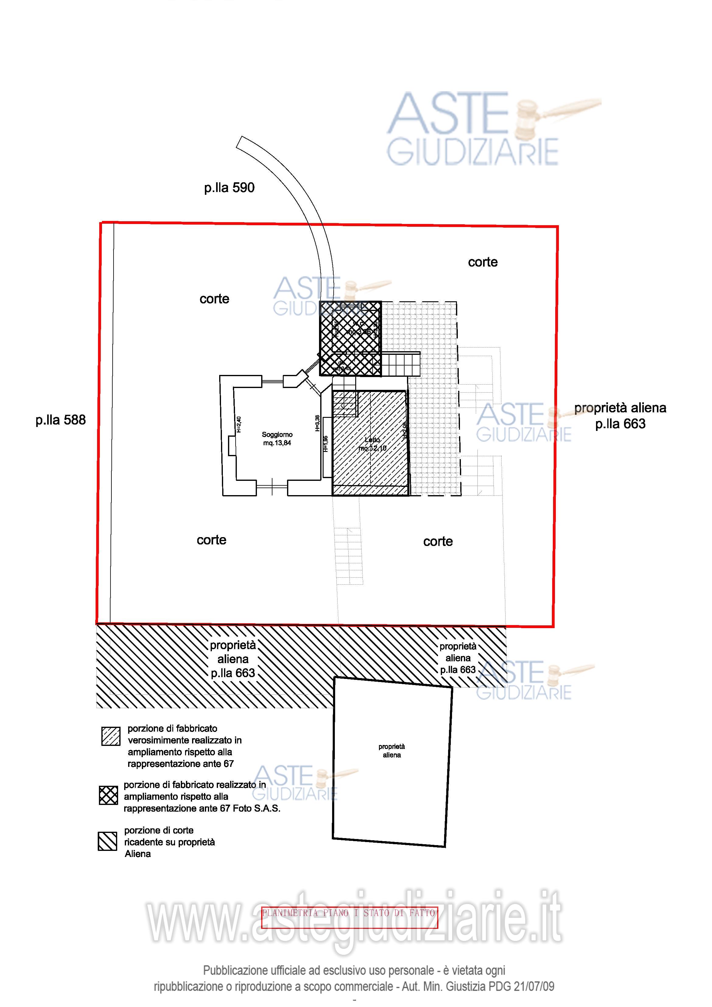
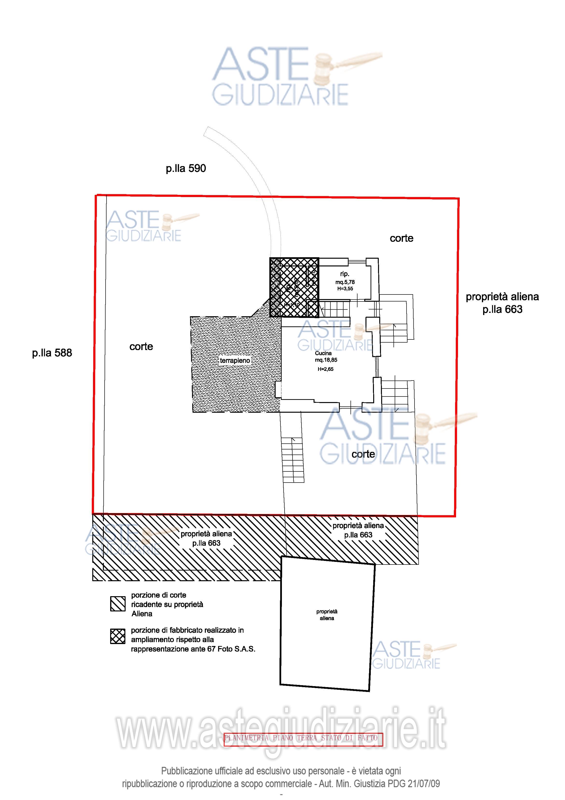
Vendita all'asta Senza incanto, con gara telematica sincrona - LOTTO UNICO: Unità immobiliare in villino sita in Cefalù c.da Vatalara snc, P. T - I, identificata in catasto al Foglio 15, particella 591, con annessi appezzamenti di terreno, censiti in catasto al Foglio 15, particelle 453 - 473 - 588 - 590. Prezzo base € 77.575,78 (offerta minima € 58.181,83). Data vendita 14/11/2025 ore 11:00. Professionista delegato alla vendita Avv. Laura Gancitano - Email "avv.lauragancitano@libero.it"; Cell. 3285328562; Tel. 0917308790. Custode Giudiziario Avv. Laura Gancitano - Email "avv.lauragancitano@libero.it"; Cell. 3285328562; Tel. 0917308790. Rif. Tribunale di Termini Imerese - Esecuzione immobiliare post legge 80 n. 173/2023

Superficie 5200,90 mq
Vani 4,00
Bagni
Piano 0

Tipologia di vendita Giudiziaria
Modalità di vendita Sincrona telematica
Termine presentazione offerte 01/01/1900 ore 00:00
Data e ora inizio gara 14/11/2025 ore 11:00
Codice ID astegiudiziarie.it 4305576
4,00
5200,90
0
€ 77.576

Ti interessa questa vendita?

north_east

Clicca qui per essere indirizzato alla scheda sul sito di provenienza

Bene di astegiudiziarie.it