highlight_off
Riferimento annuncio 288402 info

Villa Via della Repubblica, 18, 56040 Castellina Marittima PI, Italia, 56040 Castellina Marittima (PI)

8,00
513,00
1
0
€ 154.828
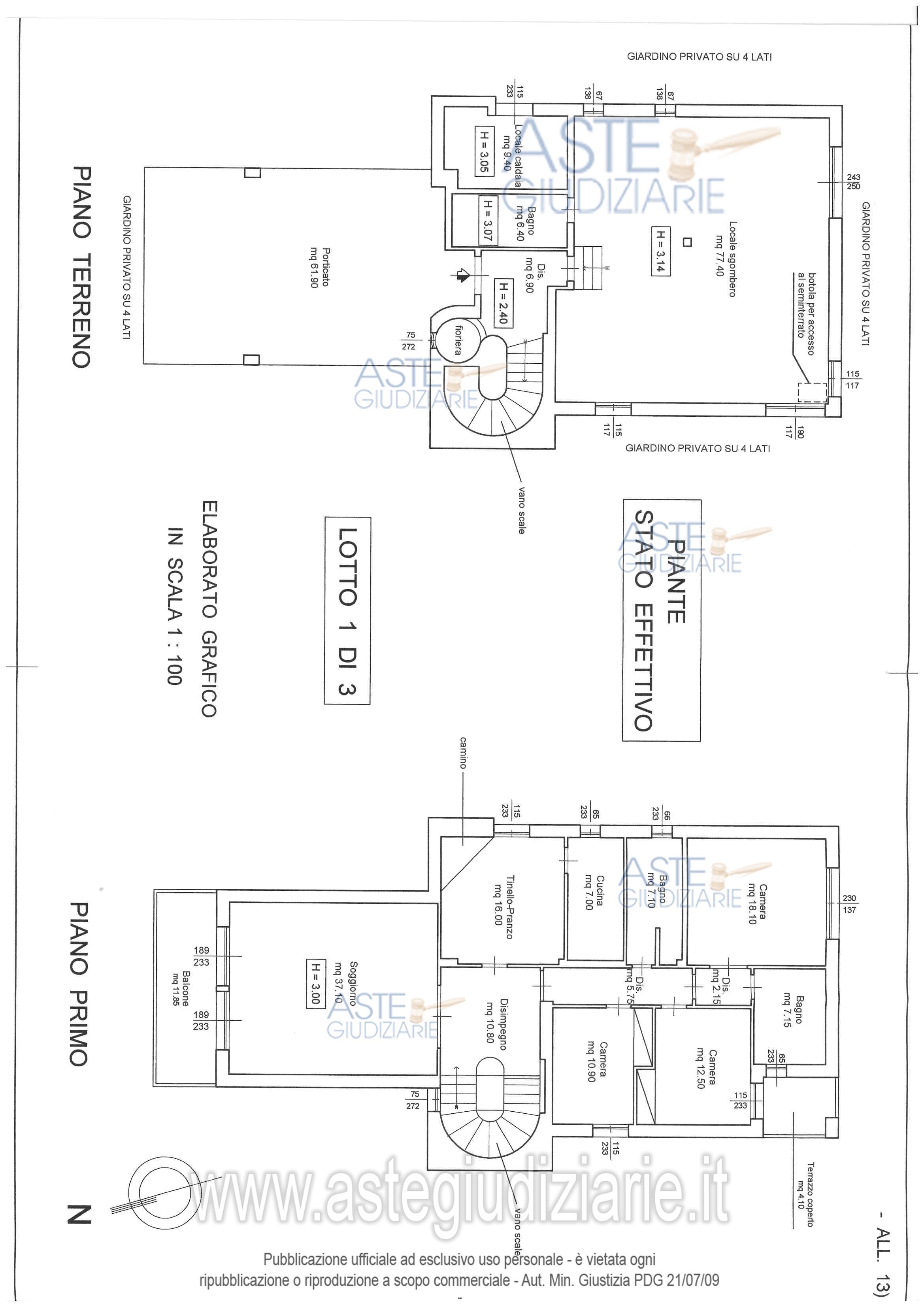
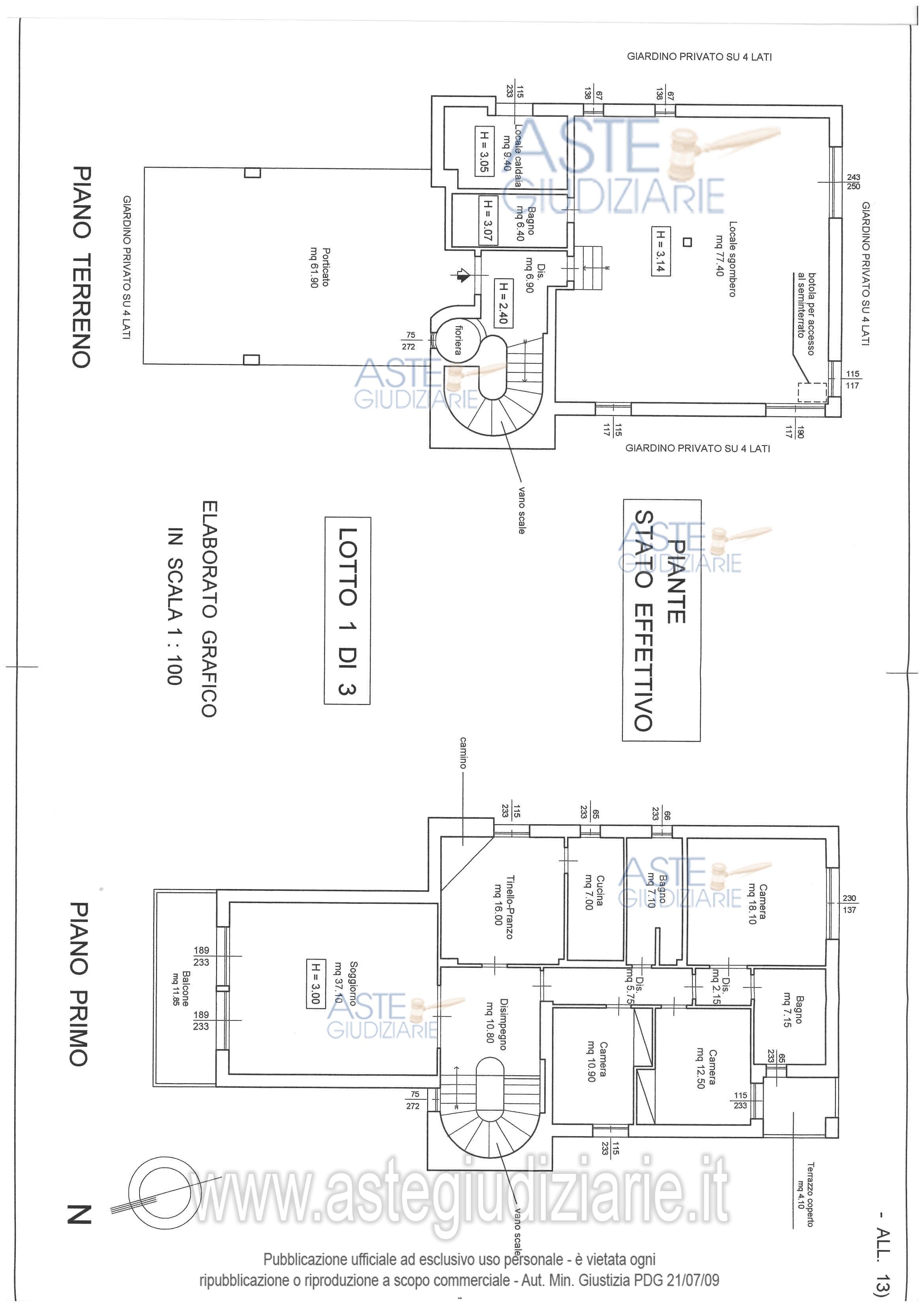
Vendita all'asta Senza incanto, con gara telematica asincrona - LOTTO 1: Piena proprietà di un villa al piano terreno e primo, composta da ampia abitazione con ingresso al piano terreno e i restanti vani al piano primo; vi è poi un’estesa autorimessa con adiacenti due locali accessori. Prezzo base € 154.828,12 (offerta minima € 116.121,09). Data inizio operazioni di vendita: 10/02/2026 ore 12:00. Giudice Dott. Simona Capurso. Professionista delegato alla vendita Avv. Simonetta Bendinelli - Email "simonetta.bendinelli@ordineavvocatilivorno.it"; Cell. 3889950354; Tel. 0565222363. Custode Giudiziario Istituto Vendite Giudiziarie Di Pisa - Email "prenotazionilivorno@astagiudiziaria.com"; Tel. 050554790. Rif. Tribunale di Livorno - Espropriazione immobiliare (cartabia) n. 80/2023

Superficie 513,00 mq
Vani 8,00
Bagni 1
Piano 0

Tipologia di vendita Giudiziaria
Modalità di vendita Asincrona telematica
Termine presentazione offerte 09/02/2026 ore 12:00
Data e ora inizio gara 10/02/2026 ore 12:00
Codice ID astegiudiziarie.it 4314948
8,00
513,00
1
0
€ 154.828

Ti interessa questa vendita?

north_east

Clicca qui per essere indirizzato alla scheda sul sito di provenienza

Bene di astegiudiziarie.it