Riferimento annuncio 246354
        
    
    Villa VIA REPUBBLICA 51, 55051 Barga (LU)
                
                20,00
            
            
                
                432,19
            
            
                
                0
            
        
€ 162.971    
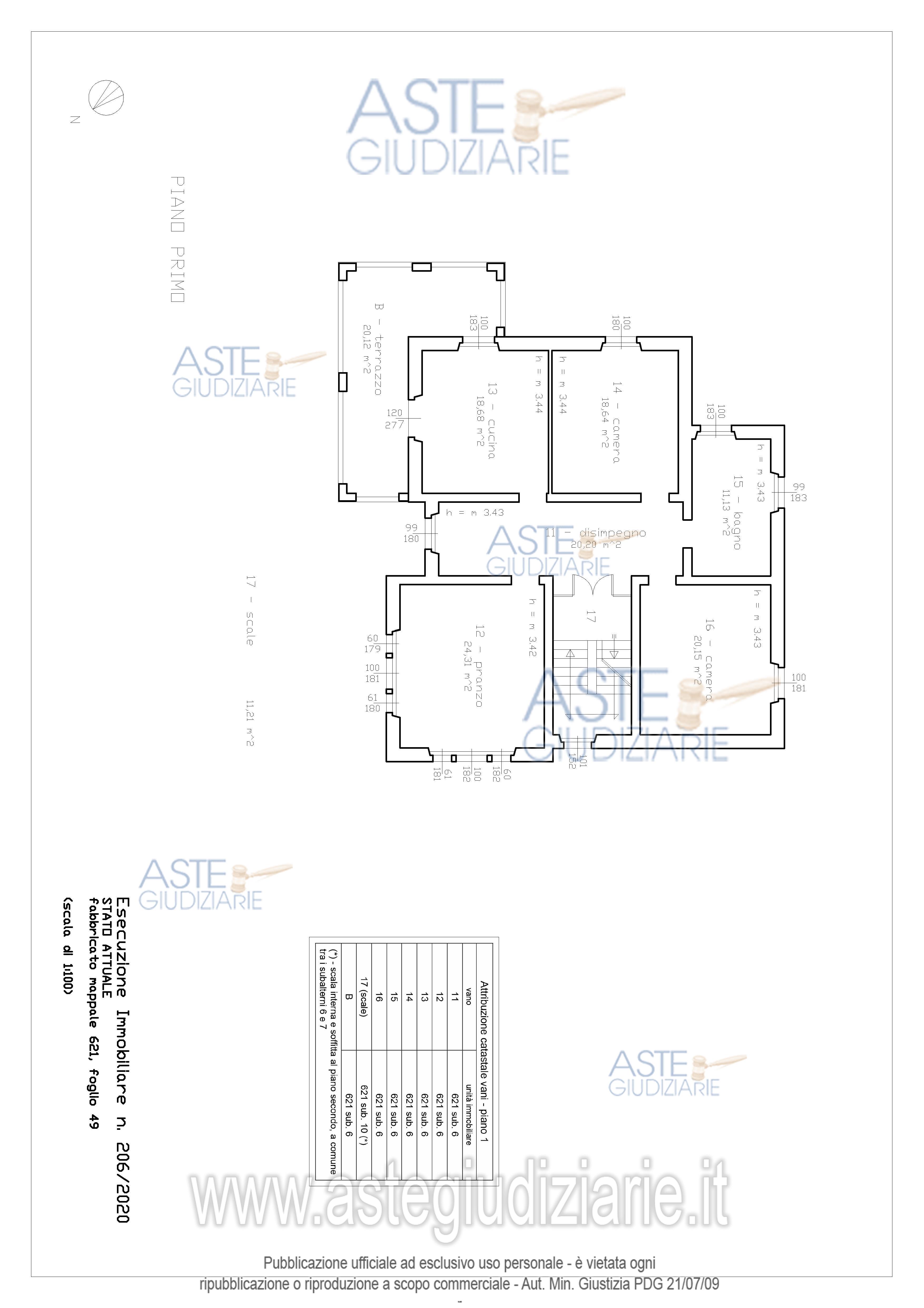
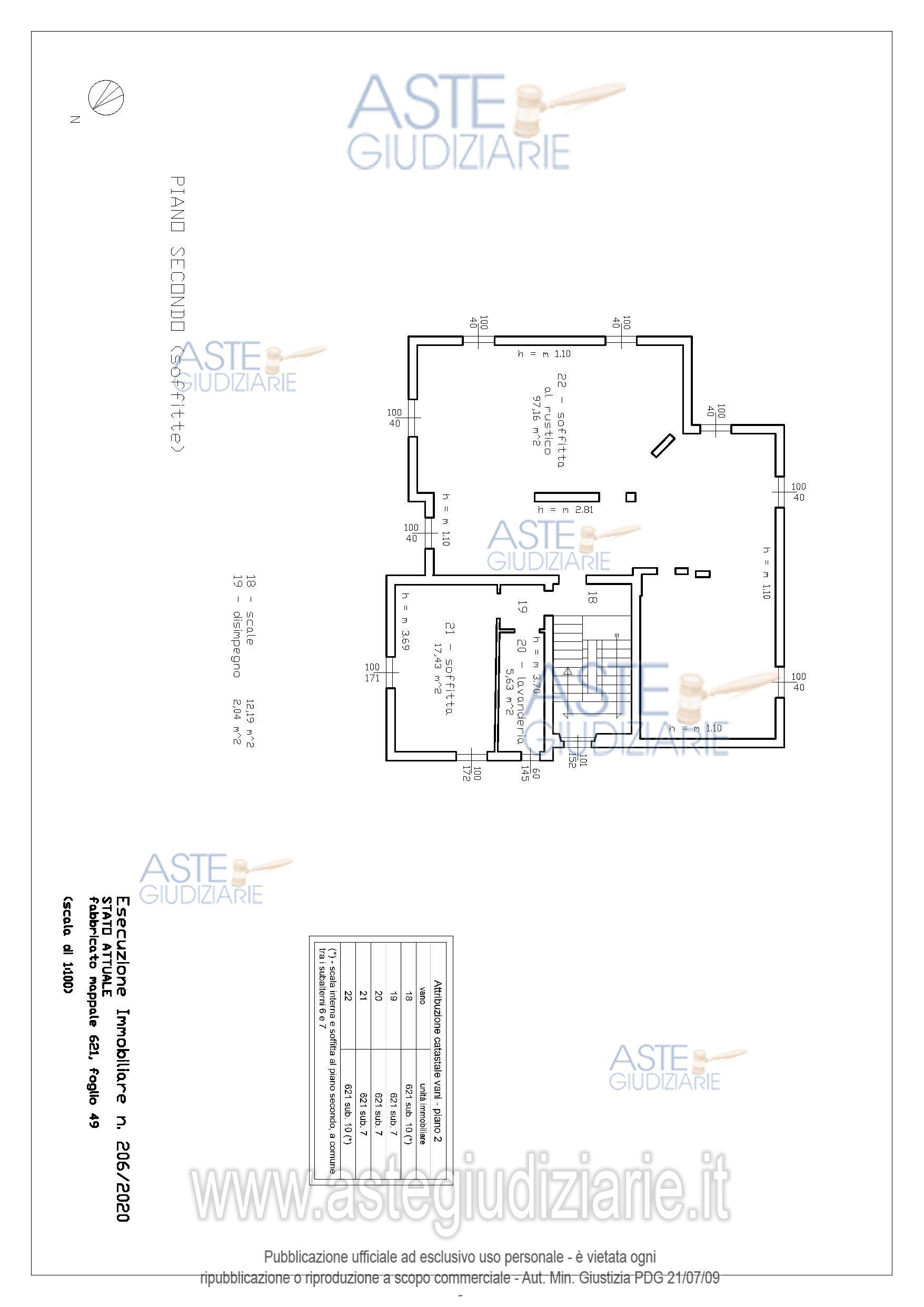
                Vendita all'asta Senza incanto, con gara telematica sincrona mista - LOTTO 1:  VILLA SINGOLA IN BARGA FRAZIONE FORNACI DELLA SUPERFICIE COMMERCIALE DI 432,19 METRI QUADRI. Prezzo base € 162.971,00 (offerta minima € 122.228,00). Data vendita 25/11/2025 ore 12:00. Giudice Antonia Libera Oliva. Professionista delegato alla vendita Avv. Roberta Menchetti. Custode Giudiziario  Ivg Lucca Sofir Srl - Email "ivg.lucca@email.it"; Tel. 0583418555.  Rif. Tribunale di Lucca - Esecuzione immobiliare post legge 80 n. 206/2020
            
   
| Superficie | 432,19 mq | 
|---|---|
| Vani | 20,00 | 
| Bagni | |
| Piano | 0 | 
| Tipologia di vendita | Giudiziaria | 
|---|---|
| Modalità di vendita | Sincrona mista | 
| Termine presentazione offerte | 01/01/1900 ore 00:00 | 
| Data e ora inizio gara | 25/11/2025 ore 12:00 | 
 
                         
                         
                         
                         
                         
                         
                         
                         
                         
                         
                         
                         
                         
                         
                         
                        