highlight_off
Riferimento annuncio 297930 info

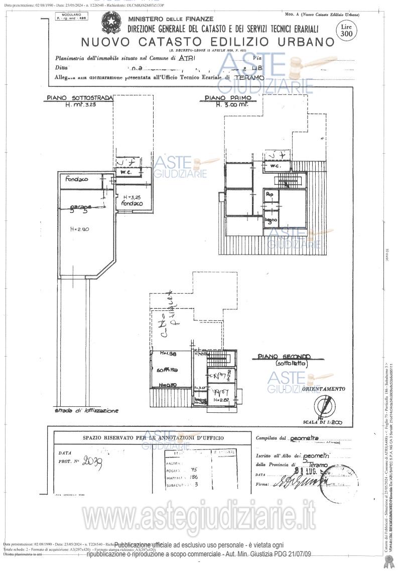
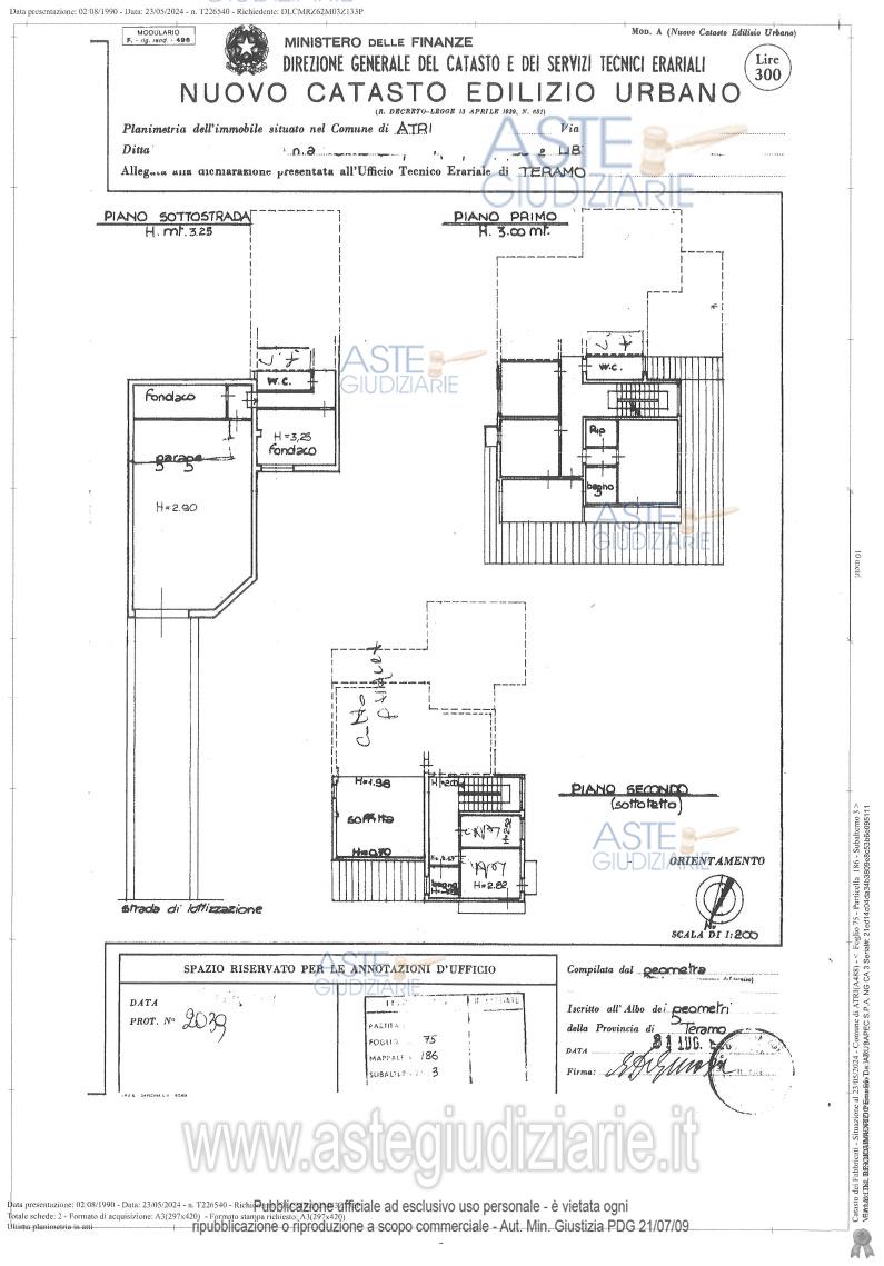
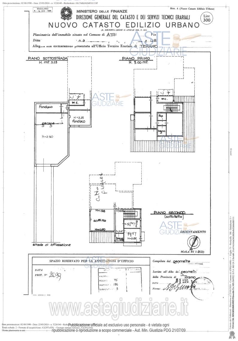
Villa Viale del Risorgimento, 64032 Atri TE, Italia, 64032 Atri (TE)

12,00
350,00
0
€ 62.625
Vendita all'asta Senza incanto, con gara telematica asincrona - LOTTO UNICO: diritti pari alla piena proprietà di una villa con superficie catastale di mq 350. Prezzo base € 62.625,00 (offerta minima € 46.969,00). Data inizio operazioni di vendita: 05/05/2026 ore 10:30. Giudice Ninetta D'ignazio. Professionista delegato alla vendita Not. Cataldo Gentile - Email "cgentile@notariato.it"; Tel. 0861762380. Custode Giudiziario Not. Cataldo Gentile - Email "cgentile@notariato.it"; Tel. 0861762380. Rif. Tribunale di Teramo - Espropriazione immobiliare (cartabia) n. 165/2023

Superficie 350,00 mq
Vani 12,00
Bagni
Piano 0

Tipologia di vendita Giudiziaria
Modalità di vendita Asincrona telematica
Termine presentazione offerte 01/01/1900 ore 00:00
Data e ora inizio gara 05/05/2026 ore 10:30
Codice ID astegiudiziarie.it 4322185
12,00
350,00
0
€ 62.625

Ti interessa questa vendita?

north_east

Clicca qui per essere indirizzato alla scheda sul sito di provenienza

Bene di astegiudiziarie.it