highlight_off
Riferimento annuncio 56408 info

Ufficio Via Talete, 09047 Selargius CA, Italia, 09047 Selargius (CA)

197,00
0
€ 115.668
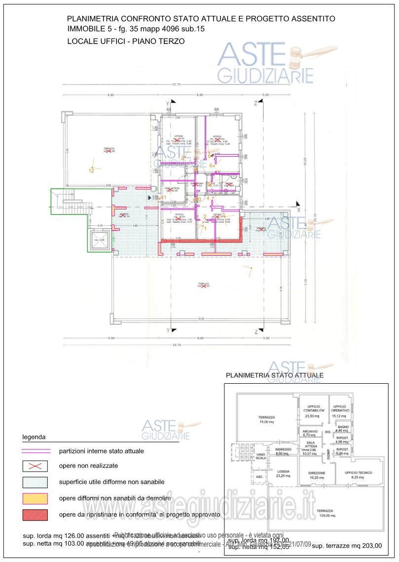
Vendita all'asta Senza incanto, con gara telematica asincrona - LOTTO 6: Intera Proprietà - Unità immobiliare sita in Comune di Selargius (CA) Via Talete, censita al N.C.E.U. al fg 35 mappale 4096 sub 15, cat. A/10, classe 4, vani 7,5, R.C. Euro 1.565,74; è ubicato al piano terzo del maggior fabbricato. L’immobile nel progetto ha destinazione quale ufficio. Si sviluppa su una superficie lorda di mq 197,00 di cui mq 71,00 abusivi non sanabili (netta mq 152,05, di cui 49,00 abusivi non sanabili), due terrazze della superficie complessiva di 188,30 mq. Prezzo base € 115.668,00 (offerta minima € 86.751,00). Data inizio operazioni di vendita: 13/01/2026 ore 16:00. Giudice Dott. Silvia Cocco. Professionista delegato alla vendita Avv. Marco Di Fortunato - Cell. 3356185295. Custode Giudiziario Ivg Di Cagliari - Email "ivg.visiteimmobili@tiscali.it"; Tel. 0702299036. Rif. Tribunale di Cagliari - Esecuzione immobiliare post legge 80 n. 266/2015

Superficie 197,00 mq
Vani
Bagni
Piano 0

Tipologia di vendita Giudiziaria
Modalità di vendita Asincrona telematica
Termine presentazione offerte 12/01/2026 ore 16:00
Data e ora inizio gara 13/01/2026 ore 16:00
Codice ID astegiudiziarie.it 4177045
197,00
0
€ 115.668

Ti interessa questa vendita?

north_east

Clicca qui per essere indirizzato alla scheda sul sito di provenienza

Bene di astegiudiziarie.it