highlight_off
Riferimento annuncio 293117 info

Ufficio Via XX Settembre, 25, 58054 Scansano (GR)

5,00
121,00
0
€ 22.542
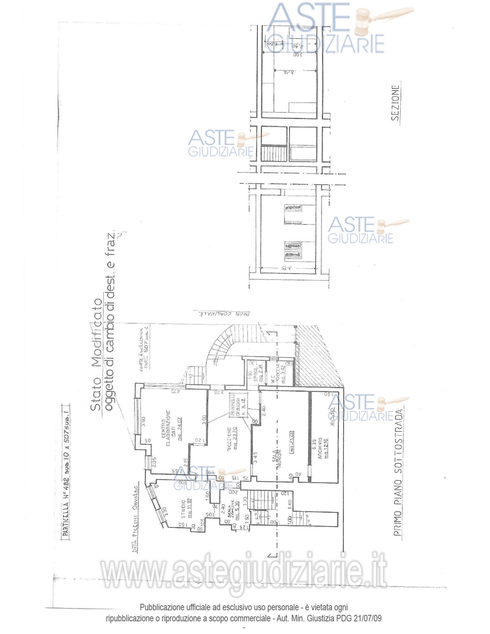
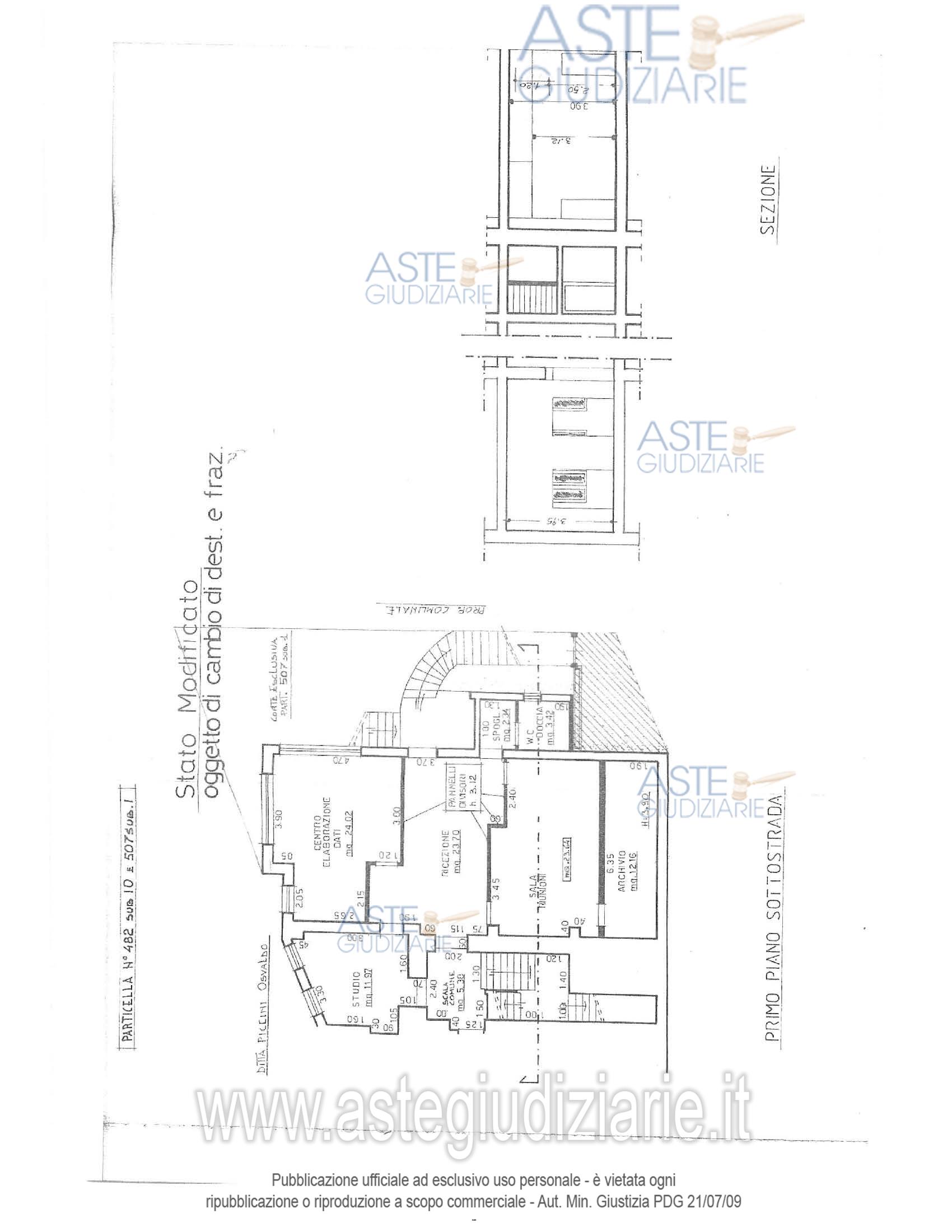
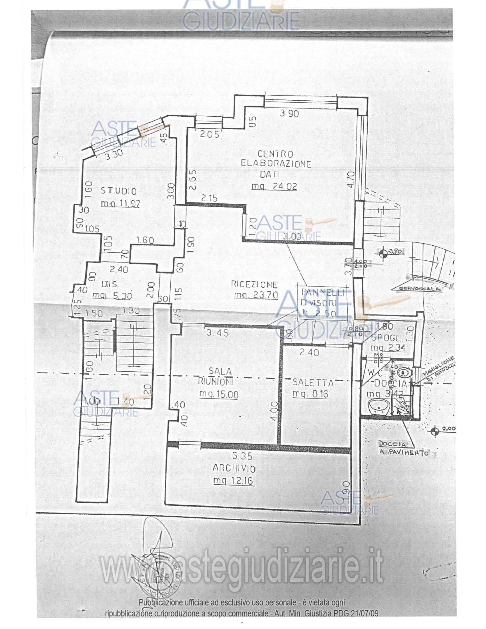
Vendita all'asta Senza incanto, con gara telematica asincrona - LOTTO UNICO: Quota pari a 1/1 del diritto di proprietà di unità immobiliare usoufficio/studio professionale corredata di corte esclusiva sita inScansano (GR), via XX Settembre 25, identificata al Catasto Fabbricati del Comune di Scansano al Foglio n.191, particella n.482, sub. 10,Categoria A/10, classe U, consistenza 5 vani, rendita di € 1.007,09. Prezzo base € 22.542,00 (offerta minima € 16.906,00). Data inizio operazioni di vendita: 17/03/2026 ore 10:30. Professionista delegato alla vendita Avv. Monica Dominici - Email "avv.monicadominici@gmail.com"; Cell. 3393900991. Custode Giudiziario Istituto Vendite Giudiziarie - Email "ivggrosseto@astagiudiziaria.com"; Cell. 0393426598791. Rif. Tribunale di Grosseto - Espropriazione immobiliare (cartabia) n. 85/2023

Superficie 121,00 mq
Vani 5,00
Bagni
Piano 0

Tipologia di vendita Giudiziaria
Modalità di vendita Asincrona telematica
Termine presentazione offerte 12/03/2026 ore 23:59
Data e ora inizio gara 17/03/2026 ore 10:30
Codice ID astegiudiziarie.it 4318512
5,00
121,00
0
€ 22.542

Ti interessa questa vendita?

north_east

Clicca qui per essere indirizzato alla scheda sul sito di provenienza

Bene di astegiudiziarie.it