highlight_off
Riferimento annuncio 105604 info

Ufficio Contrada San Felice, 70028 Sannicandro di Bari (BA)

0
€ 42.580
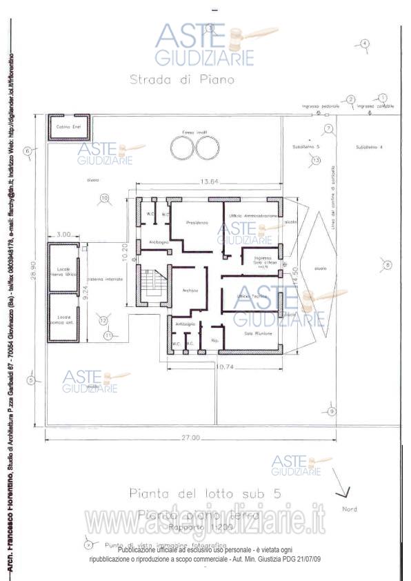
Vendita all'asta Senza incanto, con gara telematica asincrona - LOTTO UNICO: Unità immobiliare composta da piano terra e primo piano, entrambi serviti da un corpo di scala oltre all’area circostante pertinenziale. Prezzo base € 42.580,00 (offerta minima € 31.935,00). Data inizio operazioni di vendita: 04/03/2026 ore 16:30. Giudice Dott. Marina Cavallo. Professionista delegato alla vendita Avv. Giuseppe Ficele - Email "avv.ficelegiuseppe@gmail.com". Custode Giudiziario Avv. Giuseppe Ficele - Email "avv.ficelegiuseppe@gmail.com". Rif. Tribunale di Bari - Esecuzione immobiliare post legge 80 n. 762/2008

Superficie mq
Vani
Bagni
Piano 0

Tipologia di vendita Giudiziaria
Modalità di vendita Asincrona telematica
Termine presentazione offerte 01/01/1900 ore 00:00
Data e ora inizio gara 04/03/2026 ore 16:30
Codice ID astegiudiziarie.it 4223723
0
€ 42.580

Ti interessa questa vendita?

north_east

Clicca qui per essere indirizzato alla scheda sul sito di provenienza

Bene di astegiudiziarie.it