highlight_off
Riferimento annuncio 303452 info

Ufficio via Veronese 95/c - 95/d - 95/e - 97, 07026 Olbia (SS)

205,15
0
€ 320.000
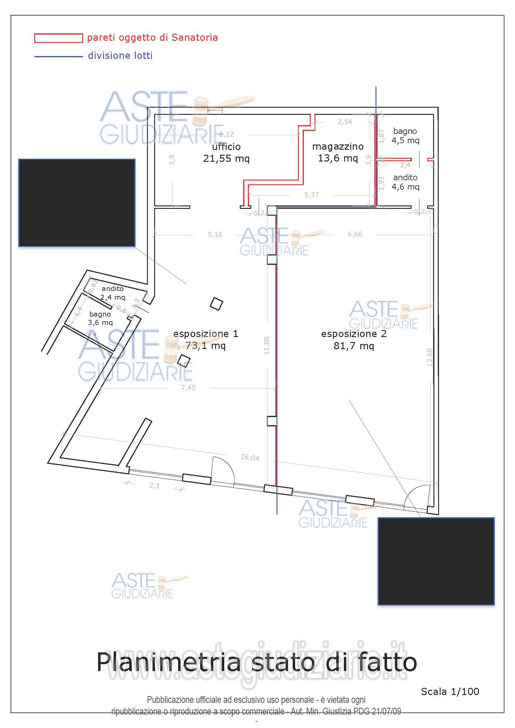
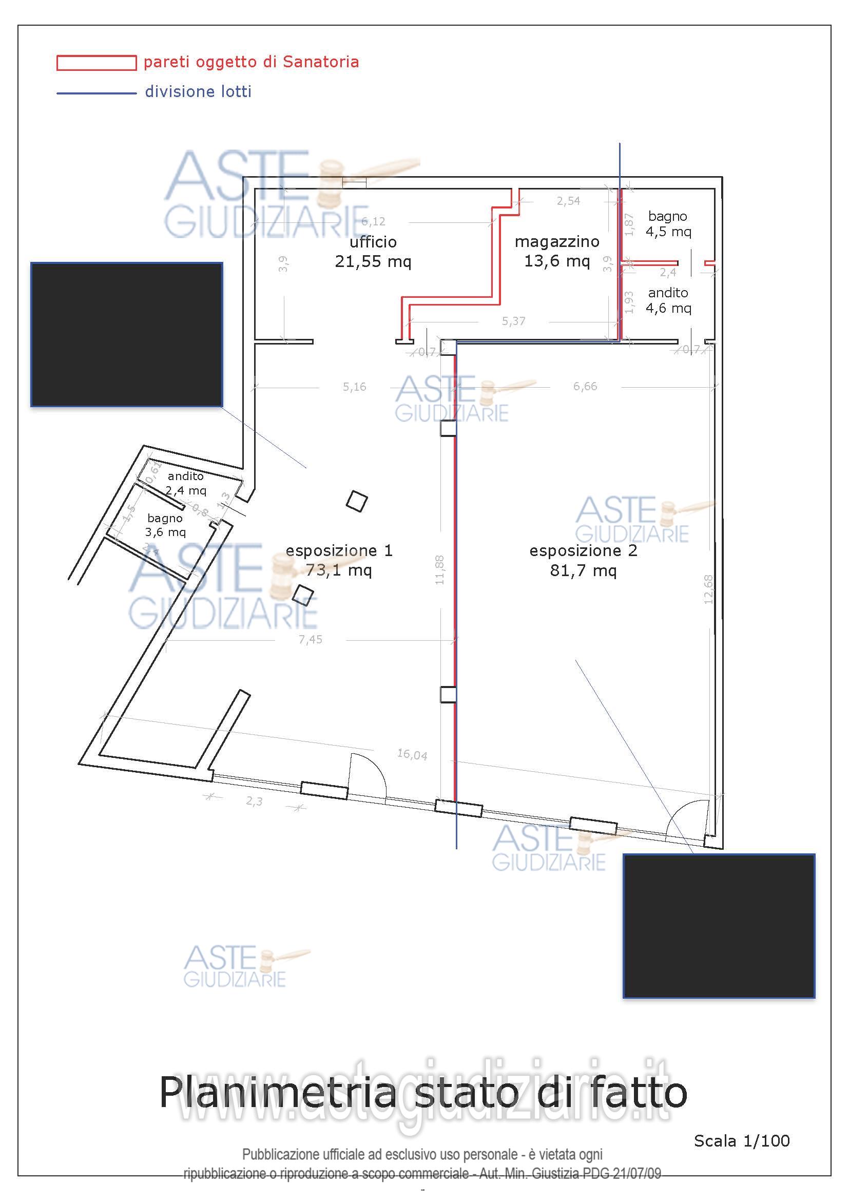
Vendita all'asta Senza incanto, con gara telematica asincrona - LOTTO 1: In Olbia, via Veronese 95/c - 95/d - 95/e - 97, intero del diritto di proprietà dell’ufficio al piano terra, composto da 6 ambienti, 2 adibiti ad esposizione, 1 ad uso ufficio, 2 ad uso bagno ed 1 a uso magazzino, il tutto per una superficie calpestabile di mq 205,15, distinto al N.C.E.U. fg. 30, part 8066, sub 36 cat. A/10. Il tutto come meglio descritto nell’elaborato peritale depositato in atti e visionabile sui siti indicati . Prezzo base € 320.000,00 (offerta minima € 240.000,00). Data inizio operazioni di vendita: 06/11/2025 ore 17:00. Giudice Antonia Palombella. Professionista delegato alla vendita Avv. Giovanna Maria Dessì - Email "giovannadessi29@gmail.com"; Tel. 0794138827. Custode Giudiziario Ivg Tempio Pausania - Email "visite.ivgtempio@gmail.com"; Tel. 079630505. Rif. Tribunale di Tempio Pausania - Esecuzione immobiliare post legge 80 n. 179/2016

Superficie 205,15 mq
Vani
Bagni
Piano 0

Tipologia di vendita Giudiziaria
Modalità di vendita Asincrona telematica
Termine presentazione offerte 05/11/2025 ore 23:59
Data e ora inizio gara 06/11/2025 ore 17:00
Codice ID astegiudiziarie.it 4326572
205,15
0
€ 320.000

Ti interessa questa vendita?

north_east

Clicca qui per essere indirizzato alla scheda sul sito di provenienza

Bene di astegiudiziarie.it