highlight_off
Riferimento annuncio 303452 info

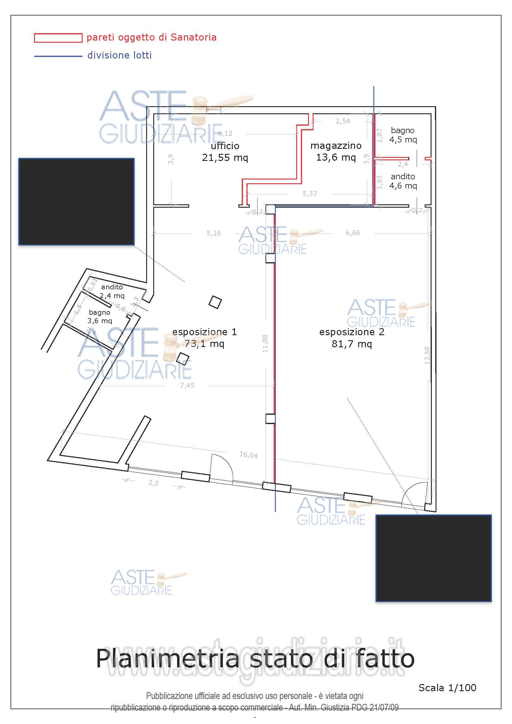
Ufficio via Veronese 95/c - 95/d - 95/e - 97, 07026 Olbia (OT)

205,15
0
€ 204.800
Vendita all'asta Senza incanto, con gara telematica asincrona - LOTTO 1: In Olbia, via Veronese 95/c - 95/d - 95/e - 97, intero del diritto di proprietà dell’ufficio al piano terra, composto da 6 ambienti, 2 adibiti ad esposizione, 1 ad uso ufficio, 2 ad uso bagno ed 1 a uso magazzino, il tutto per una superficie calpestabile di mq 205,15, distinto al N.C.E.U. fg. 30, part 8066, sub 36 cat. A/10. Il tutto come meglio descritto nell’elaborato peritale depositato in atti e visionabile sui siti indicati . Prezzo base € 204.800,00 (offerta minima € 153.600,00). Data inizio operazioni di vendita: 26/05/2026 ore 17:00. Giudice: Antonia Palombella. Professionista delegato alla vendita: Avv. Giovanna Maria Dessì - Email "giovannadessi29@gmail.com"; Tel. 079/4138827. Custode Giudiziario: Ivg Tempio Pausania - Email "visite.ivgtempio@gmail.com"; Tel. 079/630505. Rif. Tribunale di Tempio Pausania - Esecuzione immobiliare post legge 80 n. 179/2016

Superficie 205,15 mq
Vani
Bagni
Piano 0

Tipologia di vendita Giudiziaria
Modalità di vendita Asincrona telematica
Termine presentazione offerte 25/05/2026 ore 23:59
Data e ora inizio gara 26/05/2026 ore 17:00
Codice ID astegiudiziarie.it 4326572
205,15
0
€ 204.800

Ti interessa questa vendita?

north_east

Clicca qui per essere indirizzato alla scheda sul sito di provenienza

Bene di astegiudiziarie.it