highlight_off
Riferimento annuncio 315812 info

Ufficio Str. degli Schiocchi, 42, 41100 Modena (MO)

174,00
3
€ 238.000
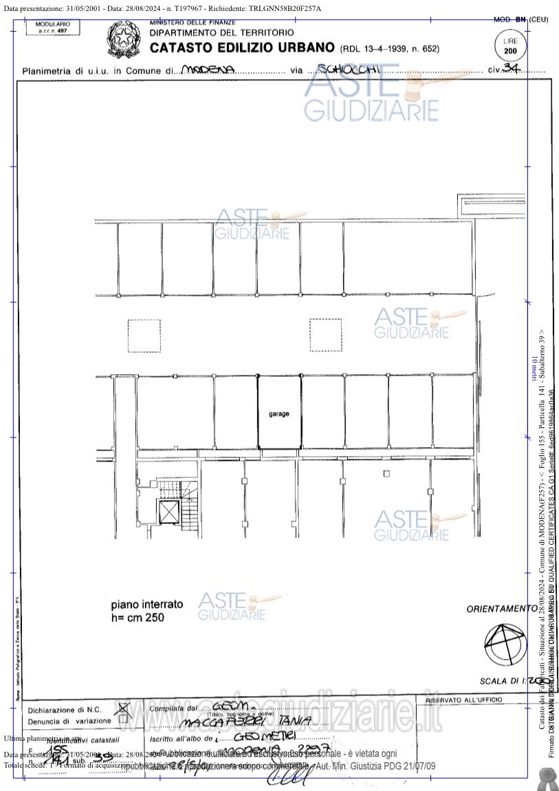
Vendita all'asta Senza incanto, con gara telematica asincrona - LOTTO UNICO: Piena proprietà di porzione di fabbricato ad Uso Ufficio con servizio igienico posto al piano terzo e due autorimesse pertinenziali al piano interrato, sito nel Comune di Modena (MO), Via degli Schiocchi n. 42, occupato da soggetto esecutato da liberarsi al decreto di trasferimento. Prezzo base € 238.000,00 (offerta minima € 178.500,00). Data inizio operazioni di vendita: 18/11/2025 ore 10:30. Professionista delegato alla vendita Avv. Roberto Bonaretti - Email "avv.r.bonaretti@gmail.com"; Tel. 059690086. Custode Giudiziario Alex Manelli - Email "visiteimmobili@ivgmodena.it"; Tel. 059847301. Rif. Tribunale di Modena - Espropriazione immobiliare (cartabia) n. 282/2023

Superficie 174,00 mq
Vani
Bagni
Piano 3

Tipologia di vendita Giudiziaria
Modalità di vendita Asincrona telematica
Termine presentazione offerte 01/01/1900 ore 00:00
Data e ora inizio gara 18/11/2025 ore 10:30
Codice ID astegiudiziarie.it 4336747
174,00
3
€ 238.000

Ti interessa questa vendita?

north_east

Clicca qui per essere indirizzato alla scheda sul sito di provenienza

Bene di astegiudiziarie.it