highlight_off
Riferimento annuncio 301234 info

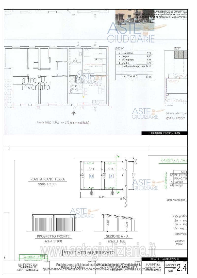
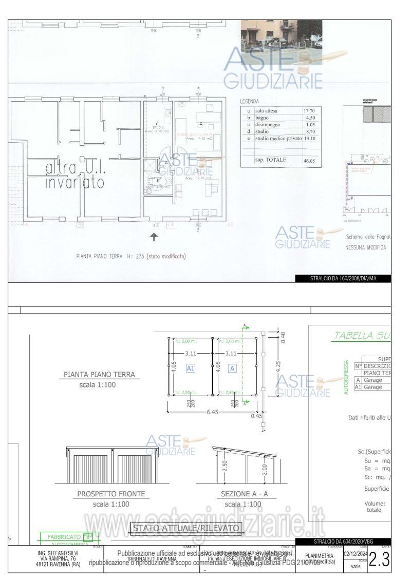
Ufficio Via Castelletto, 22, 48024 Massa Lombarda RA, Italia, 48024 Massa Lombarda (RA)

68,50
0
€ 41.250
Vendita all'asta Senza incanto, con gara telematica asincrona - LOTTO 2: LOTTO 2 Il bene risulta essere catastalmente un ufficio/studio professionale a piano terra e n. 1autorimessa in un fabbricato a destinazione plurima (altro ufficio/studio professionale eabitazione), in Comune di Massa Lombarda, località Massa Lombarda, in via Castelletto, n. 22. Prezzo base € 41.250,00 (offerta minima € 30.937,50). Data inizio operazioni di vendita: 21/10/2025 ore 09:30. Giudice Massimo Vicini. Professionista delegato alla vendita Dott. Emilio Babini - Email "ebabin@studiobgpartners.it"; Tel. 0544583232. Custode Giudiziario Dott. Emilio Babini - Email "ebabin@studiobgpartners.it"; Tel. 0544583232. Rif. Tribunale di Ravenna - Espropriazione immobiliare (cartabia) n. 139/2023

Superficie 68,50 mq
Vani
Bagni
Piano 0

Tipologia di vendita Giudiziaria
Modalità di vendita Asincrona telematica
Termine presentazione offerte 20/10/2025 ore 23:59
Data e ora inizio gara 21/10/2025 ore 09:30
Codice ID astegiudiziarie.it 4324818
68,50
0
€ 41.250

Ti interessa questa vendita?

north_east

Clicca qui per essere indirizzato alla scheda sul sito di provenienza

Bene di astegiudiziarie.it