highlight_off
Riferimento annuncio 265500 info

Ufficio Via XX Settembre n.7, 09016 Iglesias (SU)

45,00
0
€ 10.800
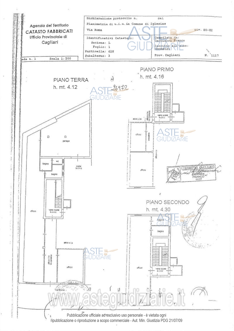
Vendita all'asta Senza incanto, con gara telematica asincrona - LOTTO 8: Quota pari all’intero del diritto di proprietà sul locale ad uso ufficio al piano seminterrato del maggior fabbricato con accesso dalla Via XX Settembre n.7, composto da un unico vano e bagno. Prezzo base € 10.800,00 (offerta minima € 8.100,00). Data inizio operazioni di vendita: 16/12/2025 ore 11:00. Giudice Silvia Cocco. Professionista delegato alla vendita Not. Stefano Casti - Email "ufficiouniconotai@pec.it"; Tel. 07060222574. Custode Giudiziario Ivg Cagliari - Email "ivg.visiteimmobili@tiscali.it"; Tel. 0702299036. Rif. Tribunale di Cagliari - Esecuzione immobiliare post legge 80 n. 224/2017

Superficie 45,00 mq
Vani
Bagni
Piano 0

Tipologia di vendita Giudiziaria
Modalità di vendita Asincrona telematica
Termine presentazione offerte 15/12/2025 ore 13:00
Data e ora inizio gara 16/12/2025 ore 11:00
Codice ID astegiudiziarie.it 4299092
45,00
0
€ 10.800

Ti interessa questa vendita?

north_east

Clicca qui per essere indirizzato alla scheda sul sito di provenienza

Bene di astegiudiziarie.it