highlight_off
Riferimento annuncio 311036 info

Ufficio via Casacelle, 80014 Giugliano in Campania (NA)

38,00
888,00
0
€ 618.750
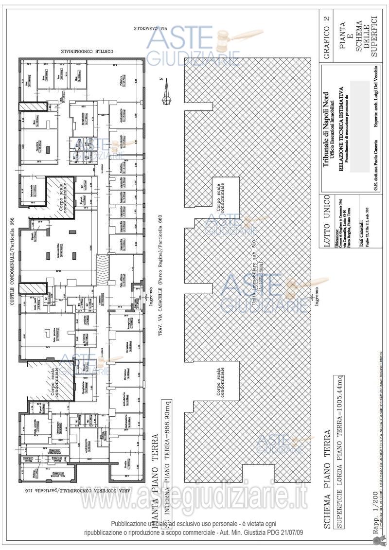
Vendita all'asta Senza incanto, con gara telematica asincrona - LOTTO UNICO: Piena ed intera proprietà di immobile facente parte del complesso denominato Parco Regina ubicato in Giugliano in Campania (NA) alla via Casacelle.L’immobile in vendita è posto al piano terra ed è adibito a centro medico di riabilitazione. Prezzo base € 618.750,00 (offerta minima € 464.063,00). Data inizio operazioni di vendita: 17/06/2026 ore 12:00. Giudice: Dott. Antonella Paone. Professionista delegato alla vendita: Avv. Marco Casanova - Email "marco.casanova1@virgilio.it"; Cell. 328/6773576. Custode Giudiziario: Avv. Marco Casanova - Email "marco.casanova1@virgilio.it"; Cell. 328/6773576. Rif. Tribunale di Napoli Nord - Espropriazione immobiliare (cartabia) n. 257/2024

Superficie 888,00 mq
Vani 38,00
Bagni
Piano 0

Tipologia di vendita Giudiziaria
Modalità di vendita Asincrona telematica
Termine presentazione offerte 16/06/2026 ore 23:59
Data e ora inizio gara 17/06/2026 ore 12:00
Codice ID astegiudiziarie.it 4331535
38,00
888,00
0
€ 618.750

Ti interessa questa vendita?

north_east

Clicca qui per essere indirizzato alla scheda sul sito di provenienza

Bene di astegiudiziarie.it