highlight_off
Riferimento annuncio 81319 info

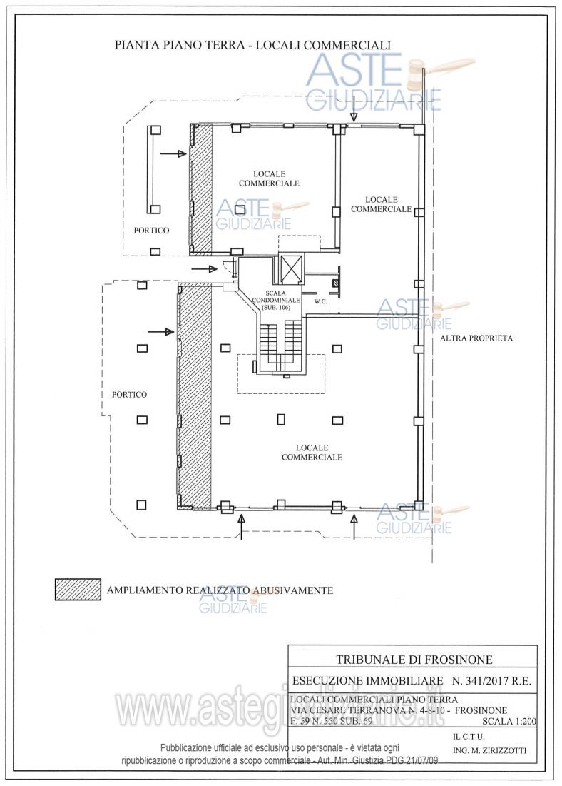
Ufficio Via C. Terranova, 4-6-8-10, 03100 Frosinone (FR)

640,00
0
€ 294.244
Vendita all'asta Senza incanto, con gara telematica asincrona - LOTTO 1: Locale con destinazione commerciale/ufficio. N. 6 cantine. N. 2 posti auto. N. 4 posti moto. Prezzo base € 294.243,75 (offerta minima € 220.682,81). Data inizio operazioni di vendita: 14/01/2026 ore 15:00. Giudice Simona Di Nicola. Professionista delegato alla vendita Dott. Emilio Zaccari. Custode Giudiziario Emilio Zaccari. Rif. Tribunale di Frosinone - Esecuzione immobiliare post legge 80 n. 341/2017

Superficie 640,00 mq
Vani
Bagni
Piano 0

Tipologia di vendita Giudiziaria
Modalità di vendita Asincrona telematica
Termine presentazione offerte 13/01/2026 ore 12:00
Data e ora inizio gara 14/01/2026 ore 15:00
Codice ID astegiudiziarie.it 4201323
640,00
0
€ 294.244

Ti interessa questa vendita?

north_east

Clicca qui per essere indirizzato alla scheda sul sito di provenienza

Bene di astegiudiziarie.it