highlight_off
Riferimento annuncio 306543 info

Ufficio Via Spagna, 57014 Collesalvetti (LI)

149,00
0
€ 92.705
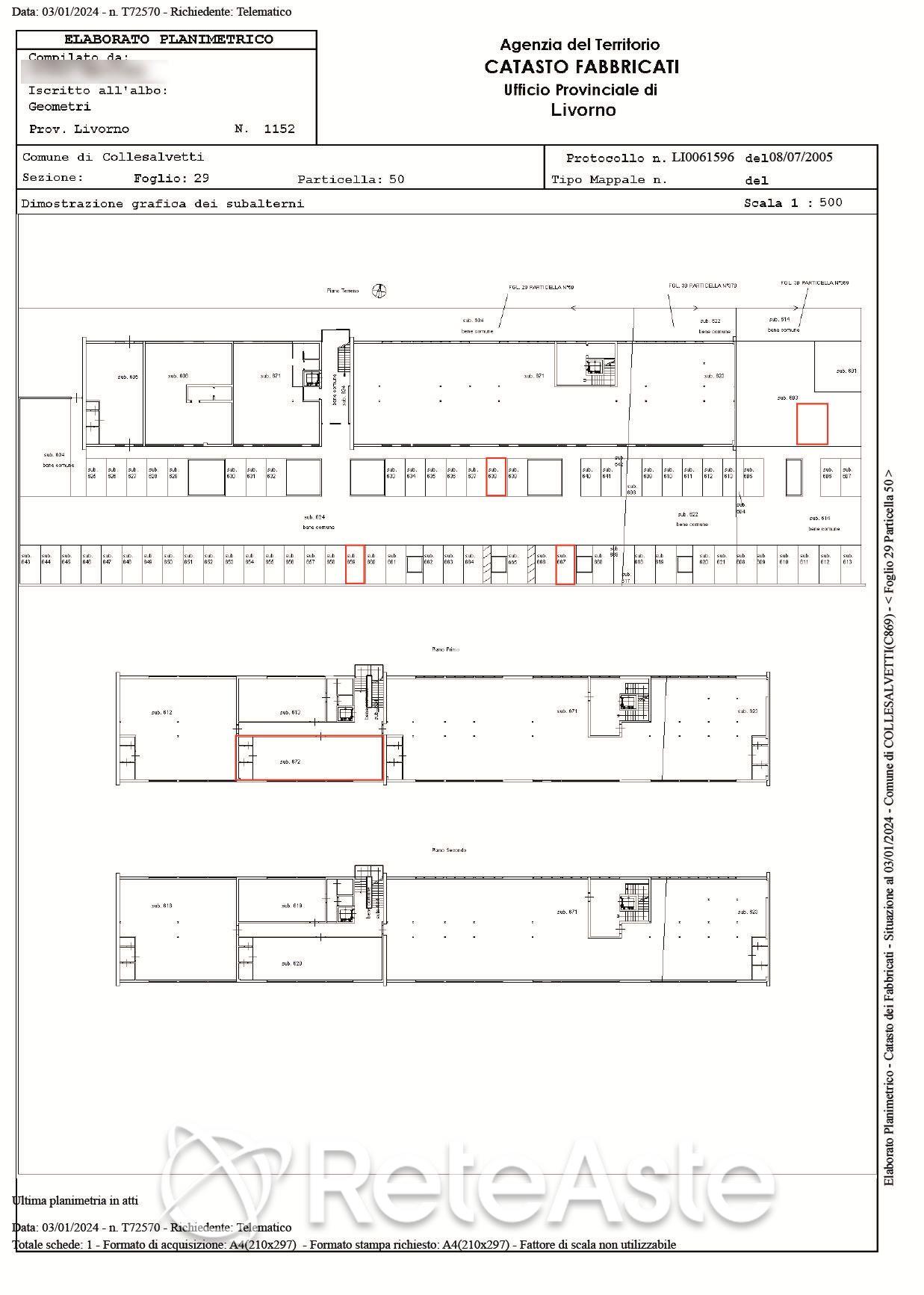
Vendita all'asta Invito a manifestare interesse - LOTTO 420: Ufficio composto da due vani e un bagno appositamente disimpegnato oltre 3 posti auto di 11 metri quadri ciascuno e locale deposito di metri quadri 16, per totali metri quadri 149. Prezzo base € 92.705,00. Data vendita 27/05/2026 ore 14:00. Rif. Tribunale di Livorno - Ricorso per omologazione piano di ristrutturazione n. 1/2024

Superficie 149,00 mq
Vani
Bagni
Piano 0

Tipologia di vendita Giudiziaria
Modalità di vendita Presso il venditore
Termine presentazione domande 01/01/1900 ore 00:00
Data e ora inizio gara 27/05/2026 ore 14:00
Codice ID astegiudiziarie.it 4307549
149,00
0
€ 92.705

Ti interessa questa vendita?

north_east

Clicca qui per essere indirizzato alla scheda sul sito di provenienza

Bene di astegiudiziarie.it