highlight_off
Riferimento annuncio 294025 info

Ufficio Via Spagna, 57014 Collesalvetti (LI)

1943,00
0
€ 1.471.500
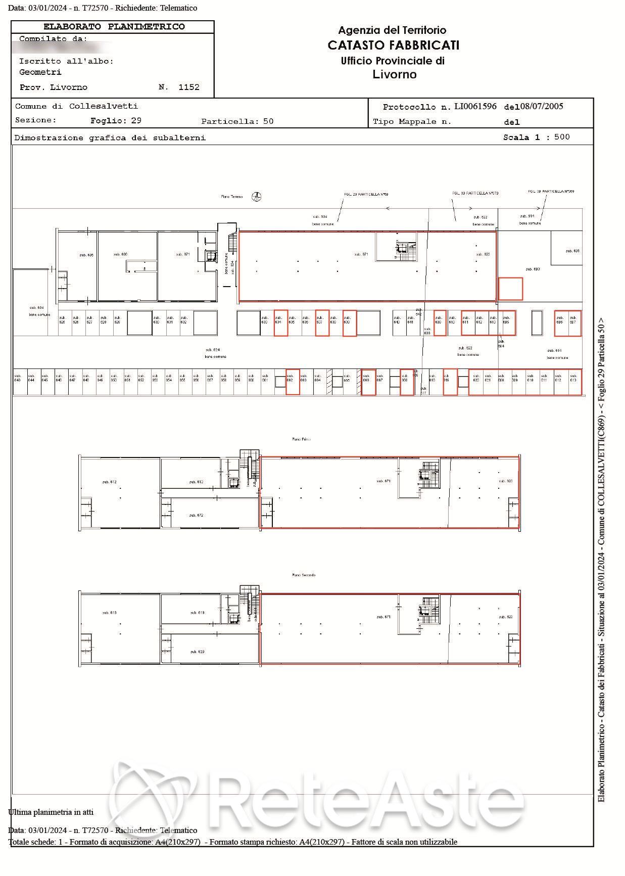
Vendita all'asta Invito a manifestare interesse - LOTTO 421: Immobile composto da 3 piani ad uso ufficio, ciascun piano risulta disimpegnato da ingresso composto da unico vano scale e ascensore. Al piano terreno sono presenti 3 locali bagni, 2 locali open space, 1 zona reception, 1 locale server, 1 sala riunioni, 4 uffici e 1 zona relax. Al piano primo sono presenti 2 open space, 1 ufficio, 1 aula training, 5 bagni e 3 anti-bagni. Al piano secondo sono presenti 2 open space, 1 ufficio, 1 archivio, 5 bagni e 3 antibagni. Sono compresi 22 posti auto di 11 metri quadri ciascuno e 1 locale deposito di metri quadri 16. Metri quadri totali 1943 . Prezzo base € 1.471.500,00. Data vendita 25/11/2025 ore 14:00. Rif. Tribunale di Livorno - Ricorso per omologazione piano di ristrutturazione n. 1/2024

Superficie 1943,00 mq
Vani
Bagni
Piano 0

Tipologia di vendita Giudiziaria
Modalità di vendita Presso il venditore
Termine presentazione domande 01/01/1900 ore 00:00
Data e ora inizio gara 25/11/2025 ore 14:00
Codice ID astegiudiziarie.it 4307550
1943,00
0
€ 1.471.500

Ti interessa questa vendita?

north_east

Clicca qui per essere indirizzato alla scheda sul sito di provenienza

Bene di astegiudiziarie.it