highlight_off
Riferimento annuncio 294023 info

Ufficio Via Spagna, 57014 Collesalvetti (LI)

149,00
0
€ 103.005
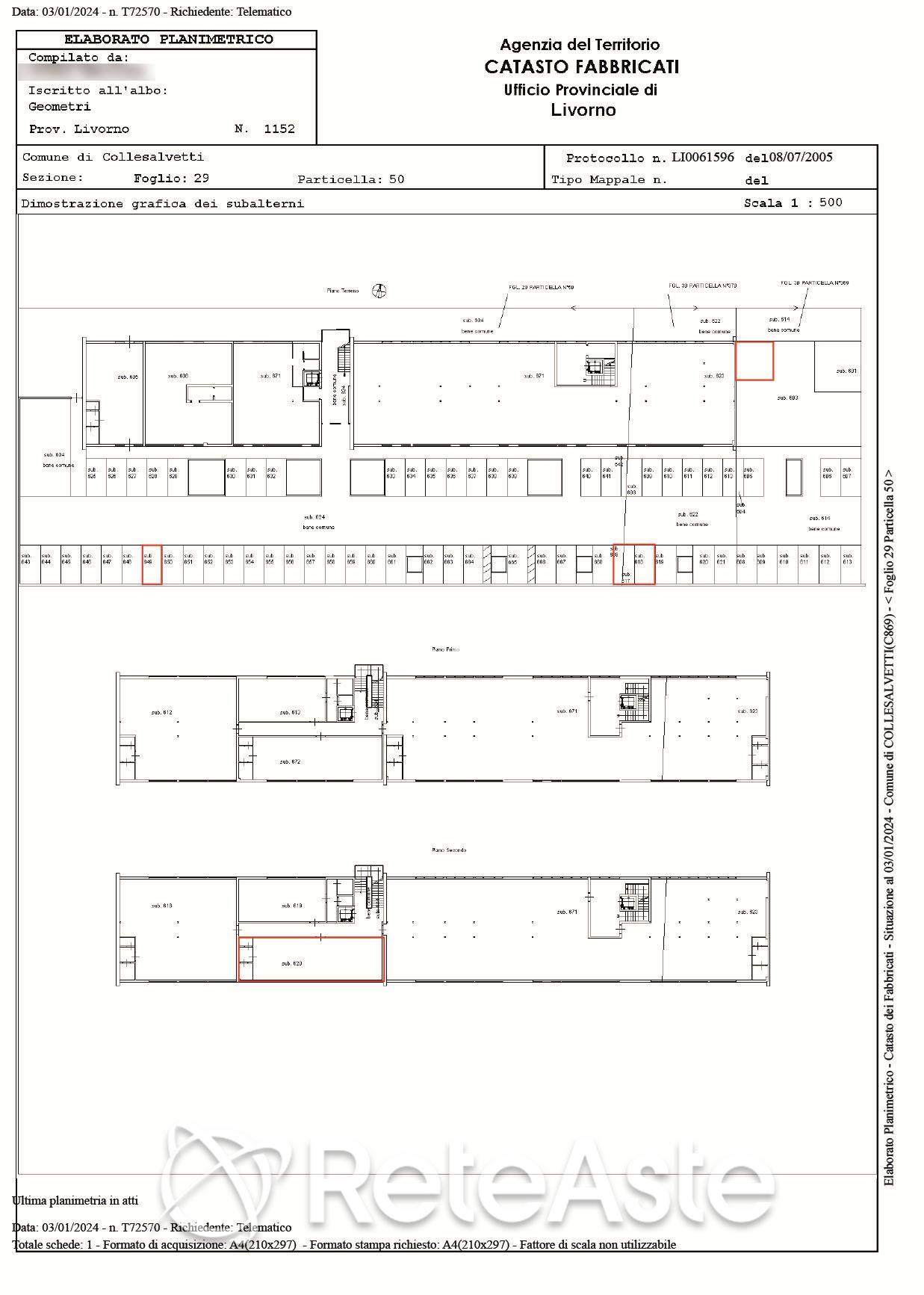
Vendita all'asta Invito a manifestare interesse - LOTTO 419: Ufficio al piano primo composto da un unico vano e bagno appositamente disimpegnato e locale deposito per metri quadri totali 149. Prezzo base € 103.005,00. Data vendita 25/11/2025 ore 14:00. Rif. Tribunale di Livorno - Ricorso per omologazione piano di ristrutturazione n. 1/2024

Superficie 149,00 mq
Vani
Bagni
Piano 0

Tipologia di vendita Giudiziaria
Modalità di vendita Presso il venditore
Termine presentazione domande 01/01/1900 ore 00:00
Data e ora inizio gara 25/11/2025 ore 14:00
Codice ID astegiudiziarie.it 4307548
149,00
0
€ 103.005

Ti interessa questa vendita?

north_east

Clicca qui per essere indirizzato alla scheda sul sito di provenienza

Bene di astegiudiziarie.it