highlight_off
Riferimento annuncio 294021 info

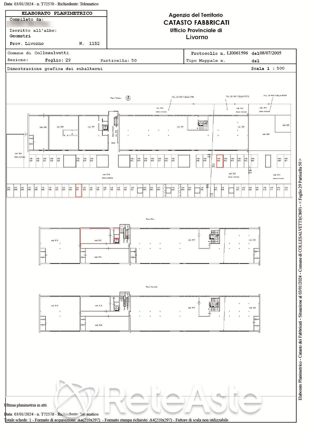
Ufficio Via Spagna, 57014 Collesalvetti (LI)

97,00
0
€ 69.660
Vendita all'asta Invito a manifestare interesse - LOTTO 417: Ufficio al piano primo con ripostiglio e bagno appositamente disimpegnato, oltre a 2 posti auto di 11 metri quadri ciascuno, per metri quadri 97. Prezzo base € 69.660,00. Data vendita 25/11/2025 ore 14:00. Rif. Tribunale di Livorno - Ricorso per omologazione piano di ristrutturazione n. 1/2024

Superficie 97,00 mq
Vani
Bagni
Piano 0

Tipologia di vendita Giudiziaria
Modalità di vendita Presso il venditore
Termine presentazione domande 01/01/1900 ore 00:00
Data e ora inizio gara 25/11/2025 ore 14:00
Codice ID astegiudiziarie.it 4307546
97,00
0
€ 69.660

Ti interessa questa vendita?

north_east

Clicca qui per essere indirizzato alla scheda sul sito di provenienza

Bene di astegiudiziarie.it