highlight_off
Riferimento annuncio 294020 info

Ufficio Via Spagna, 57014 Collesalvetti (LI)

299,00
0
€ 197.640
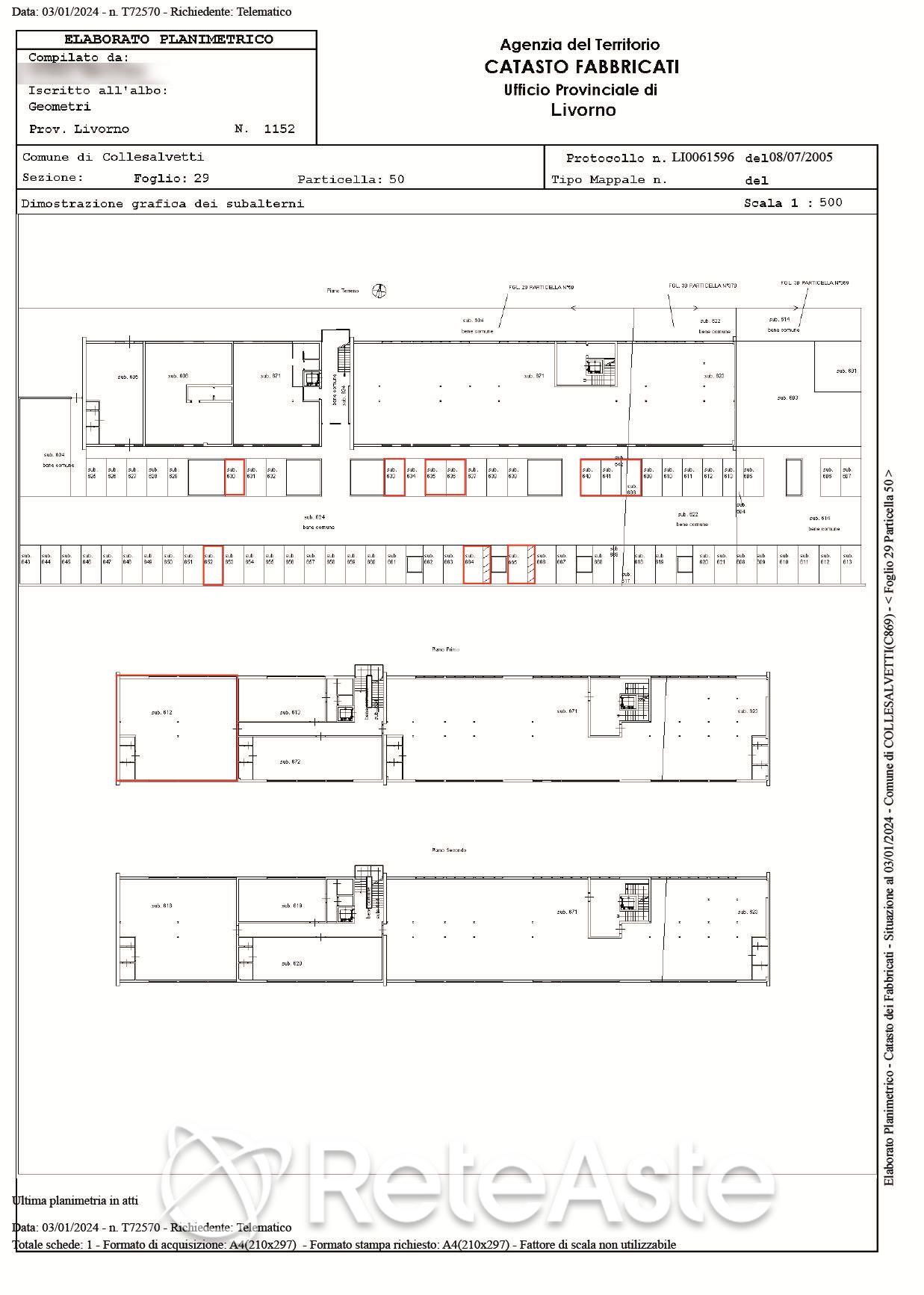
Vendita all'asta Invito a manifestare interesse - LOTTO 416: Ufficio al piano primo, composto da vano ingresso/disimpegno per accedere a 5 vani uso ufficio, 2 ripostigli e bagno appositamente disimpegnato oltre 10 posti auto di 11 metri quadri ciascuno, per metri quadri totali 299. Prezzo base € 197.640,00. Data vendita 25/11/2025 ore 14:00. Rif. Tribunale di Livorno - Ricorso per omologazione piano di ristrutturazione n. 1/2024

Superficie 299,00 mq
Vani
Bagni
Piano 0

Tipologia di vendita Giudiziaria
Modalità di vendita Presso il venditore
Termine presentazione domande 01/01/1900 ore 00:00
Data e ora inizio gara 25/11/2025 ore 14:00
Codice ID astegiudiziarie.it 4307545
299,00
0
€ 197.640

Ti interessa questa vendita?

north_east

Clicca qui per essere indirizzato alla scheda sul sito di provenienza

Bene di astegiudiziarie.it