highlight_off
Riferimento annuncio 294019 info

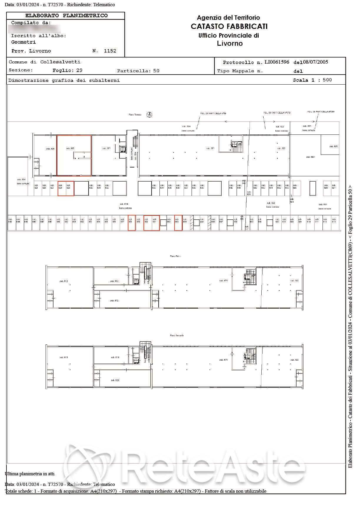
Ufficio Via Spagna, 57014 Collesalvetti (LI)

206,00
0
€ 140.130
Vendita all'asta Invito a manifestare interesse - LOTTO 415: Ufficio al piano terreno composto da unico vano con servizi igienici e antibagno oltre 6 posti auto, per metri quadri 206. Prezzo base € 140.130,00. Data vendita 25/11/2025 ore 14:00. Rif. Tribunale di Livorno - Ricorso per omologazione piano di ristrutturazione n. 1/2024

Superficie 206,00 mq
Vani
Bagni
Piano 0

Tipologia di vendita Giudiziaria
Modalità di vendita Presso il venditore
Termine presentazione domande 01/01/1900 ore 00:00
Data e ora inizio gara 25/11/2025 ore 14:00
Codice ID astegiudiziarie.it 4307544
206,00
0
€ 140.130

Ti interessa questa vendita?

north_east

Clicca qui per essere indirizzato alla scheda sul sito di provenienza

Bene di astegiudiziarie.it