highlight_off
Riferimento annuncio 305153 info

Ufficio Via Valentino Cerruti, 13900 Biella (BI)

14
3
1
€ 308.880

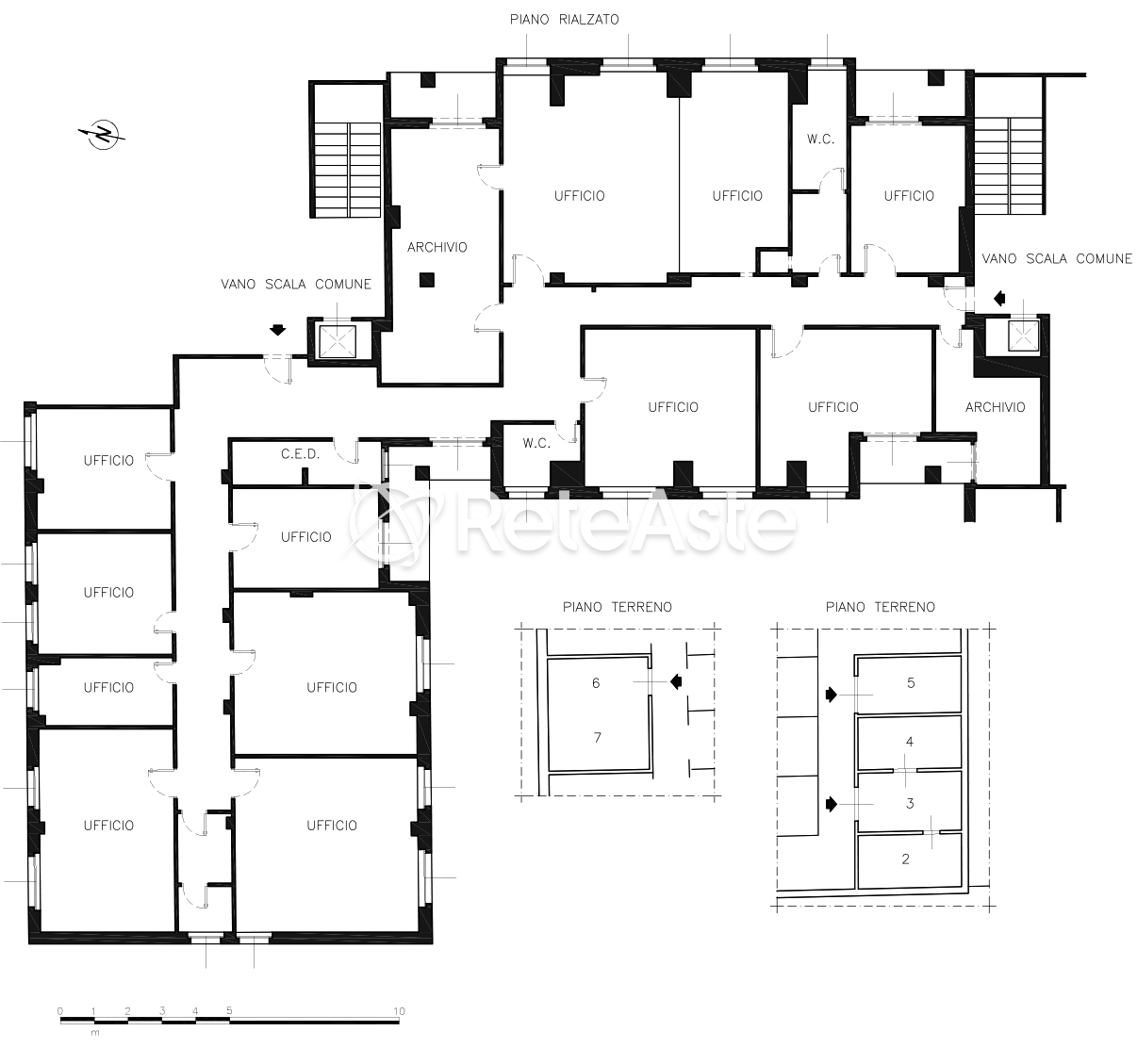
Unità immobiliare a destinazione direzionale posta al piano primo, di un edificio di maggiore consistenza articolato su 7 piani fuori terra ed 1 piano interrato situato tra le vie Valentino Cerruti ed Ernesto Carpano.

L’unità immobiliare è costituita da: ingresso su disimpegno, 12 locali ufficio, un archivio, un locale server, 3 bagni.

L’accesso al cespite avviene da due blocchi scala/ascensori separati; pertanto l’immobile si presta ad un eventuale frazionamento in due unità distinte con ingresso indipendente.

Pertinenze dirette dell’unità in oggetto risultano n. 1 cantina posta al piano terreno e n. 4 cantine situate al piano interrato.

Il fabbricato presenta struttura portante composta da pilastri e travi in calcestruzzo armato mentre gli orizzontamenti sono costituiti da elementi prefabbricati del tipo “Predalle”.

Tutte le pareti perimetrali esterne sono in parte intonacate e tinteggiate ed in parte in mattoni “a vista”.

Le facciate presentano finestre rettangolari con tagli e dimensioni tradizionali su ogni lato del fabbricato.

Real estate unit for office use located on the first floor of a larger building composed of 7 above-ground floors and 1 basement floor located between Valentino Cerruti and Ernesto Carpano streets. The real estate unit consists of: entrance hall, 12 office rooms, an archive, a server room, 3 bathrooms. Access to the property is through two separate stairwell/elevator blocks; therefore, the property could potentially be divided into two separate units with independent entrances. The direct pertinences of the unit include 1 cellar on the ground floor and 4 cellars located in the basement. The building has a supporting structure composed of concrete pillars and beams, while the floorings are prefabricated elements of the "Ribbed Slab" type. All external perimeter walls are partly plastered and painted, and partly in exposed bricks. The facades feature rectangular windows with traditional cuts and sizes on each side of the building.
Vente en attente de l’émission d’un avis nouveau. Unité immobilière à usage de bureaux située au premier étage, d'un bâtiment de plus grande taille articulé sur 7 étages hors-sol et 1 sous-sol situé entre les rues Valentino Cerruti et Ernesto Carpano. L'unité immobilière se compose de : une entrée donnant sur un dégagement, 12 bureaux, un local d'archives, une salle serveur, 3 salles de bains. L'accès à la propriété se fait par deux blocs d'escaliers/ascenseurs séparés; par conséquent, le bien peut être éventuellement divisé en deux unités distinctes avec entrées indépendantes. Les dépendances directes de l'unité en question comprennent 1 cave au rez-de-chaussée et 4 caves situées au sous-sol. Le bâtiment présente une structure porteuse composée de piliers et poutres en béton armé tandis que les planchers sont composés d'éléments préfabriqués du type "Predalles". Tous les murs extérieurs sont en partie crépis et peints et en partie en briques "apparentes". Les façades présentent des fenêtres rectangulaires avec des coupes et dimensions traditionnelles de chaque côté du bâtiment.
Vente en attente de l’émission d’un avis nouveau. Gewerbeimmobilie im ersten Stock eines größeren Gebäudes mit 7 Obergeschossen und einem Untergeschoss, gelegen zwischen den Straßen Valentino Cerruti und Ernesto Carpano. Die Immobilie besteht aus: Eingangsbereich, 12 Bürozimmern, einem Archiv, einem Serverraum, 3 Badezimmern. Der Zugang zu der Immobilie erfolgt über zwei separate Treppenhaus-/Aufzugblöcke; daher könnte die Immobilie möglicherweise in zwei separate Einheiten mit eigenem Eingang aufgeteilt werden. Zu dieser Einheit gehören direkt ein Keller im Erdgeschoss und vier Keller im Untergeschoss. Das Gebäude hat eine Tragstruktur aus Betonpfeilern und -trägern, während die Horizontalen aus vorgefertigten Elementen vom Typ "Predalle" bestehen. Alle äußeren Umfassungswände sind teilweise verputzt und gestrichen, teilweise aus sichtbaren Ziegeln. Die Fassaden haben rechteckige Fenster mit traditionellen Einschnitten und Abmessungen an allen Seiten des Gebäudes.
意大利语文本的中文翻译: 位于一幢高达7层地面和1层地下的建筑物的第一层,专用作办公室,坐落在瓦伦蒂诺·切鲁蒂(Valentino Cerruti)街和埃内斯托·卡帕诺(Ernesto Carpano)街之间。 该单位包括:通道入口,12个办公室,一个档案室,一个服务器室,3个卫生间。 财产的进入可以通过两个独立的楼梯/电梯块进行;因此,该物业适合进一步分成两个独立单位,各自拥有独立的入口。 该单位的直接附件包括一个位于地面的地下室和四个位于地下室的地下室。 建筑结构由钢筋混凝土柱和梁组成,而水平构件由“预制板”类型的元素组成。 所有外围墙部分为粉刷和涂漆,部分为露出的砖墙。 建筑物立面上有矩形窗户,符合传统尺寸和裁剪,在建筑物的每一侧。
Объявление аукциона по данной продаже будет вскоре опубликовано. Помещение с назначением офиса находится на первом этаже здания большей значимости, состоящего из 7 надземных этажей и 1 подземного этажа, расположенного между улицами Валентино Черрути и Эрнесто Карпано. Помещение состоит из: входа в коридор, 12 офисных помещений, архива, серверной комнаты, 3 ванных комнат. Доступ к объекту осуществляется через два отдельных блока со ступенями/лифтами; следовательно, объект может быть разделен на две отдельные единицы с собственным входом. Принадлежности данного помещения включают в себя 1 подвальное помещение на первом этаже и 4 подвальных помещения. Здание имеет несущую конструкцию из бетонных столбов и балок, а горизонтали состоят из предварительно изготовленных элементов типа "продалле". Все внешние периметральные стены частично штукатурены и окрашены, а частично выполнены из кирпичей. Фасады имеют прямоугольные окна с традиционными размерами на каждой стороне здания.

Superficie mq
Vani 14
Bagni 3
Piano 1

Tipologia di vendita Privata
Modalità di vendita Raccolta offerte

Codice ID astetraprivati.it 796
14
3
1
€ 308.880

Ti interessa questa vendita?

north_east

Clicca qui per essere indirizzato alla scheda sul sito di provenienza

Bene di astetraprivati.it