highlight_off
Riferimento annuncio 289402 info

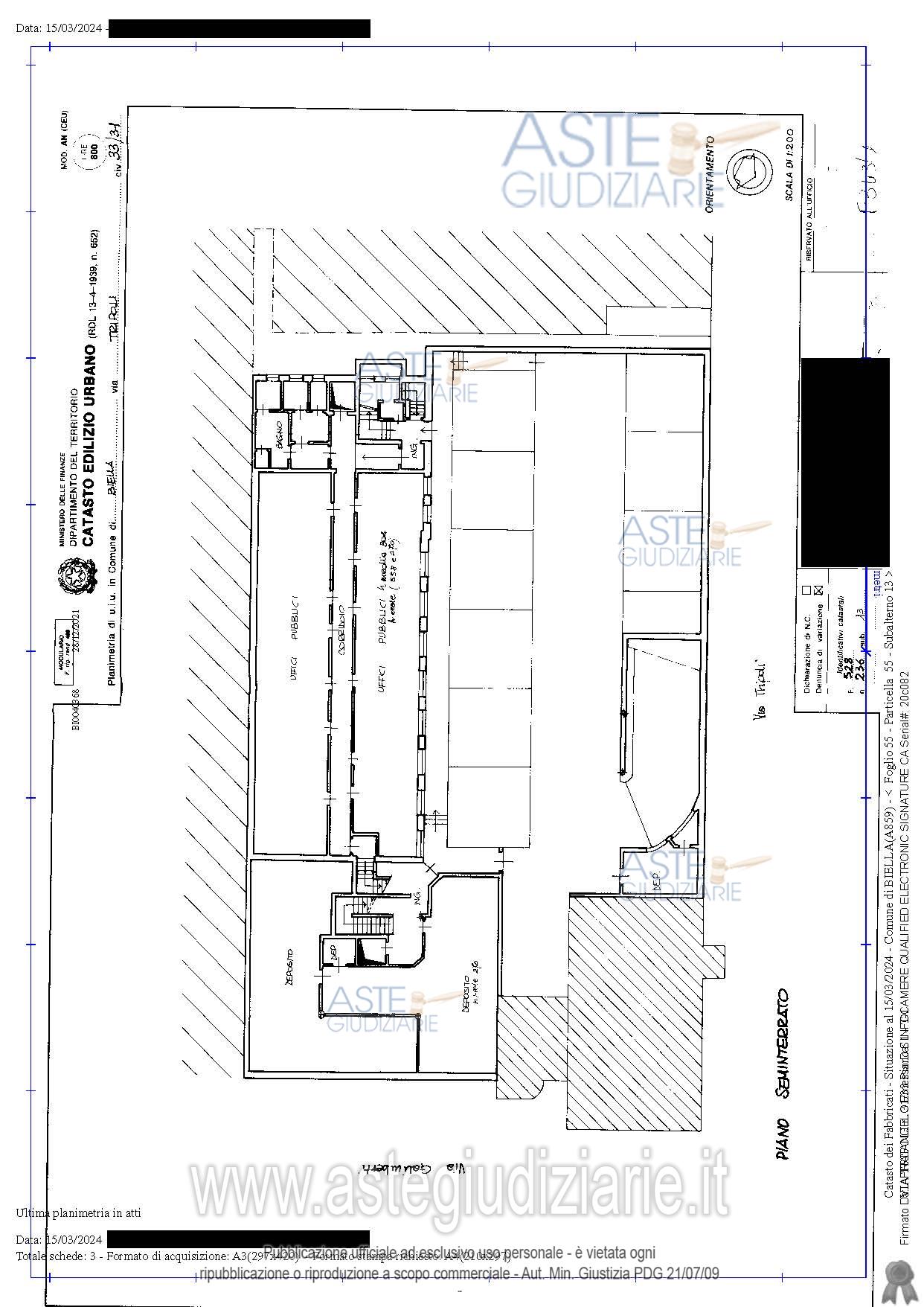
Ufficio Via Tripoli, 31/33, 13900 Biella BI, Italia, 13900 Biella (BI)

10,00
412,00
0
€ 213.675
Vendita all'asta Senza incanto, con gara telematica asincrona - LOTTO 1: UNITA' IMMOBILIARE DESTINATA A UFFICIO E STUDIO PRIVATO ELEVATA A DUE PIANI FUORI TERRA OLTRE A PIANO SEMINTERRATO COMPOSTO AL PIANO SEMINTERRATO CANTINE E LOCALI TECNICI, AL PIANO TERRENO INGRESSO, UFFICI, SERVIZI IGIENICI E RIPOSTIGLIO, AL PIANO PRIMO UFFICIO E SERVIZI IGIENICI, BALCONI, OTLRE TERRAZZO RIVOLTO VERSO LA VIA T.GALIMBERTI. Prezzo base € 213.675,00 (offerta minima € 160.256,25). Data inizio operazioni di vendita: 20/01/2026 ore 11:00. Professionista delegato alla vendita Dott. Alberto Blotto - Email "procedure@studioblotto.it"; Tel. 01521410. Custode Giudiziario Dott. Alberto Blotto - Email "procedure@studioblotto.it"; Tel. 01521410. Rif. Tribunale di Biella - Espropriazione immobiliare (cartabia) n. 80/2023

Superficie 412,00 mq
Vani 10,00
Bagni
Piano 0

Tipologia di vendita Giudiziaria
Modalità di vendita Asincrona telematica
Termine presentazione offerte 19/01/2026 ore 13:00
Data e ora inizio gara 20/01/2026 ore 11:00
Codice ID astegiudiziarie.it 4315690
10,00
412,00
0
€ 213.675

Ti interessa questa vendita?

north_east

Clicca qui per essere indirizzato alla scheda sul sito di provenienza

Bene di astegiudiziarie.it