highlight_off
Riferimento annuncio 289318 info

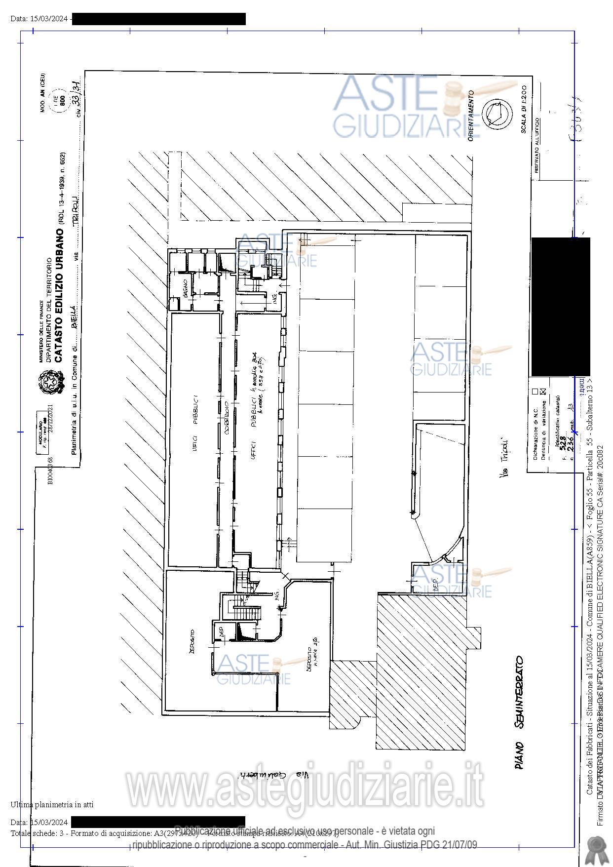
Ufficio Via Tripoli, 31, 13900 Biella BI, Italia, 13900 Biella (BI)

35,00
1453,00
0
€ 797.792
Vendita all'asta Senza incanto, con gara telematica asincrona - LOTTO 2: FAB. ELEVATO IN PARTE A DUE PIANI FUORI TERRA OLTRE A PIANO SEMINTER. E IN PARTE AD UN SOLO PIANO COMPOSTO DA DUE BLOCCHI, UNO SEDE DI UFFICI PUBB. L'ALTRO PALESTRA E UFFICI. AL PIANO SEMINTER. DEPOSITI, ARCHIVI, UFFICI, SERVIZI IGIENICI SCALE ASCENSORE; AL PIANO RIALZATO UFFICI, DEPOSITI, SERVIZI IGIENICI, SCALE ASCENSORE, HALL DI INGRESSO, SERVIZI IGIENICI SPOGLIATOIO, PALESTRA LOCALI PER L'ATTIVITA' FISICA; AL PIANO PRIMO UFFICI, SERVIZI IGIENICI, TERRAZZO ESTERNO, SCALA , ASCENSORE, LOCALI TECNICI. Prezzo base € 797.791,50 (offerta minima € 598.343,63). Data inizio operazioni di vendita: 20/01/2026 ore 11:00. Professionista delegato alla vendita Dott. Alberto Blotto - Email "procedure@studioblotto.it"; Tel. 01521410. Custode Giudiziario Dott. Alberto Blotto - Email "procedure@studioblotto.it"; Tel. 01521410. Rif. Tribunale di Biella - Espropriazione immobiliare (cartabia) n. 80/2023

Superficie 1453,00 mq
Vani 35,00
Bagni
Piano 0

Tipologia di vendita Giudiziaria
Modalità di vendita Asincrona telematica
Termine presentazione offerte 19/01/2026 ore 13:00
Data e ora inizio gara 20/01/2026 ore 11:00
Codice ID astegiudiziarie.it 4315691
35,00
1453,00
0
€ 797.792

Ti interessa questa vendita?

north_east

Clicca qui per essere indirizzato alla scheda sul sito di provenienza

Bene di astegiudiziarie.it