highlight_off
Riferimento annuncio 292346 info

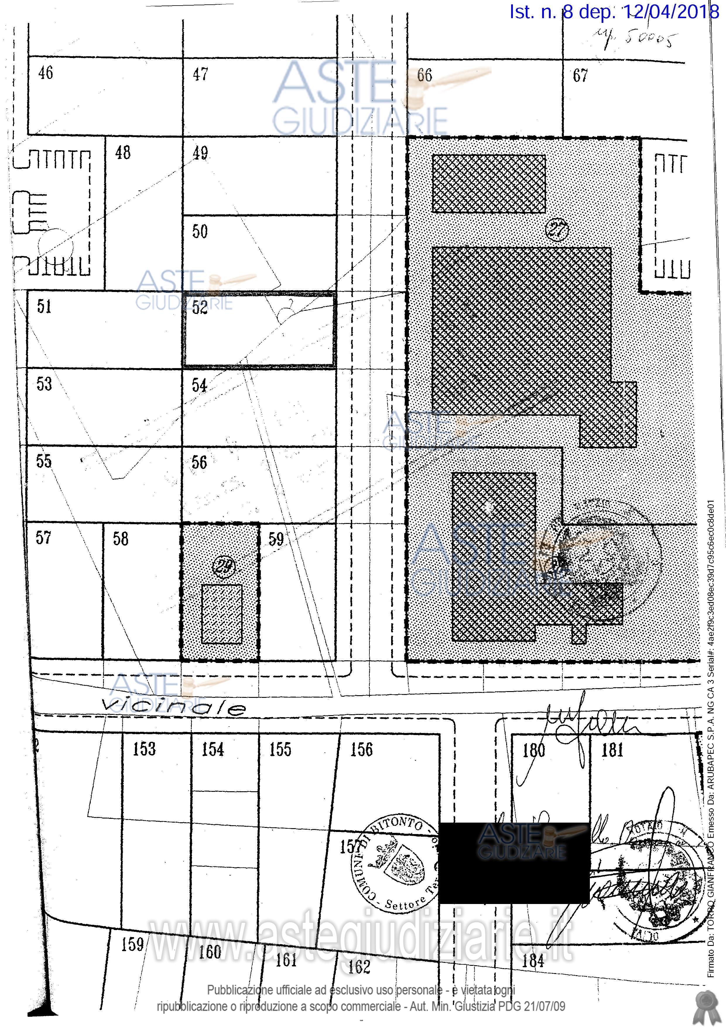
Terreno edificabile Via Molfetta, 52, 70032 Bitonto (BA)

€ 28.966
Vendita all'asta Senza incanto, con gara telematica asincrona - LOTTO UNICO: Diritti di proprietà su lotto di terreno edificatorio in zona P.I.P. individuato al n.52 per un’estensione complessiva di mq 1.016. Prezzo base € 28.966,09 (offerta minima € 21.724,57). Data inizio operazioni di vendita: 21/01/2026 ore 11:00. In caso di più offerte valide si procederà a gara che inizierà il 21/01/2026 ore 11:00 e terminerà il 28/01/2026 ore 11:00. Giudice Dott. Paola Cesaroni. Professionista delegato alla vendita Avv. Angela Barbuto - Tel. 080 5739678. Curatore Avv. Angela Barbuto. Rif. Tribunale di Bari - Fallimentare (nuovo rito) n. 61/2010
Vendita all'asta Senza incanto, con gara telematica asincrona - LOTTO UNICO: Eigentumsrechte an einem bebauten Grundstück in der P.I.P.-Zone, identifiziert als Nr. 52, mit einer Gesamtfläche von 1.016 Quadratmetern. Prezzo base € 28.966,09 (offerta minima € 21.724,57). Data inizio operazioni di vendita: 21/01/2026 ore 11:00. In caso di più offerte valide si procederà a gara che inizierà il 21/01/2026 ore 11:00 e terminerà il 28/01/2026 ore 11:00. Giudice Dott. Paola Cesaroni. Professionista delegato alla vendita Avv. Angela Barbuto - Tel. 080 5739678. Curatore Avv. Angela Barbuto. Rif. Tribunale di Bari - Fallimentare (nuovo rito) n. 61/2010
Vendita all'asta Senza incanto, con gara telematica asincrona - LOTTO UNICO: Ownership rights of a building plot in an area identified as P.I.P. plot number 52, with a total area of 1,016 square meters. Prezzo base € 28.966,09 (offerta minima € 21.724,57). Data inizio operazioni di vendita: 21/01/2026 ore 11:00. In caso di più offerte valide si procederà a gara che inizierà il 21/01/2026 ore 11:00 e terminerà il 28/01/2026 ore 11:00. Giudice Dott. Paola Cesaroni. Professionista delegato alla vendita Avv. Angela Barbuto - Tel. 080 5739678. Curatore Avv. Angela Barbuto. Rif. Tribunale di Bari - Fallimentare (nuovo rito) n. 61/2010
Vendita all'asta Senza incanto, con gara telematica asincrona - LOTTO UNICO: Droits de propriété sur un terrain constructible dans la zone P.I.P. identifiée sous le numéro 52 pour une superficie totale de 1 016 mètres carrés. Prezzo base € 28.966,09 (offerta minima € 21.724,57). Data inizio operazioni di vendita: 21/01/2026 ore 11:00. In caso di più offerte valide si procederà a gara che inizierà il 21/01/2026 ore 11:00 e terminerà il 28/01/2026 ore 11:00. Giudice Dott. Paola Cesaroni. Professionista delegato alla vendita Avv. Angela Barbuto - Tel. 080 5739678. Curatore Avv. Angela Barbuto. Rif. Tribunale di Bari - Fallimentare (nuovo rito) n. 61/2010
Vendita all'asta Senza incanto, con gara telematica asincrona - LOTTO UNICO: Права собственности на застроенный земельный участок в зоне П.И.П., обозначенный под номером 52, общей площадью 1016 квадратных метров. Prezzo base € 28.966,09 (offerta minima € 21.724,57). Data inizio operazioni di vendita: 21/01/2026 ore 11:00. In caso di più offerte valide si procederà a gara che inizierà il 21/01/2026 ore 11:00 e terminerà il 28/01/2026 ore 11:00. Giudice Dott. Paola Cesaroni. Professionista delegato alla vendita Avv. Angela Barbuto - Tel. 080 5739678. Curatore Avv. Angela Barbuto. Rif. Tribunale di Bari - Fallimentare (nuovo rito) n. 61/2010

Tipologia di vendita Giudiziaria
Modalità di vendita Asincrona telematica
Termine presentazione offerte 20/01/2026 ore 12:00
Data e ora inizio gara 21/01/2026 ore 11:00
Codice ID astegiudiziarie.it 4317811
€ 28.966

Ti interessa questa vendita?

north_east

Clicca qui per essere indirizzato alla scheda sul sito di provenienza

Bene di astegiudiziarie.it