highlight_off
Riferimento annuncio 224294 info

Terreno agricolo Via Roma, 421, 97019 Vittoria RG, Italia, 97019 Vittoria (RG)

€ 42.680
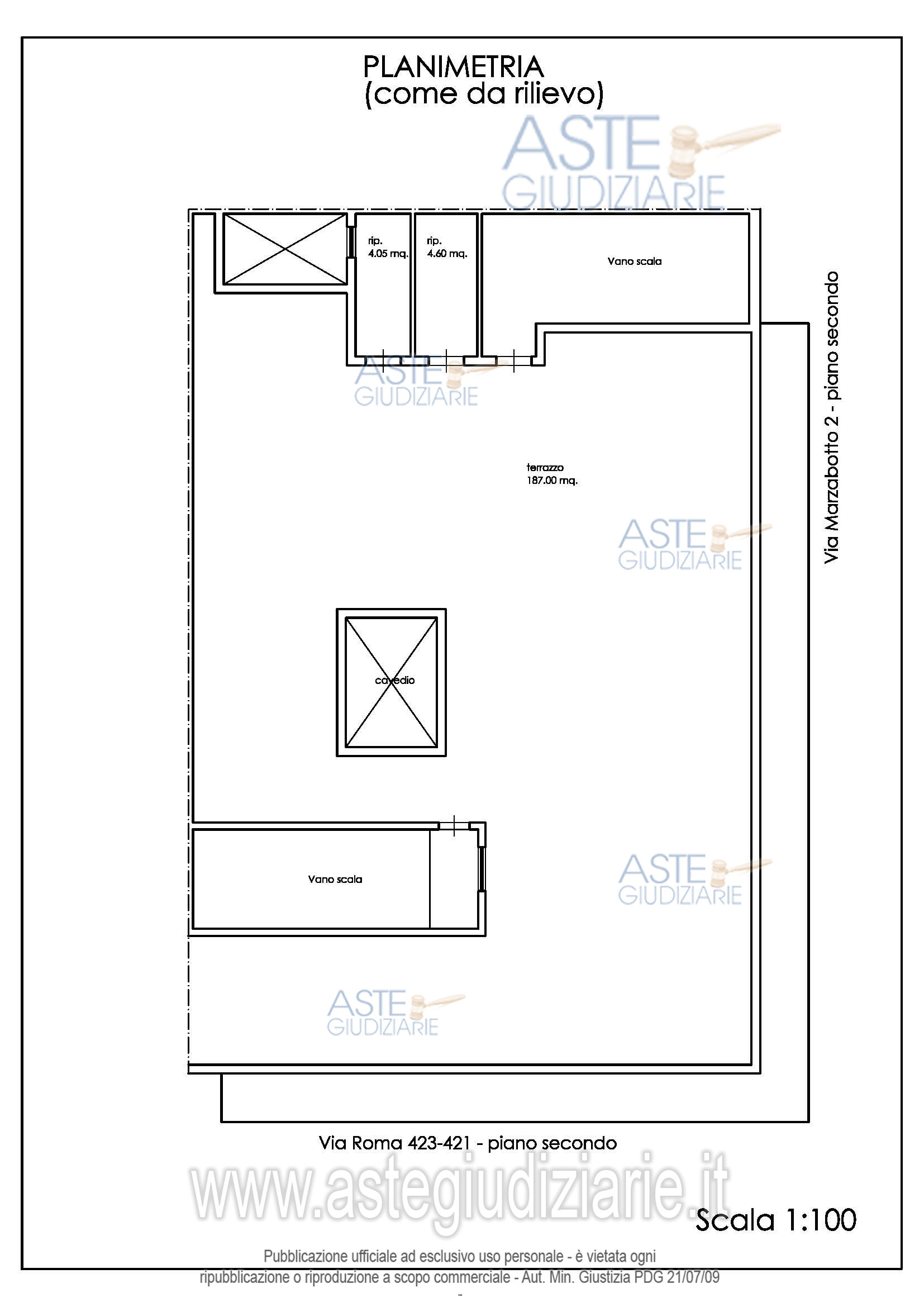
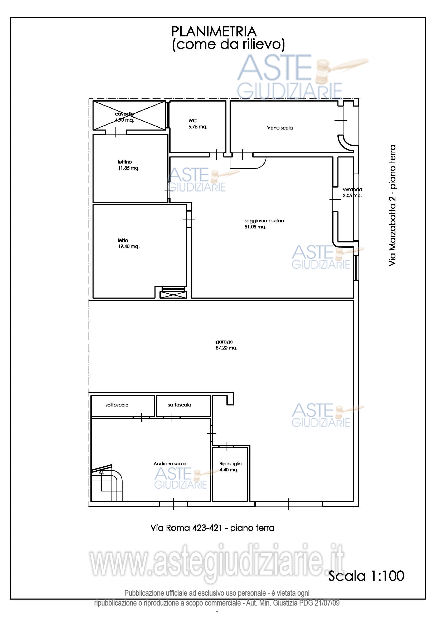
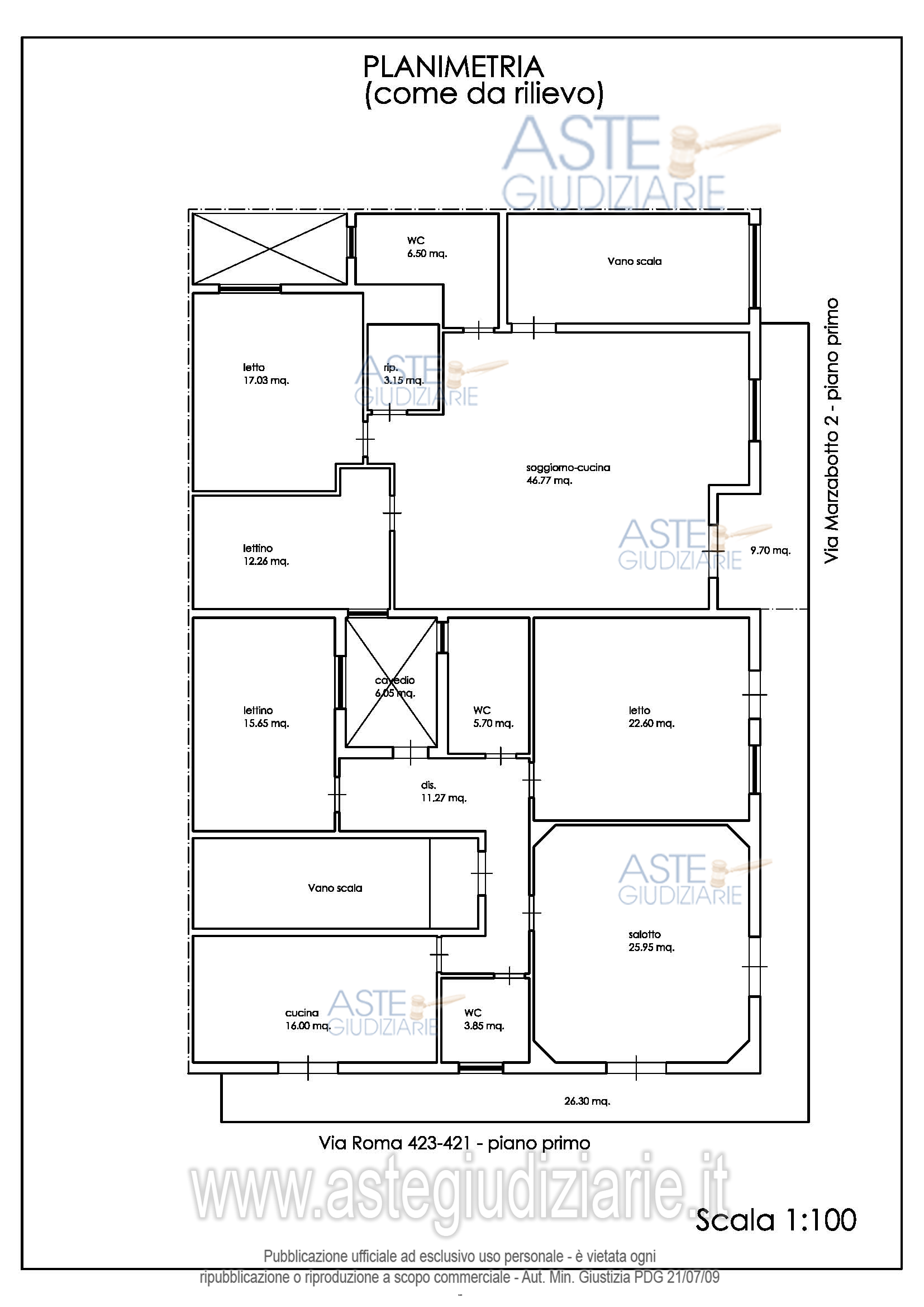
Vendita all'asta Senza incanto, con gara telematica sincrona mista - LOTTO UNICO: Terreno. Stabile per civile abitazione realizzato su tre piani fuori terra, costituito da un garage ed unappartamento a piano terra, da 2 appartamenti a piano primo ed una terrazza a piano secondo.L'intero edificio non è accatastato e risulta essere stato edificato abusivamente. Al catasto risulta ad oggi solo il terreno su cui sorge l'edificio, individuato al Catasto Terreni al Foglio 220, p.lla 823. Prezzo base € 42.680,48 (offerta minima € 32.010,36). Data vendita 26/11/2025 ore 10:00. Professionista delegato alla vendita Avv. Giorgio Antoci. Custode Giudiziario Avv. Giorgio Antoci - Email "giorgio.antoci@email.it". Rif. Tribunale di Ragusa - Esecuzione immobiliare post legge 80 n. 490/2015

Tipologia di vendita Giudiziaria
Modalità di vendita Sincrona mista
Termine presentazione offerte 25/11/2025 ore 13:00
Data e ora inizio gara 26/11/2025 ore 10:00
Codice ID astegiudiziarie.it 4270171
€ 42.680

Ti interessa questa vendita?

north_east

Clicca qui per essere indirizzato alla scheda sul sito di provenienza

Bene di astegiudiziarie.it