highlight_off
Riferimento annuncio 39038 info

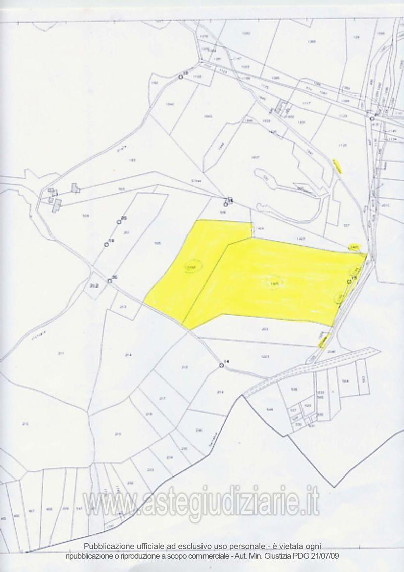
Terreno agricolo 09040 Villaputzu SU, Italia, 09040 Villaputzu (SU)

€ 74.760
Vendita all'asta Senza incanto, con gara telematica asincrona - LOTTO UNICO: Porto Corallo, quota pari a 1/1 del diritto di proprietà del terreno di circa Mq.67.651, a circa 5 Km. dal centro abitato del paese. Prezzo base € 74.760,00 (offerta minima € 56.070,00). Data inizio operazioni di vendita: 21/11/2025 ore 09:00. Giudice Dott. Silvia Cocco. Professionista delegato alla vendita Not. Alberto Luciano - Email "ufficiouniconotai@pec.it"; Tel. 07060222574. Custode Giudiziario Ivg Cagliari - Email "ivg.visiteimmobili@tiscali.it"; Tel. 0702299036. Rif. Tribunale di Cagliari - Esecuzione immobiliare post legge 80 n. 164/2008

Tipologia di vendita Giudiziaria
Modalità di vendita Asincrona telematica
Termine presentazione offerte 01/01/1900 ore 00:00
Data e ora inizio gara 21/11/2025 ore 09:00
Codice ID astegiudiziarie.it 176753
€ 74.760

Ti interessa questa vendita?

north_east

Clicca qui per essere indirizzato alla scheda sul sito di provenienza

Bene di astegiudiziarie.it