highlight_off
Riferimento annuncio 156947 info

Terreno agricolo Contrada Badia, contrada Badia, 89027 Sant'Eufemia d'Aspromonte (RC)

€ 12.684
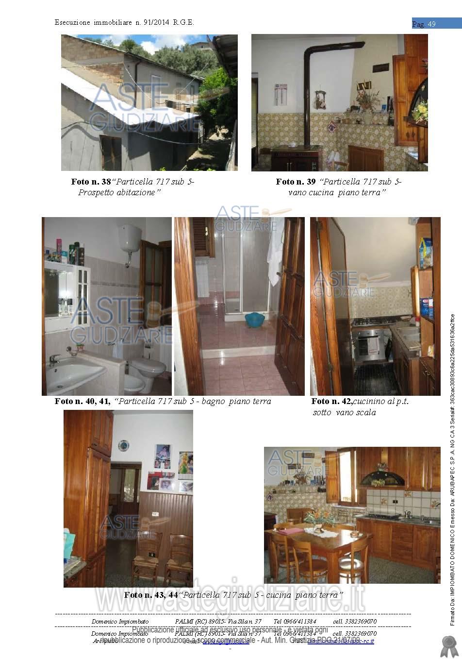
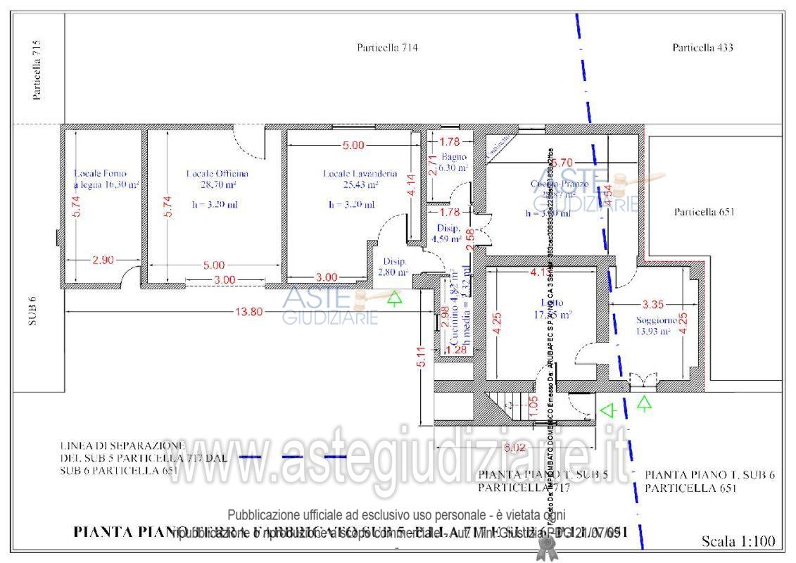
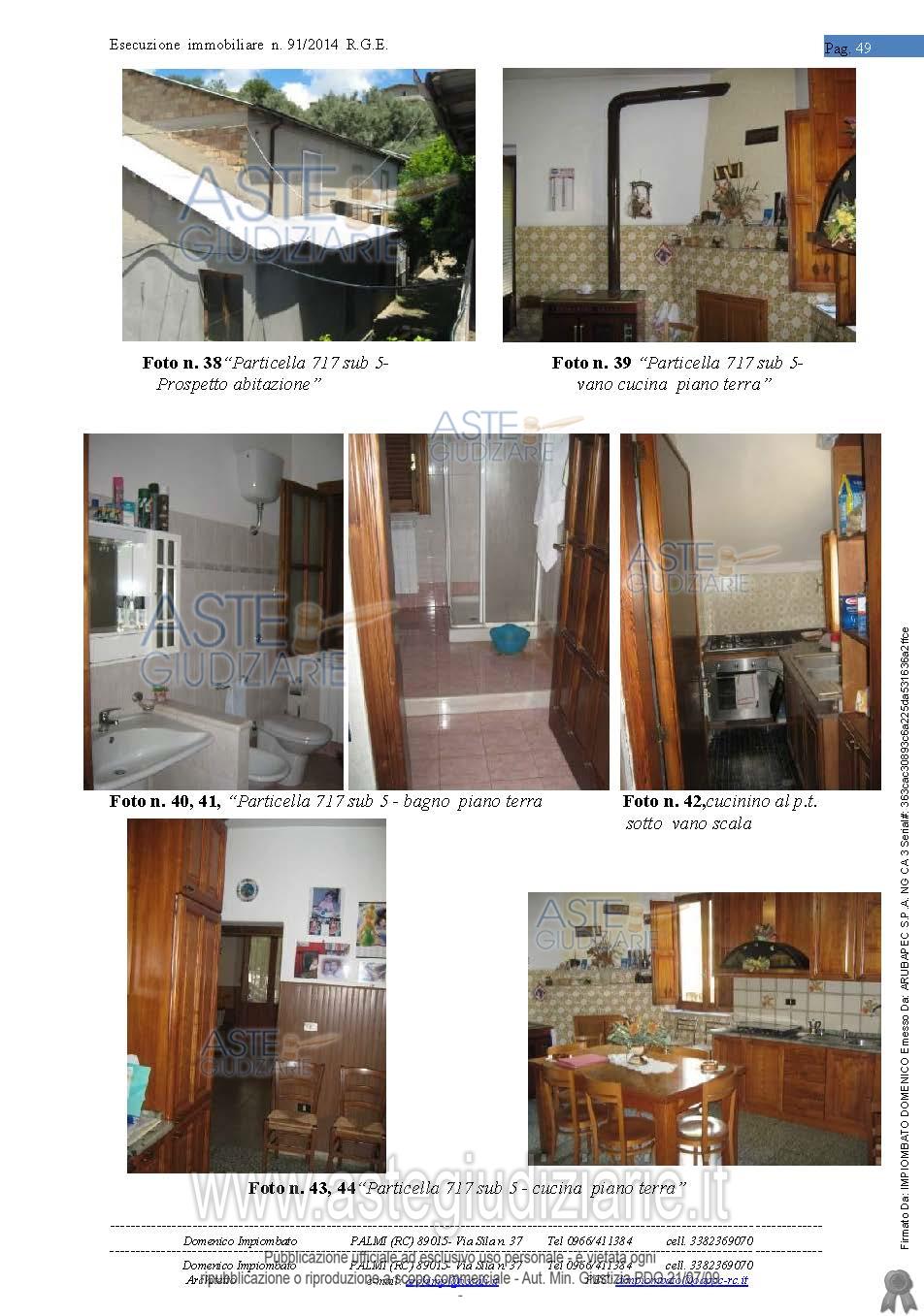
Vendita all'asta Senza incanto, con gara telematica asincrona - LOTTO 3: Trattasi di un lotto composto da tre particelle confinanti tra di loro, ubicato nelComune di Sant’Eufemia d’Aspromonte (RC) in contrada Badia. Le particelle sono identificate come segue: Catasto Terreni al foglio 4, p.lla 716, N.C.E.U. al foglio 4, p.lla 651 sub 6 e p.lla 717, sub 2, 3, 4, 5 e 6. Al lotto si arriva percorrendo la Strada Statale 112 direzione sud. D. Prezzo base € 12.684,00 (offerta minima € 9.153,00). Data inizio operazioni di vendita: 05/12/2025 ore 16:00. Giudice Dott. Marta Caineri. Professionista delegato alla vendita Dott. Cipriano Scarfo - Email "studioscarfo@libero.it"; Tel. 0966645153. Custode Giudiziario Dott. Cipriano Scarfo - Email "studioscarfo@libero.it"; Tel. 3939518232. Rif. Tribunale di Palmi - Esecuzione immobiliare post legge 80 n. 91/2014

Tipologia di vendita Giudiziaria
Modalità di vendita Asincrona telematica
Termine presentazione offerte 01/01/1900 ore 00:00
Data e ora inizio gara 05/12/2025 ore 16:00
Codice ID astegiudiziarie.it 4260811
€ 12.684

Ti interessa questa vendita?

north_east

Clicca qui per essere indirizzato alla scheda sul sito di provenienza

Bene di astegiudiziarie.it