Riferimento annuncio 318255
        
    
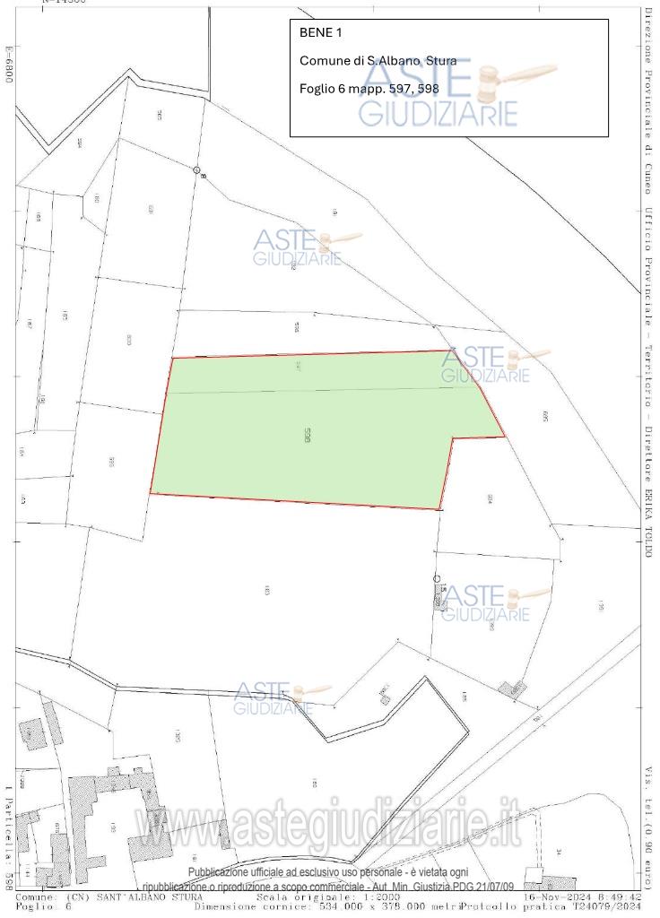
    Terreno agricolo via Carpeneta, 12040 Sant'Albano Stura (CN)
€ 110.200    
                Vendita all'asta Senza incanto, con gara telematica asincrona - LOTTO 1:  terreno agricolo ubicato a Sant'Albano Stura (CN) - via Carpeneta. Prezzo base € 110.200,00 (offerta minima € 82.650,00). Data inizio operazioni di vendita: 18/12/2025 ore 17:30. Giudice Roberta Bonaudi. Professionista delegato alla vendita Avv. Roberto Tesio - Email "mondino.tesio@multiwire.net"; Tel. 017441342. Custode Giudiziario  Ifir Piemonte Ivg Srl - Email "richiestevisite.cuneo@ivgpiemonte.it"; Tel. 01711873923.  Rif. Tribunale di Cuneo - Espropriazione immobiliare (cartabia) n. 56/2024
            
   
| Tipologia di vendita | Giudiziaria | 
|---|---|
| Modalità di vendita | Asincrona telematica | 
| Termine presentazione offerte | 17/12/2025 ore 12:00 | 
| Data e ora inizio gara | 18/12/2025 ore 17:30 | 
 
                         
                        